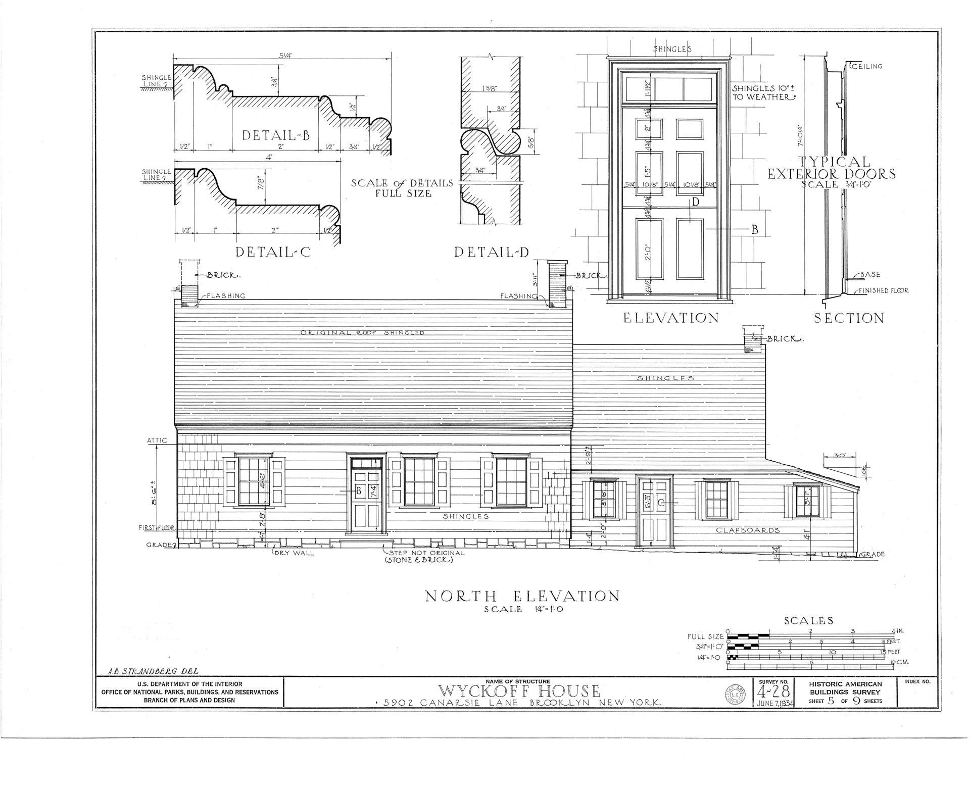
5816 CLARENDON ROAD, MILTON FIDLER PARK, BROOKLYN, NEW YORK
The Wyckoff House or Pieter Claesen Wyckoff House house was built by Wouter van Twiller around 1636-40.
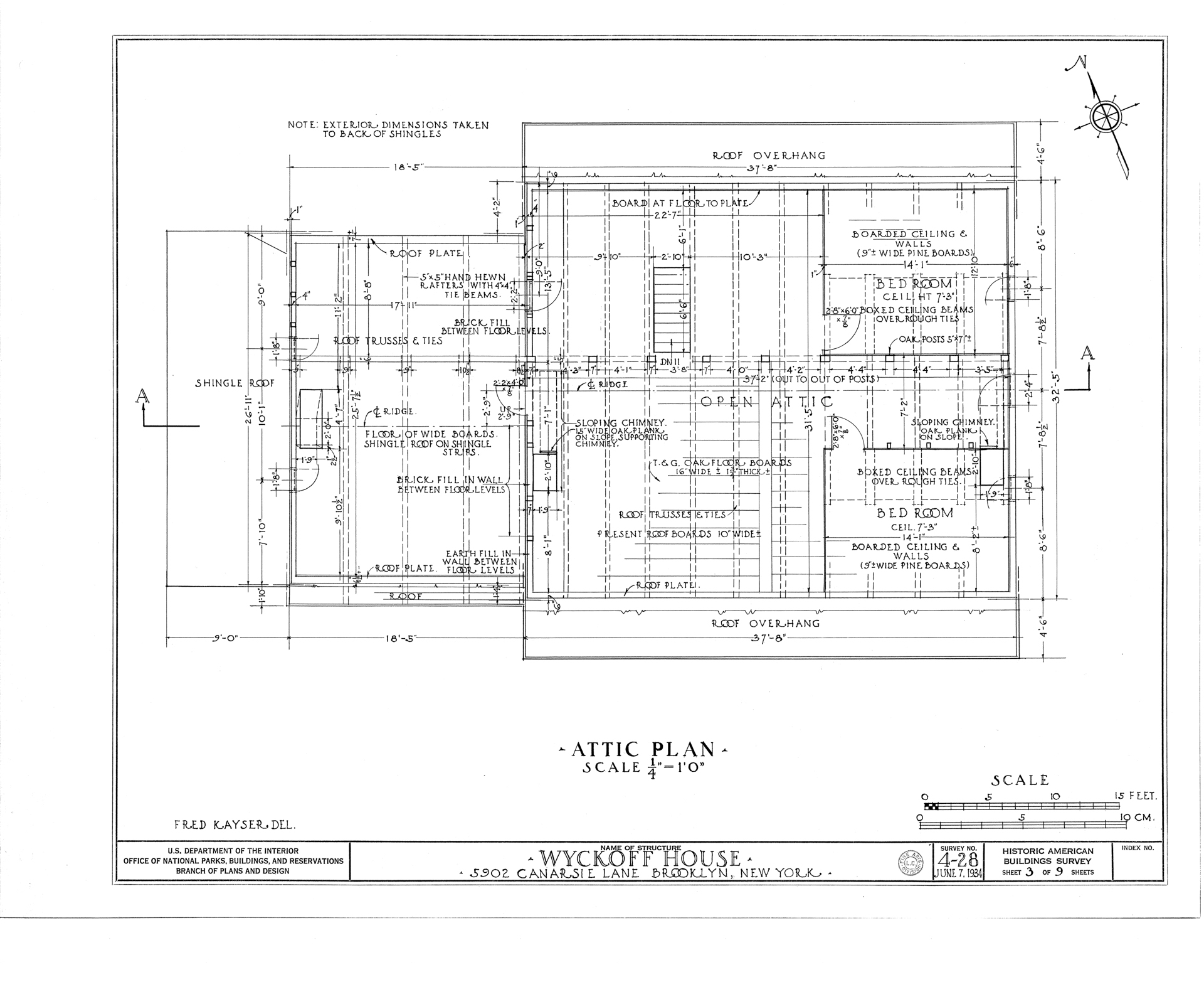
5816 CLARENDON ROAD, MILTON FIDLER PARK, BROOKLYN, NEW YORK
The Wyckoff House or Pieter Claesen Wyckoff House house was built by Wouter van Twiller around 1636-40.