New Design Resource! Common Moulding Assemblies

Download Now

125 LAKEVIEW AVENUE, LEONIA, BERGEN COUNTY, NEW JERSEY

Nestled within the rolling landscape of Leonia’s historic English Neighborhood, the Vreeland House stands as eloquent testimony to early American settlement and Dutch Colonial craftsmanship. The property is associated with the Vreeland family, described in the National Register documentation as a prominent early Dutch family in the area, with continuous family ownership for more than a century. The house itself preserves a layered story of growth, reflecting Leonia’s evolution from an agrarian community of contiguous farms to a later suburban borough.

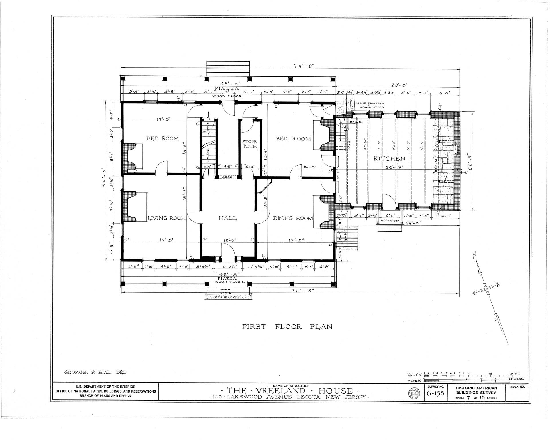
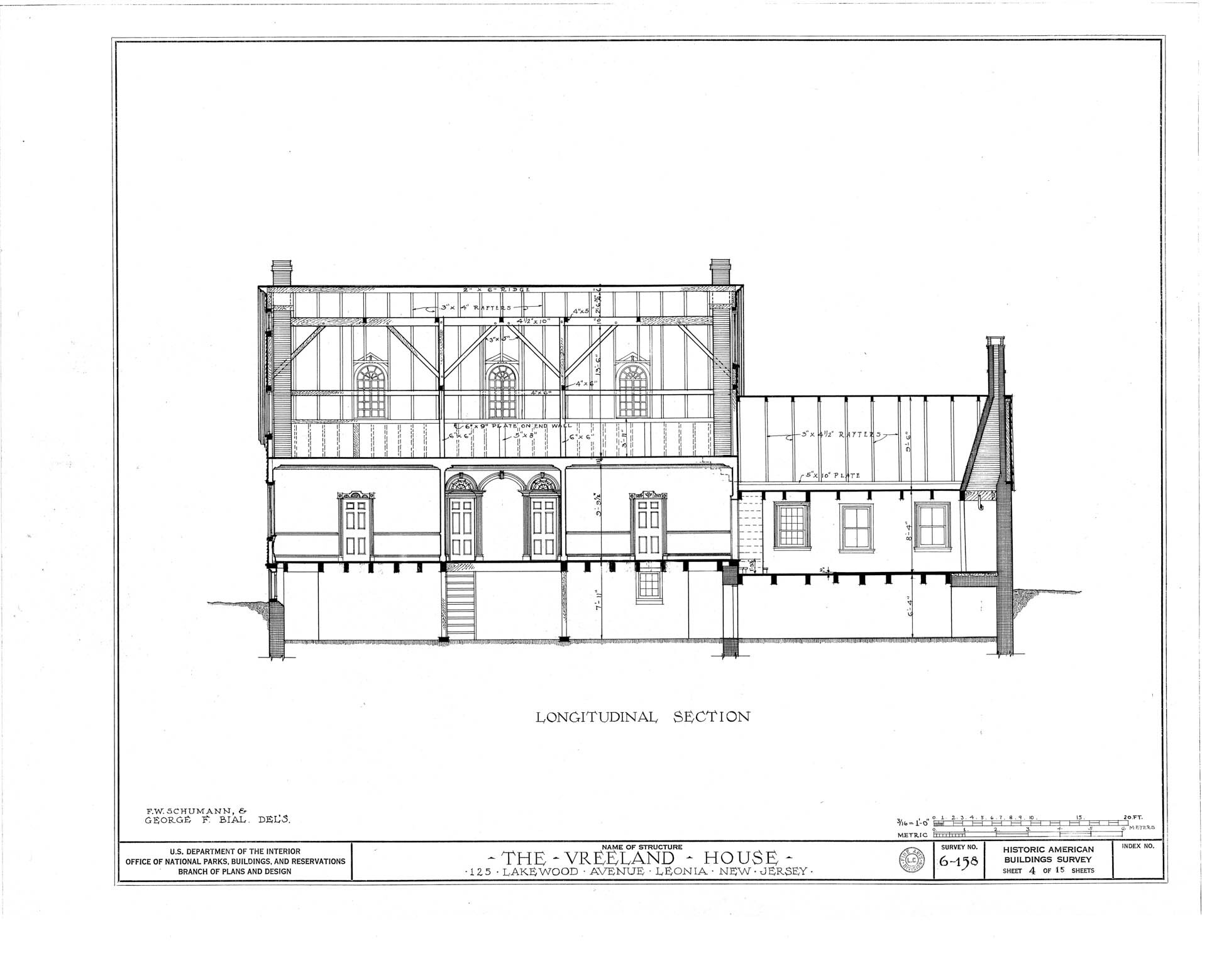
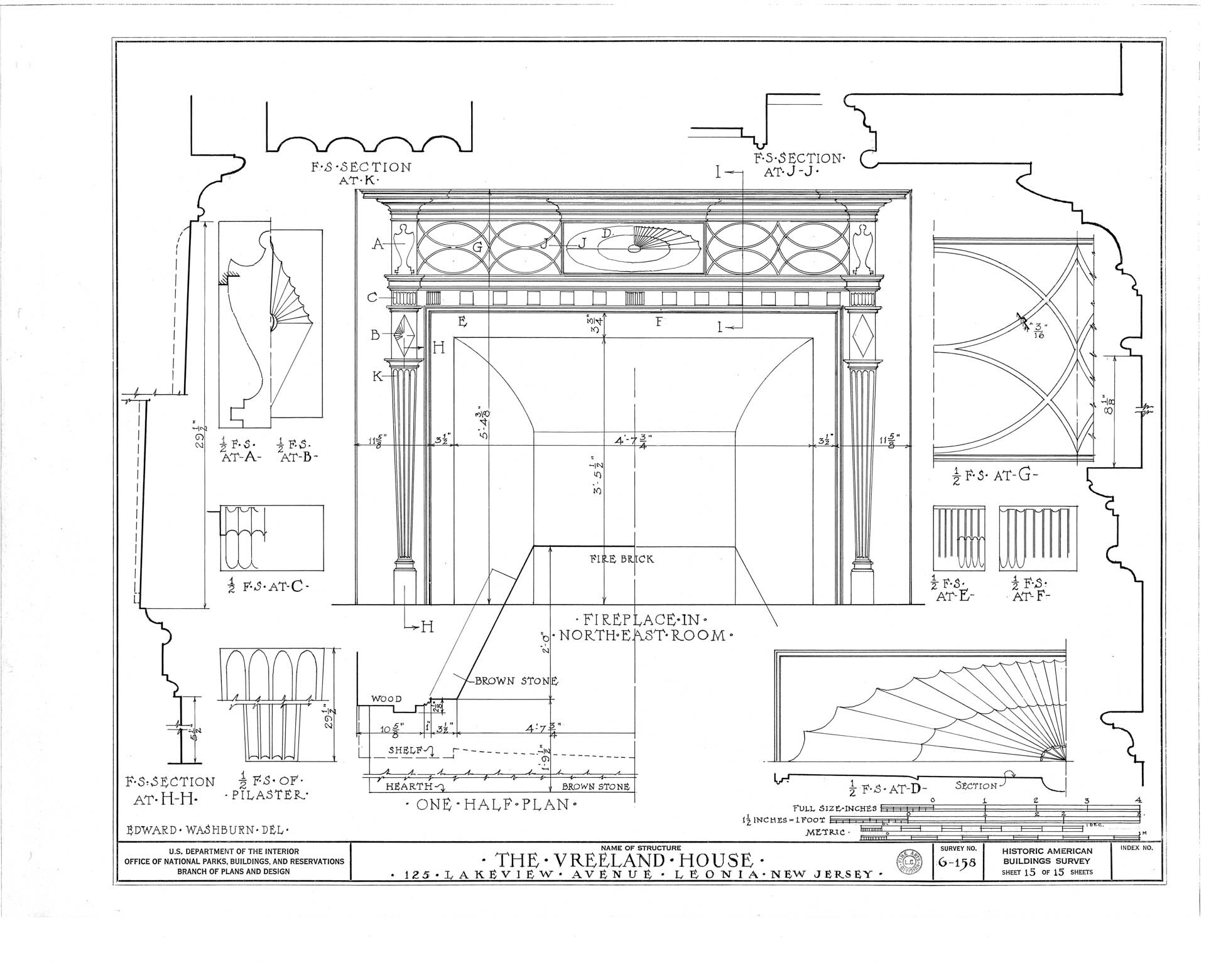
Architecturally, the Vreeland House is especially compelling for its contrast of materials and its disciplined composition. The main block is a heavy pegged frame structure, set on an ashlar red sandstone foundation and finished with traditional exterior siding, while an attached smaller extension is constructed of load-bearing red sandstone blocks typical of the Palisades region. The building’s low profile is amplified by its sweeping gambrel roof and extended eaves, which cast a dramatic shadow and visually press the house into the land. The facade and rear are organized in five bays and fronted by loggias of square posts that carry the roofline outward. The entrance is crowned by a richly treated surround with a wide Dutch door, reeded pilasters, partial sidelights, and a projecting entablature, a moment where vernacular restraint gives way to finely judged refinement.

The residence remained in the Vreeland family for well over a century, forming a continuous thread that links Revolutionary Era settlement to the modern age, and it was later documented through the Historic American Buildings Survey. The National Register nomination frames the house as a bridge between Hudson Valley Dutch building traditions and later English decorative influence as interpreted by American carpenter builders after the Revolution, giving the structure both regional authenticity and stylistic ambition. It was listed on the National Register of Historic Places on November 17, 1978, as part of the Early Stone Houses of Bergen County context, a formal acknowledgment of its architectural integrity and its place in the wider narrative of settlement and cultural memory in northern New Jersey.