New Design Resource! Common Moulding Assemblies

Download Now

510 WASHINGTON STREET, NATCHEZ, ADAMS COUNTY, MISSISSIPPI

At the corner of Washington and North Union Streets in Natchez sits the Van Court Townhouse. This Flemish-bonded cottage is a unique combination of the transitional Federal and Greek Revival architectural styles. The lot was originally owned by Joseph Quegles, a Spanish merchant and planter. The architectural firm Neibert and Gemmel built the house, completing it in 1836 for Quegles’s son-in-law, James Ferguson.

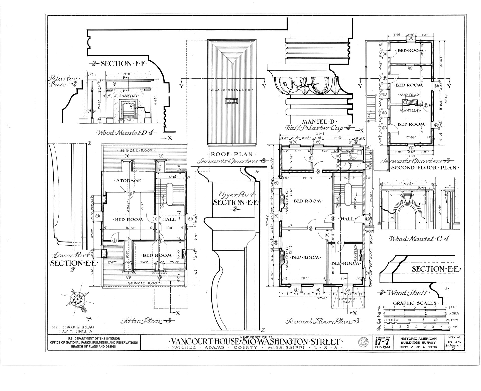
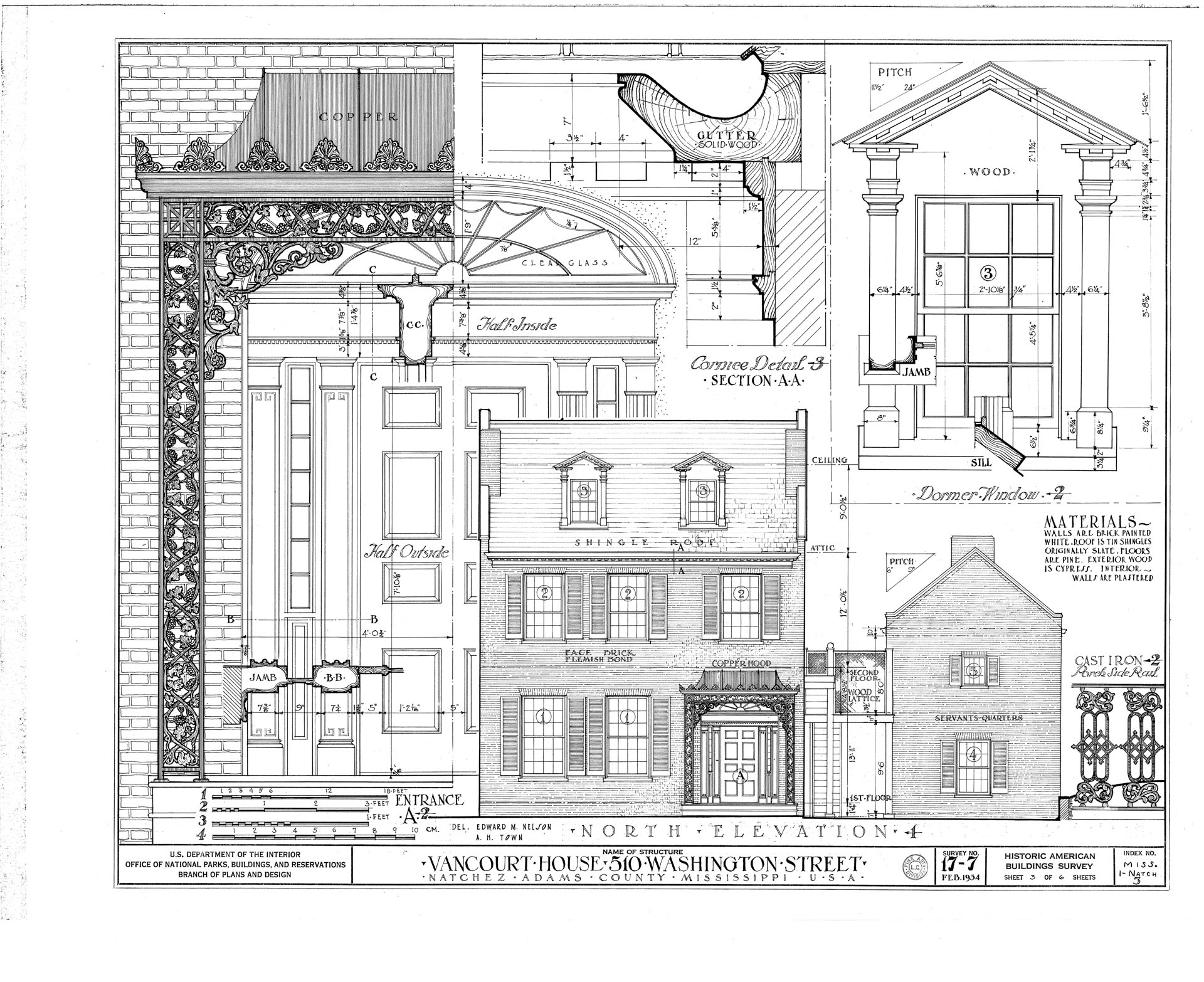
Sheltering the entrance is a lacy, single-bay cast-iron porch crowned with a copper hood, assumed to have been added in the 1850s. The doorway is fitted with transom windows and framed by a Grecian portico with a stately pediment and pilasters. Above the second floor are two pedimented dormers, trimmed with modillion cornices. The roof is made of tin shingles, and the exterior wood siding is crafted from cypress.

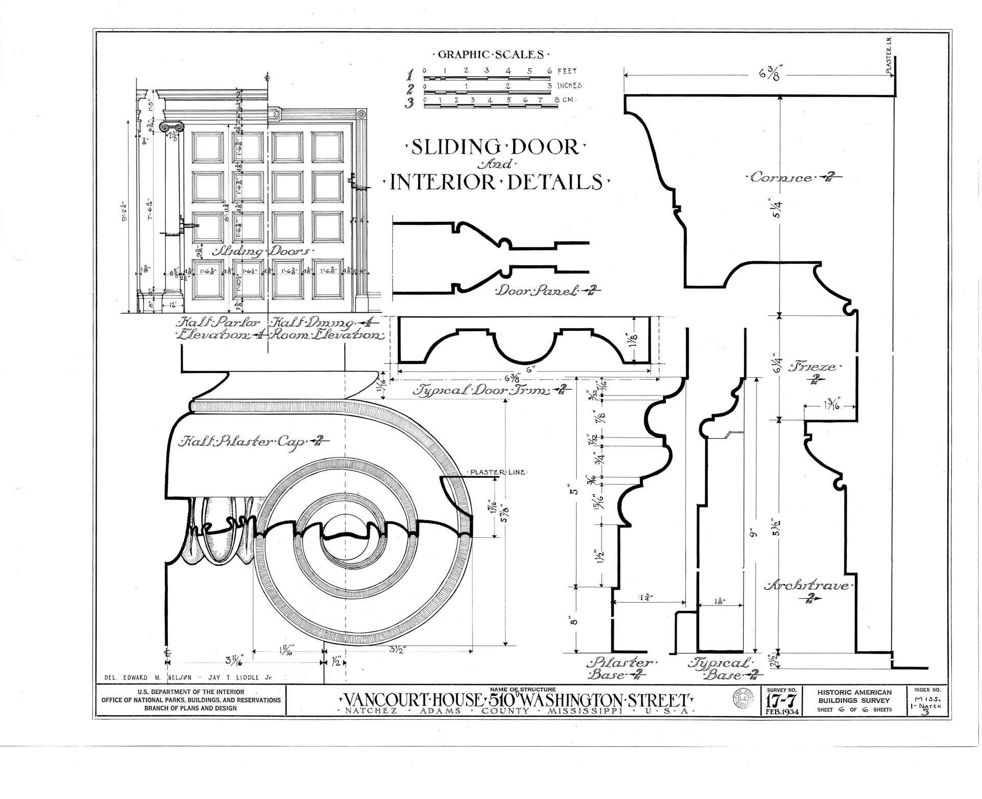
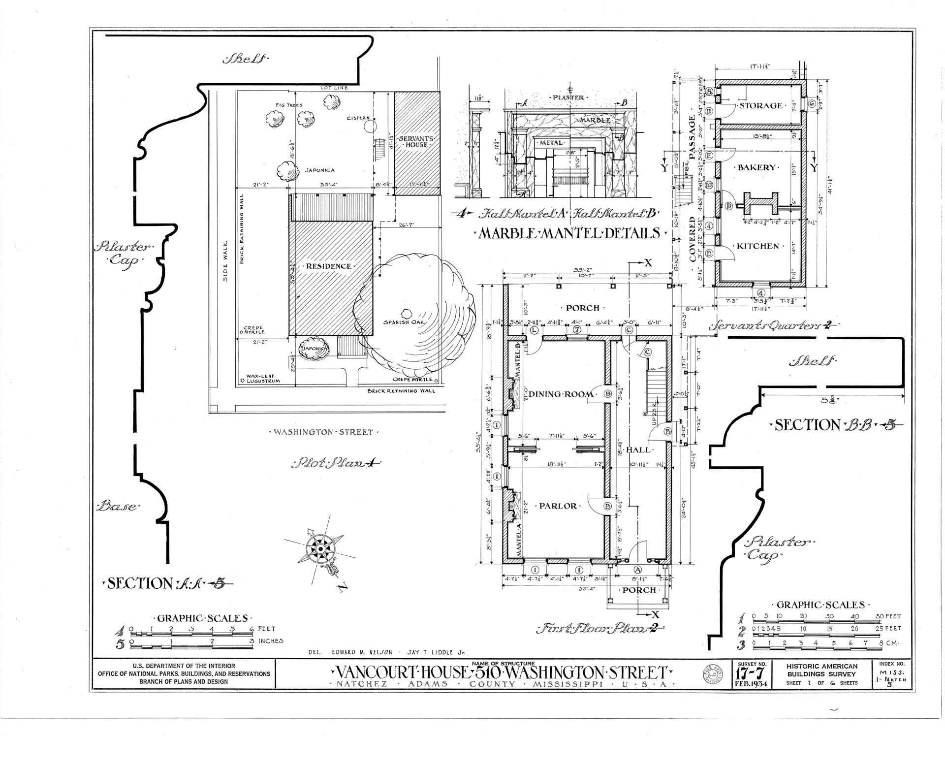
Internally, the walls are plaster, and the floors are made of sturdy pine wood. In the front hallway stands a restored carved rosewood grand piano. Several elegant rooms feature Italian marble fireplaces with metal detailing. The parlor and dining room were originally divided by hinged doors adorned with Federal and Greek Revival-style details. Although the doors are now missing, the parlor side retains a full entablature with pilasters and Ionic capitals.

A long, beautiful wood banister stretches from the first floor up to the third floor. The balustrade is straight, with a spiral handrail at the top of the newel. The stair tread nosing is rounded at the projection, and all stair components are crafted from walnut.

The mouldings on the first floor are detailed with a long shelf, pilaster caps, and bases. On the second floor, which includes a number of bedrooms and servants’ quarters, the mouldings are simpler but consistent with the overall style. All the wood mouldings are attractively arranged, progressing from the cornice to the frieze, down to the architrave, and finally to the base.

Cliff Davis and Benny Riddle, the current owners, stay true to tradition by carefully maintaining and restoring the property. They draw inspiration from the architectural renderings of the late, great architect A. Hays Town, who was renowned for surveying and preserving Antebellum homes in Mississippi and Louisiana.