Built-in 1807, this French/Spanish building serves as an example of half-business and half-home. The business portion would have been on the ground floor, and the home portion would have been on the upper floors.
ROOM 201 SOUTHEAST MANTEL ELEVATION
ROOM 201 SOUTHEAST MANTEL ELEVATION
ROOM 201 SOUTHEAST MANTEL ELEVATION AND SECTION
ROOM 201 SOUTHEAST MANTEL MOULDINGS
ROOM 201 SOUTHEAST MANTEL MOULDINGS
ROOM 201 NORTHWEST MANTEL ELEVATION
ROOM 201 NORTHWEST MANTEL ELEVATION
ROOM 201 NORTHWEST MANTEL ELEVATION AND SECTION
ROOM 201 NORTHWEST MANTEL MOULDINGS
ROOM 201 NORTHWEST MANTEL MOULDINGS
ROOM 203 MANTEL ELEVATION
ROOM 203 MANTEL ELEVATION
ROOM 203 MANTEL ELEVATION AND SECTION
ROOM 203 MANTEL MOULDINGS
NO. 207 OPENING ELEVATION
NO. 207 OPENING ELEVATION
NO. 207 OPENING MOULDINGS
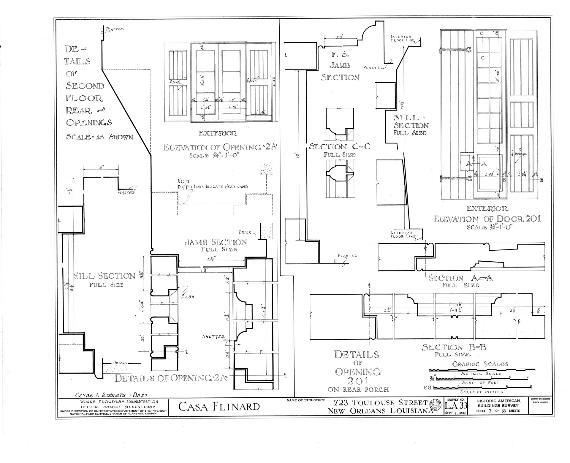
2A EXTERIOR WINDOW ELEVATION
2A EXTERIOR WINDOW ELEVATION
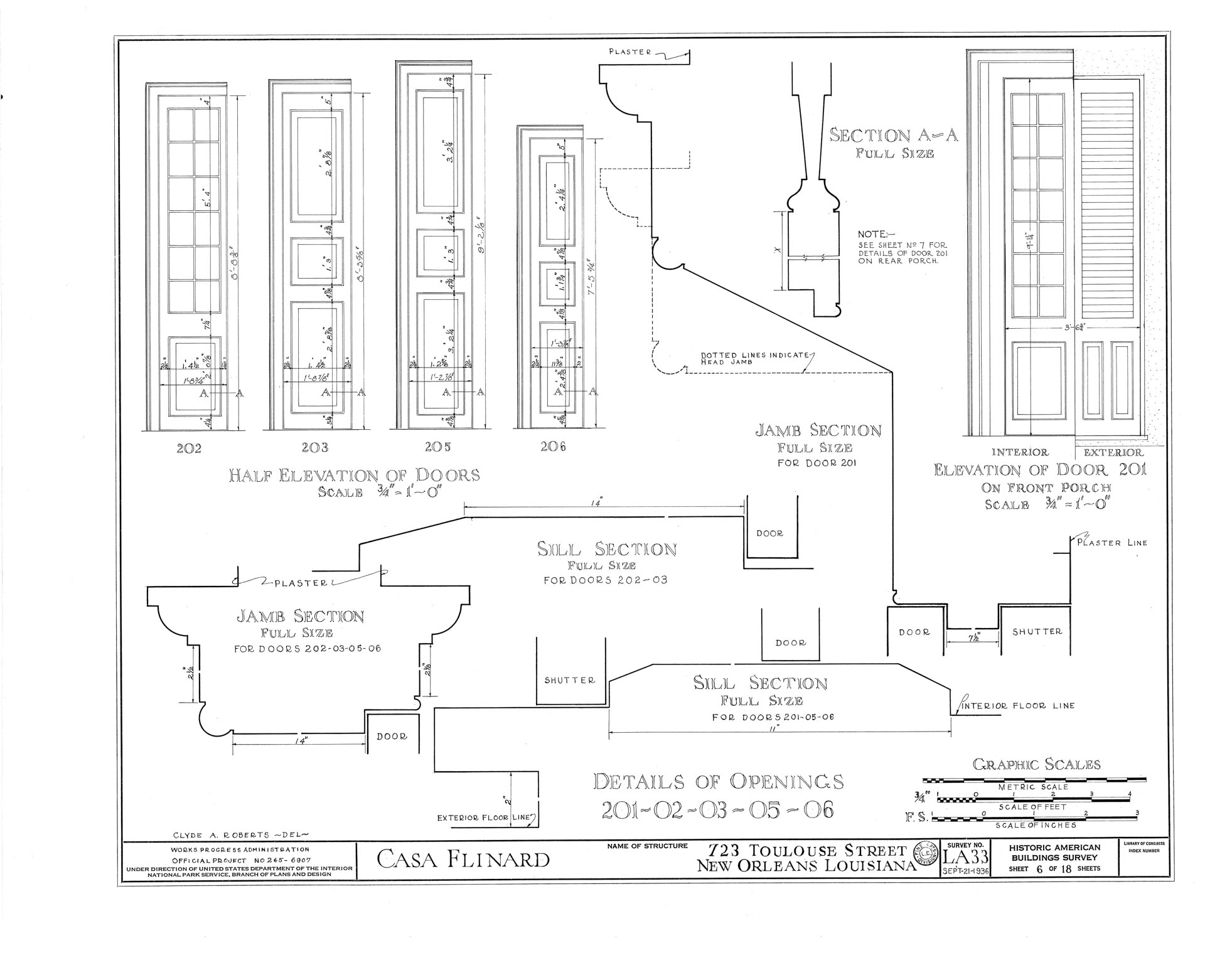
DOOR 201 EXTERIOR ELEVATION
DOOR 201 EXTERIOR ELEVATION
2A WINDOW AND DOOR 201 EXTERIOR MOULDINGS
DETAILS OF STAIRWAY SECTION B-B
DETAILS OF STAIRWAY SECTION B-B
DETAILS OF STAIRWAY AT C-C
DETAILS OF STAIRWAY AT C-C
2C EXTERIOR WINDOW ELEVATION
2C EXTERIOR WINDOW ELEVATION
2C EXTERIOR WINDOW MOULDING
2D EXTERIOR WINDOW ELEVATION
2D EXTERIOR WINDOW ELEVATION
2D EXTERIOR WINDOW MOULDING
DOOR 101 EXTERIOR ELEVATION
DOOR 101 EXTERIOR ELEVATION
DOOR 101 INTERIOR ELEVATION
DOOR 101 ELEVATION AND SECTION
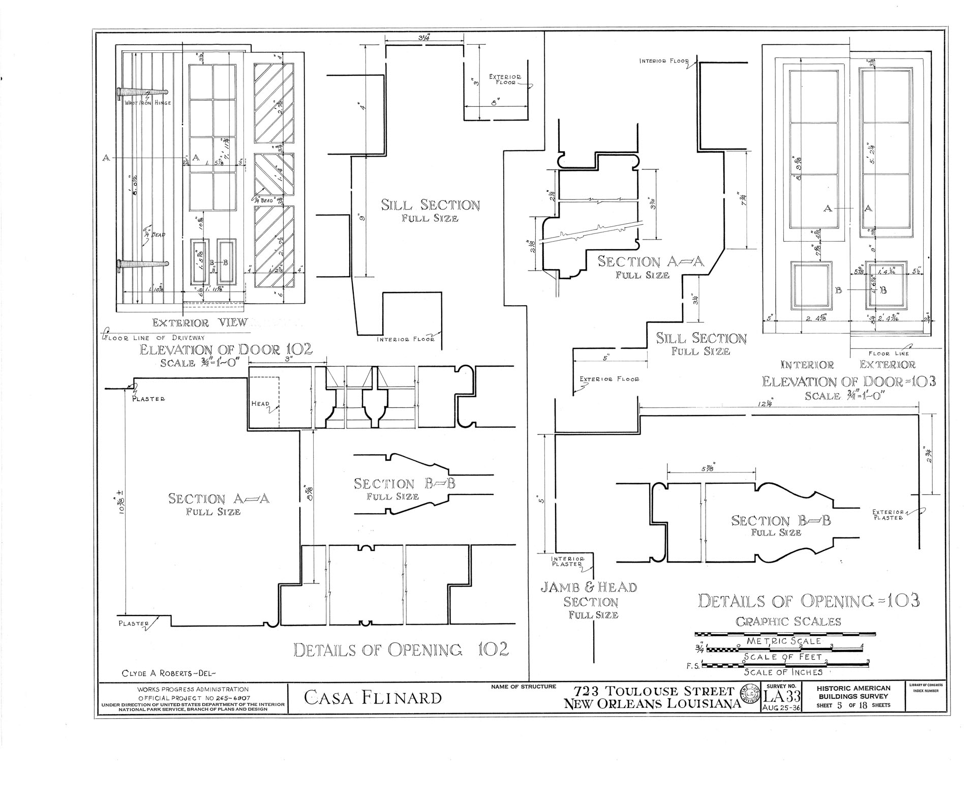
DOOR 102 EXTERIOR ELEVATION
DOOR 102 EXTERIOR ELEVATION
DOOR 102 EXTERIOR ELEVATION
DOOR 102 EXTERIOR ELEVATION
DOOR 103 EXTERIOR ELEVATION
DOOR 103 INTERIOR ELEVATION
DOOR 103 EXTERIOR ELEVATION
DOOR 103 EXTERIOR ELEVATION
DOOR 103 ELEVATION AND PLAN
DOOR 102 AND 103 MOULDINGS
DOOR 202, 203, 205, AND 206 MOULDINGS
DOOR 201 INTERIOR ELEVATION
DOOR 201 INTERIOR ELEVATION
DOOR 201 EXTERIOR ELEVATION
DOOR 201 EXTERIOR ELEVATION
DETAILS OF BALCONY ELEVATION
DETAILS OF BALCONY ELEVATION
DETAILS OF BALCONY ELEVATION AND SECTION
DETAILS OF GATE AT PORTE COCHERE
DETAILS OF GATE AT PORTE COCHERE