New Design Resource! Common Moulding Assemblies

Download Now

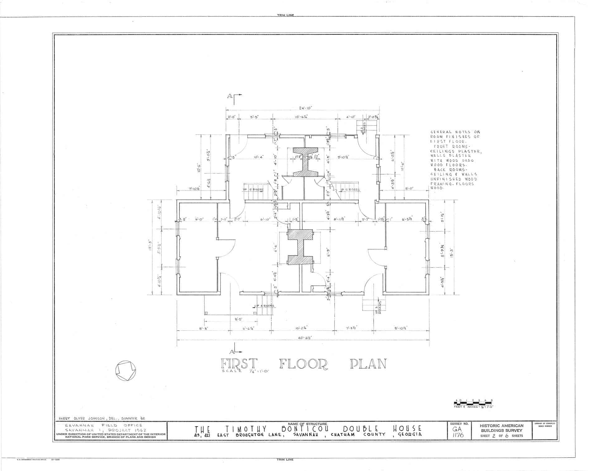
419-421 EAST BOUGHTON LANE, SAVANNAH, CHATHAM COUNTY, GEORGIA

Built around 1815.