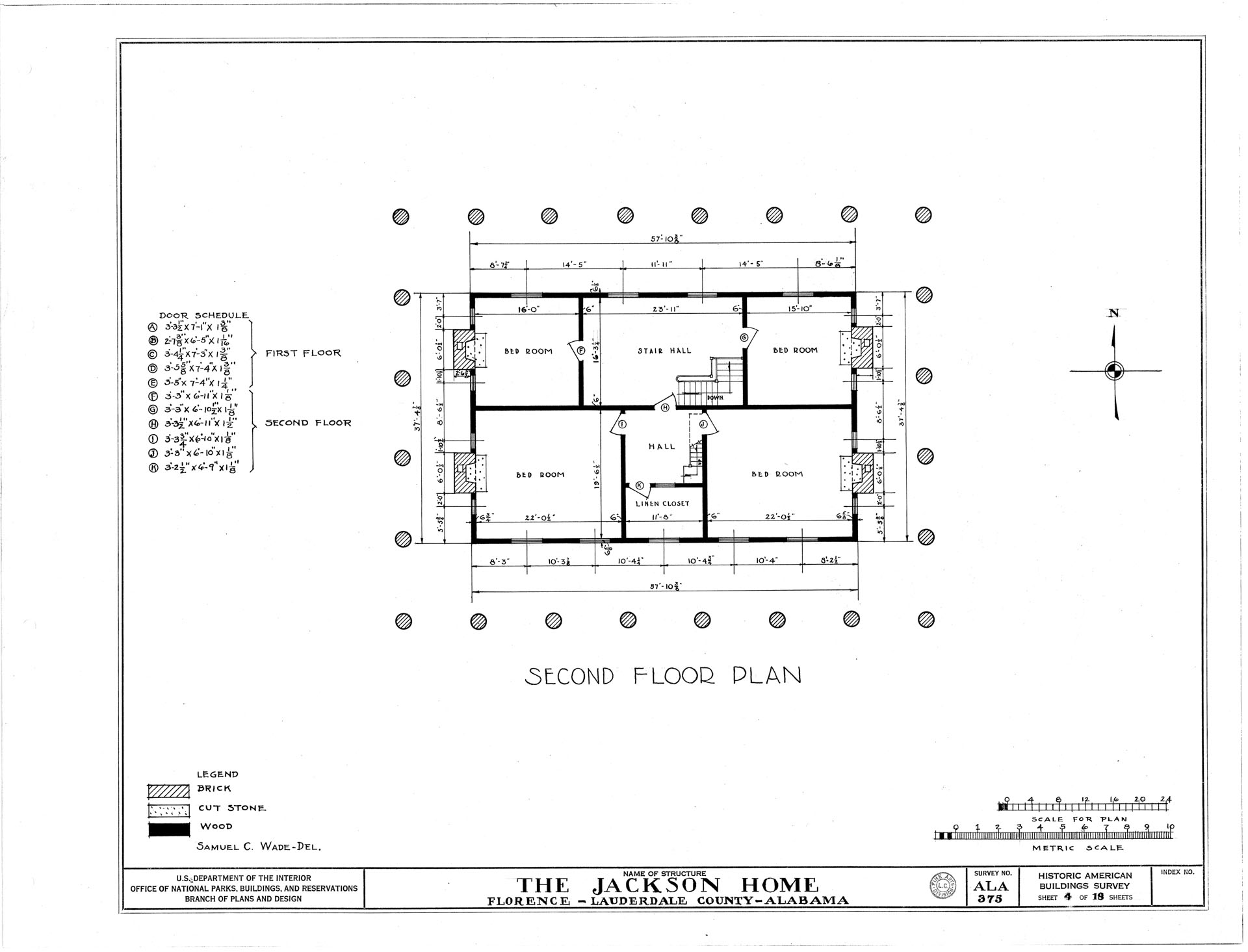
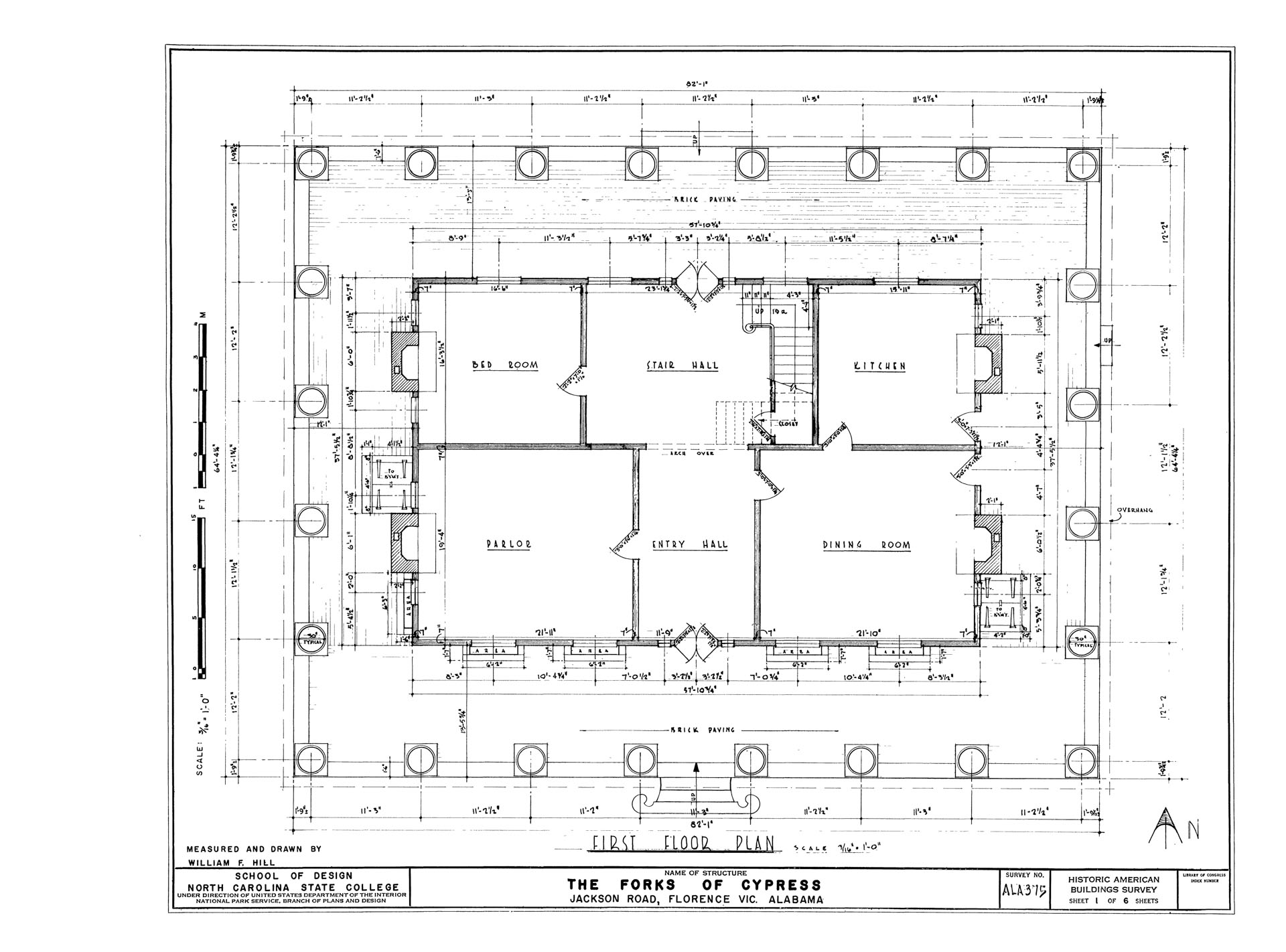
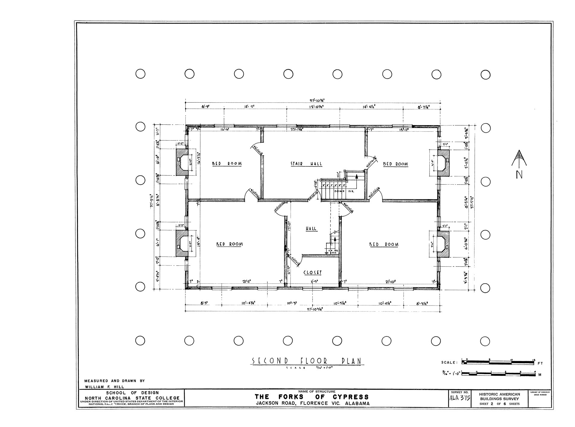
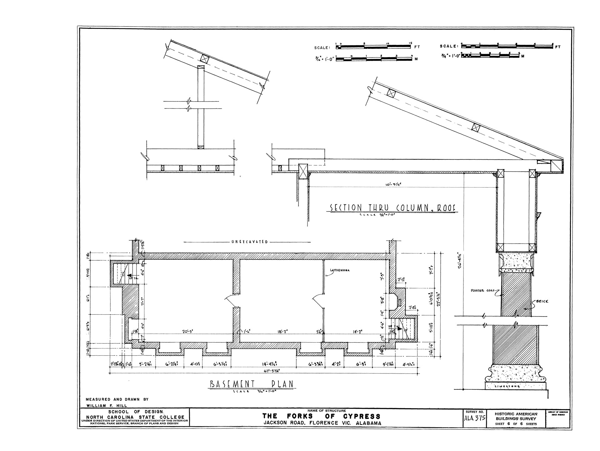
JACKSON ROAD, FLORENCE, LAUDERDALE COUNTY, ALABAMA
Erected 1820.
FRONT ENTRANCE EXTERIOR ELEVATION
FRONT ENTRANCE EXTERIOR ELEVATION
FRONT ENTRANCE INTERIOR ELEVATION
FRONT ENTRANCE INTERIOR ELEVATION
REAR ENTRANCE EXTERIOR ELEVATION
REAR ENTRANCE EXTERIOR ELEVATION
REAR ENTRANCE INTERIOR ELEVATION
REAR ENTRANCE INTERIOR ELEVATION
FRONT AND REAR ENTRANCE MOULDINGS
FRONT AND REAR ENTRANCE MOULDINGS
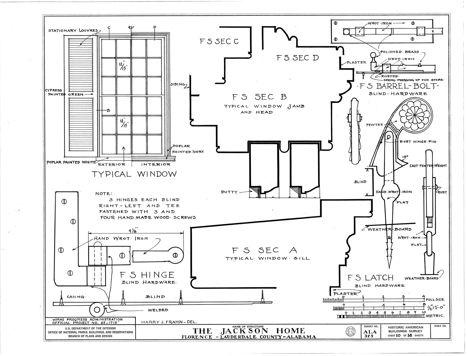
TYPICAL EXTERIOR WINDOW ELEVATION
TYPICAL EXTERIOR WINDOW ELEVATION
TYPICAL EXTERIOR WINDOW ELEVATION AND SECTION
TYPICAL INTERIOR WINDOW ELEVATION
TYPICAL INTERIOR WINDOW ELEVATION
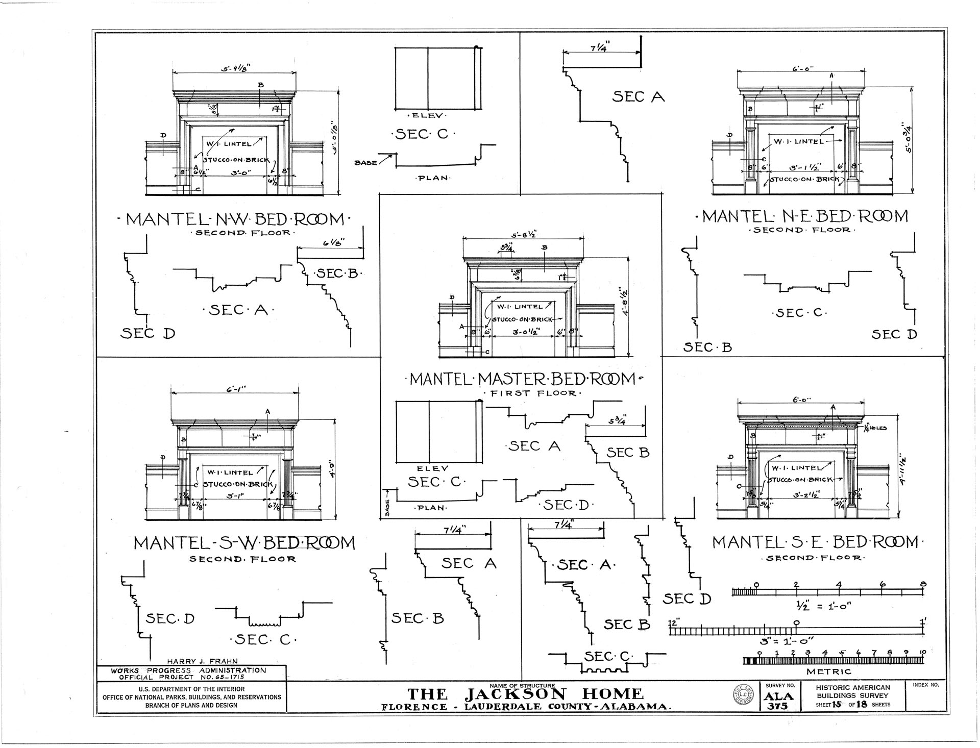
PARLOR MANTEL ELEVATION AND PLAN
EAST ELEVATION OF DINING ROOM
EAST ELEVATION OF DINING ROOM
EAST ELEVATION AND PLAN OF DINING ROOM
EAST MOULDINGS OF DINING ROOM
ARCH ENTRANCE HALL ELEVATION
ARCH ENTRANCE HALL ELEVATION
ARCH ENTRANCE HALL MOULDINGS
MAIN STAIRS ELEVATION AND PLAN
MAIN STAIRS DETAIL ELEVATION