New Design Resource! Common Moulding Assemblies

Download Now

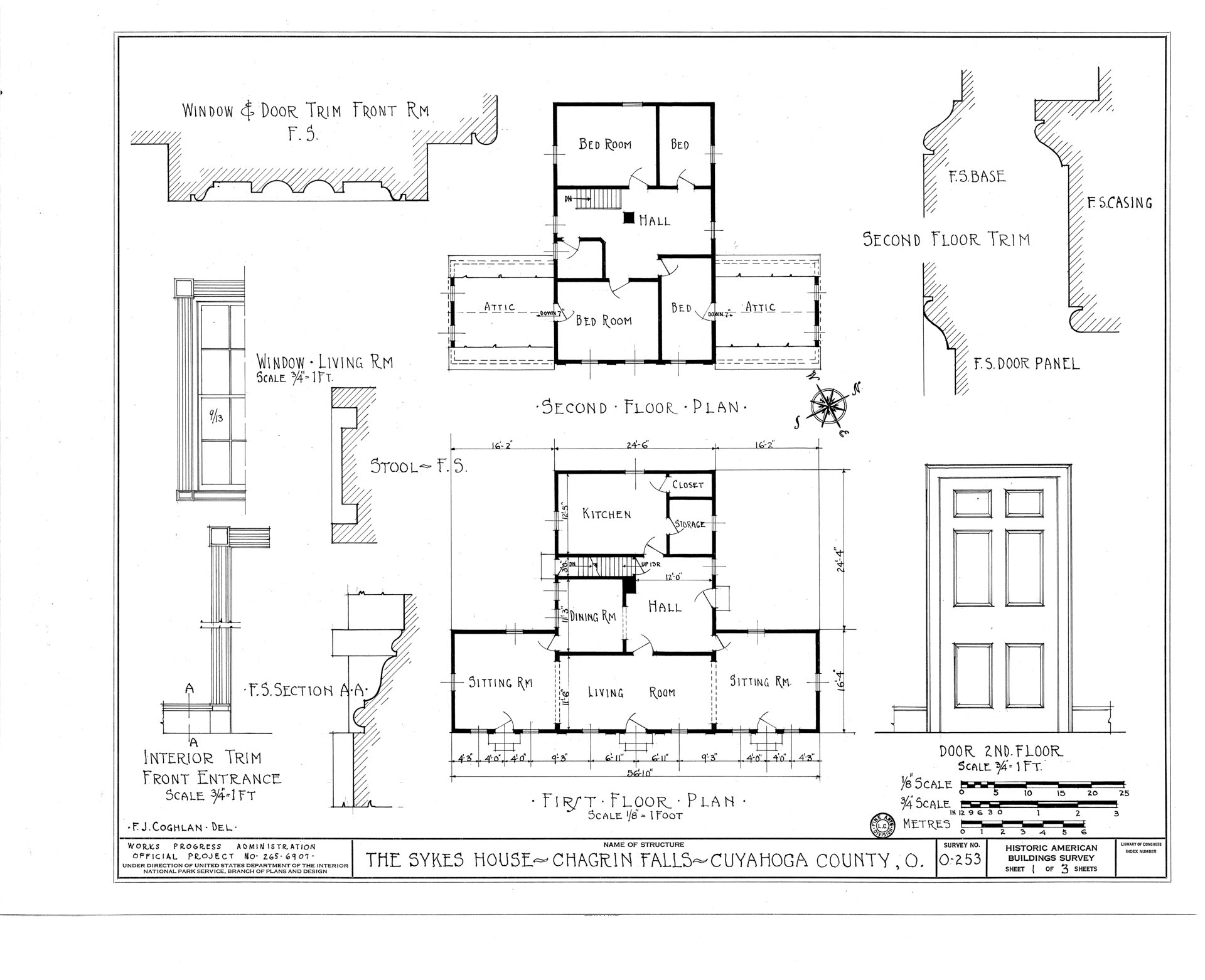
ROUTE 232, CHAGRIN FALLS, CUYAHOGA COUNTY, OHIO.

Erected 1850.