New Design Resource! Common Moulding Assemblies

Download Now

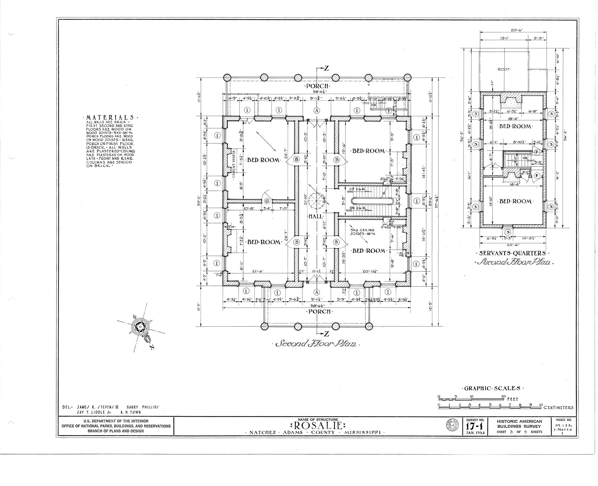
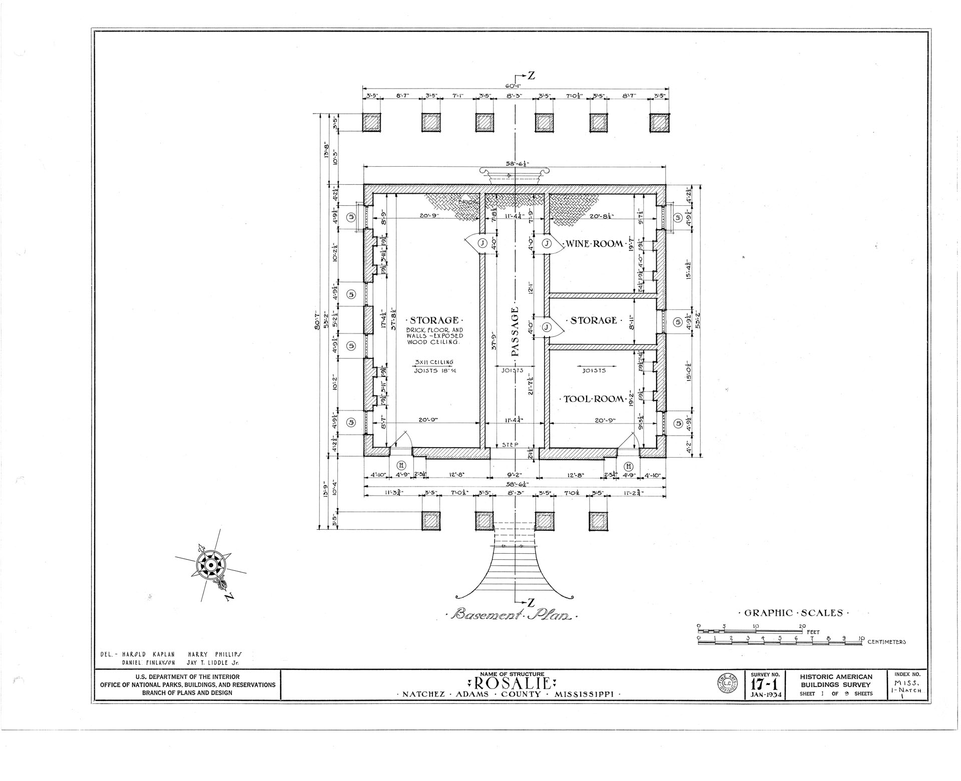
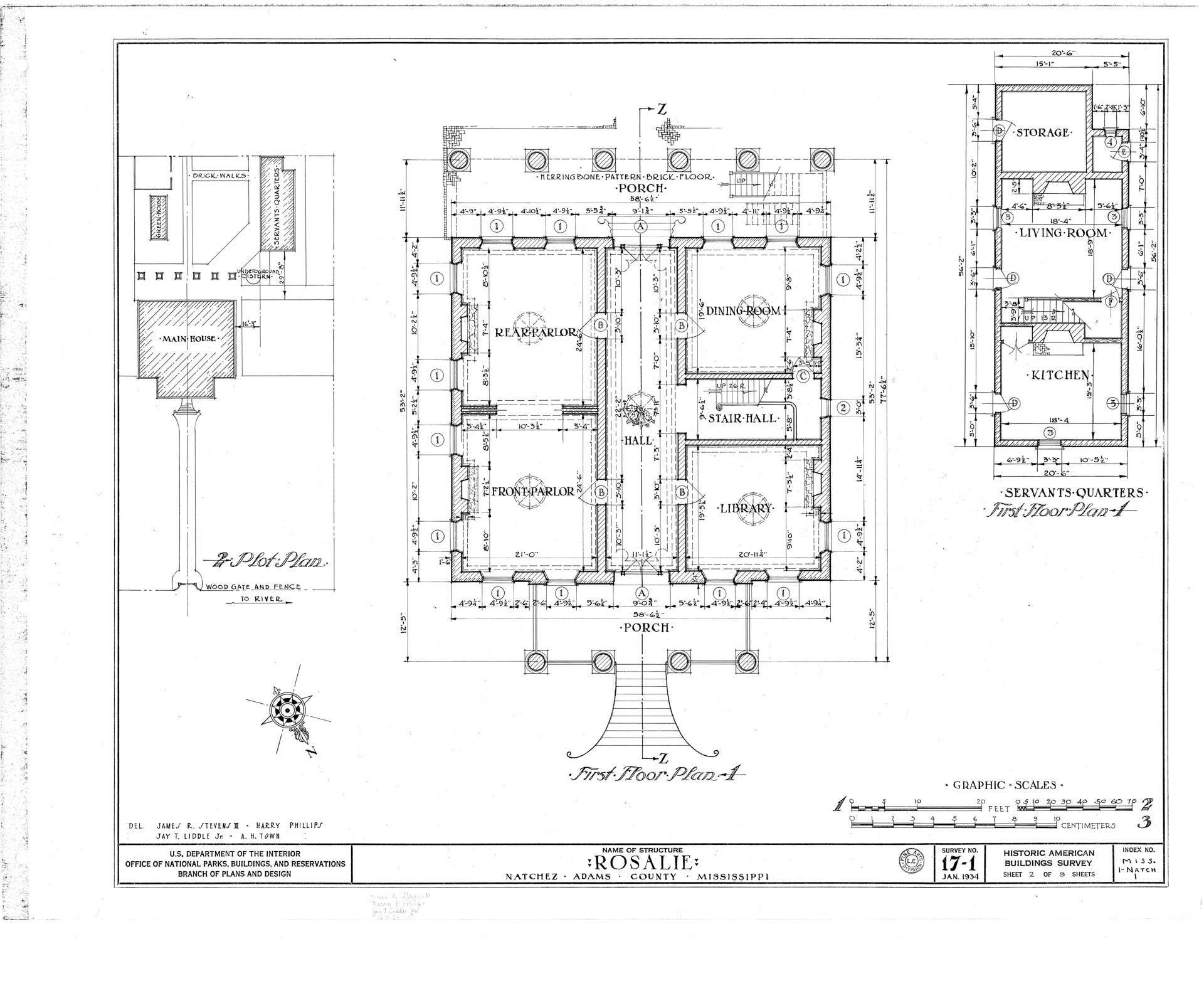
100 ORLEANS STREET, NATCHEZ, ADAMS COUNTY, MISSISSIPPI

Rosalie Mansion, located at 100 Orleans St. in Natchez, stands as one of the city's earliest homes, nestled in a park-like downtown setting. This Antebellum gem combines Federal and Georgian architectural styles, featuring a front facade adorned with soaring Tuscan columns, delicate fanlights, wide hallways, and spacious rooms. Its stunning formal gardens offer a captivating vista of the Mississippi River, cementing Rosalie's status as one of Natchez’s premier classical revival mansions, named after nearby Fort Rosalie, established by the French in 1716 in honor of the Countess of Pontchartrain. During the Civil War, Rosalie served as headquarters for the Union Army during the Federal occupation of Natchez, owing to its prominent location.

Constructed in 1823 for wealthy cotton planter Peter Little, who relocated from Pennsylvania, Rosalie has a rich history of generosity and hospitality. Although Peter and his wife, Eliza, never had children of their own, they opened their home to orphans, with Eliza founding the Natchez Children’s Home. Upon their ownership, Mr. and Mrs. Andrew Wilson continued this tradition, welcoming children into their home despite not having children of their own.

Rosalie’s layout includes four rooms on each of its two floors, two large hallways, a full attic, and a spacious basement. Notable features include a panoramic painting of Natchez by Ottoman, showcasing the home’s beginnings, and sturdy heart-of-cypress stair parts and wood trim furnished by Peter Little. Significant rooms include the library, front parlor, back parlor (also known as the Music Room), dining room, and General’s Room, where Union Army General Walter Gresham stayed during his tenure.

Preserving its historical charm, Rosalie boasts original wood fireplaces, Italian marble mantels, and coal-burning fireplaces. The Music Room houses two pianos and a harp, a family heirloom from London. Throughout the mansion, family portraits, leather music books, and porcelain pieces offer glimpses into its storied past.

Designated as a National Historic Landmark in 1989, Rosalie continues to serve as an iconic symbol of Natchez, offering daily tours and standing proudly on the bluff, welcoming visitors to experience its rich history and architectural splendor.