New Design Resource! Common Moulding Assemblies

Download Now

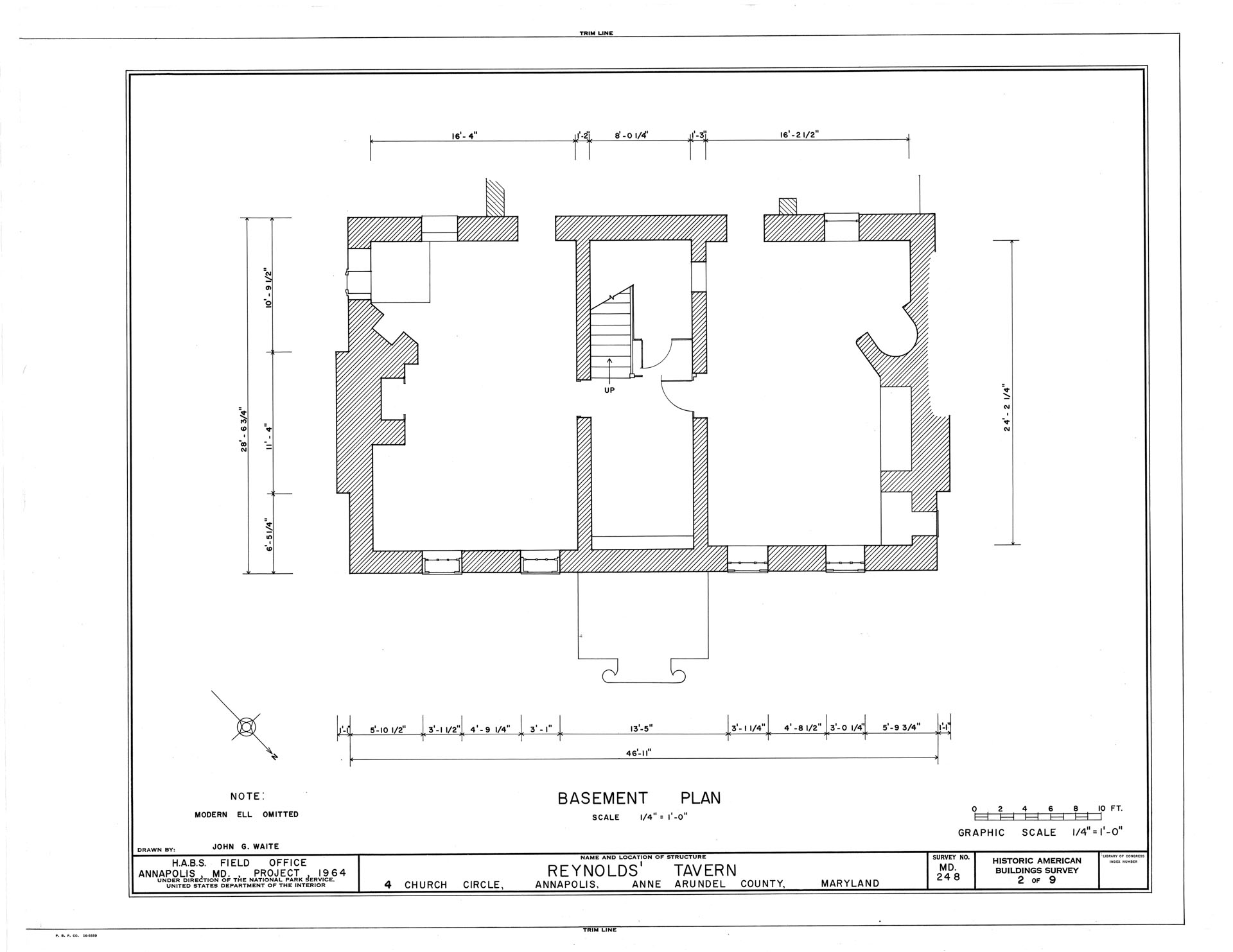
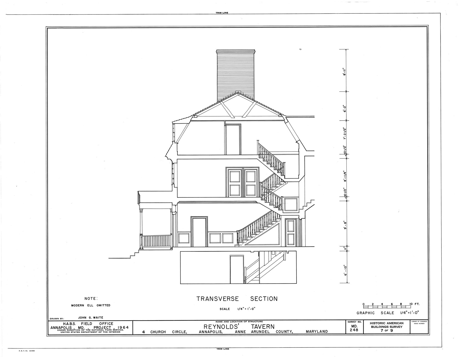
7 CHURCH CIRCLE, ANNAPOLIS, ANNE ARUNDEL COUNTY, MARYLAND

In the heart of the Annapolis Historic District, this tavern was constructed by William Reynolds in 1747. It later served as a library from 1935-1974 before being transferred to the National Trust for Historic Preservation. In 2000, it was purchased by Jill and Andrew Petit and operates as a tavern much like it did in the 18th century. Reynolds Tavern is one of the oldest taverns in the United States.