New Design Resource! Common Moulding Assemblies

Download Now

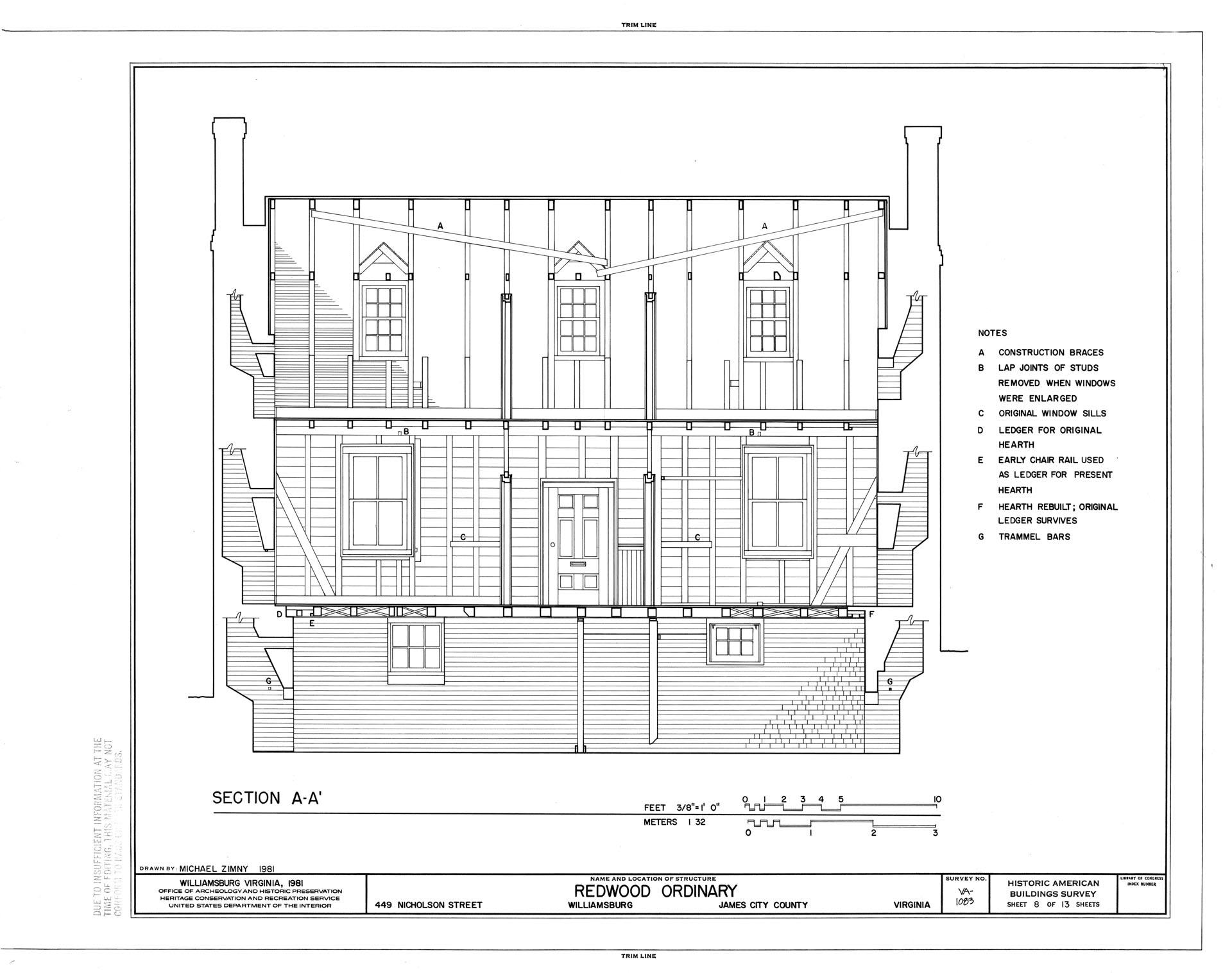
449 NICHOLSON STREET, WILLIAMSBURG, INDEPENDENT CITY, VIRGINIA

Erected 1825.