The Peter Allen House was built by architect Willis Smith in 1821. It is located at 8581 State Street in Kinsman, Ohio.
This Federal style home first belonged to Dr. Peter Allen, a skilled physician and Kinsman’s first medical doctor. Architect Smith’s other local projects included the Kinsman Presbyterian Church, the home for John Kinsman, and several other buildings throughout the town. Allen eventually moved his family to Oberlin, Ohio, and the house was sold to Reverend James Plant.
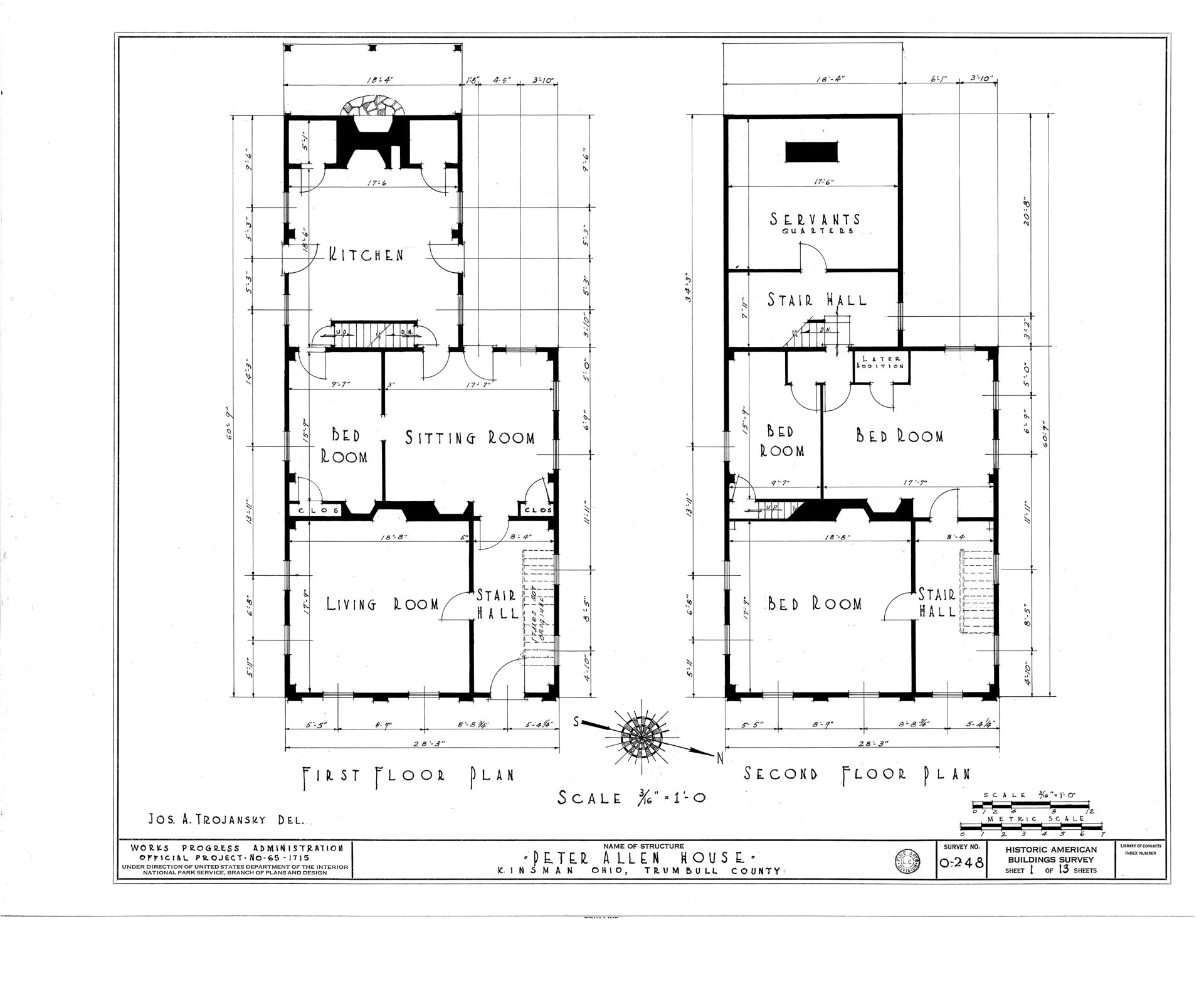
Learn more about the architectural and historic significance of the Peter Allen House below. To see images of the home, including architectural drawings and sketches, view the Peter Allen House Architecture & Millwork Gallery.
Architectural Features of The Peter Allen House
The Peter Allen House is considered Smith’s greatest architectural work and serves as an example of the Federal architecture characteristic of Ohio’s Western Reserve.
The home embodies the core concepts of Federal architecture —namely its symmetrical floor plan and ornamentation. The front facade features four grand pilasters that frame the windows and a stately entryway. As typical of the Federal style, the front windows are arranged symmetrical, in a grid pattern.
The home also features another common Federal characteristic inspired by Georgian architecture: a gabled roof. Adding to the Neo-classical scale of the Peter Allen House, the gable features dentil molding and intricate eaves.
In 1903, Dr. Dudley Allen, the grandson of Peter Allen, purchased the classical woodwork from the parlor to reinstall it in two separate Cleveland homes. One of those homes was torn down, and its woodwork was transferred to the Western Reserve Historical Society.
Peter Allen House History & Preservation
Over the years, the property changed multiple owners and was in desperate need of restoration. During the Great Depression, an initiative known as the Works Progress Administration dispatched draftsmen across the United States to document historic structures, one being the Peter Allen House. Throughout time, the house was properly restored due to several preservation projects.
At one time during the 20th century, Mrs. Alice Blaemire purchased the house and opened it as a tea room to host private dinner parties. In 2008, Richard Thompson and his wife purchased the property from Mrs. Blaemire. The couple’s passion for historical homes and farmland preservation led them to establish the Richard and Rhonda Thompson Foundation in 2010.
Their vision culminated in the 2016 opening of the Peter Allen Inn & Event Center, which added a kitchen, tavern, banquet room, and gardens. Today, the home is a popular venue for weddings and retreats.
The Peter Allen House was listed in the Library of Congress in 1938 and on the National Register on March 9, 1971.