New Design Resource! Common Moulding Assemblies

Download Now

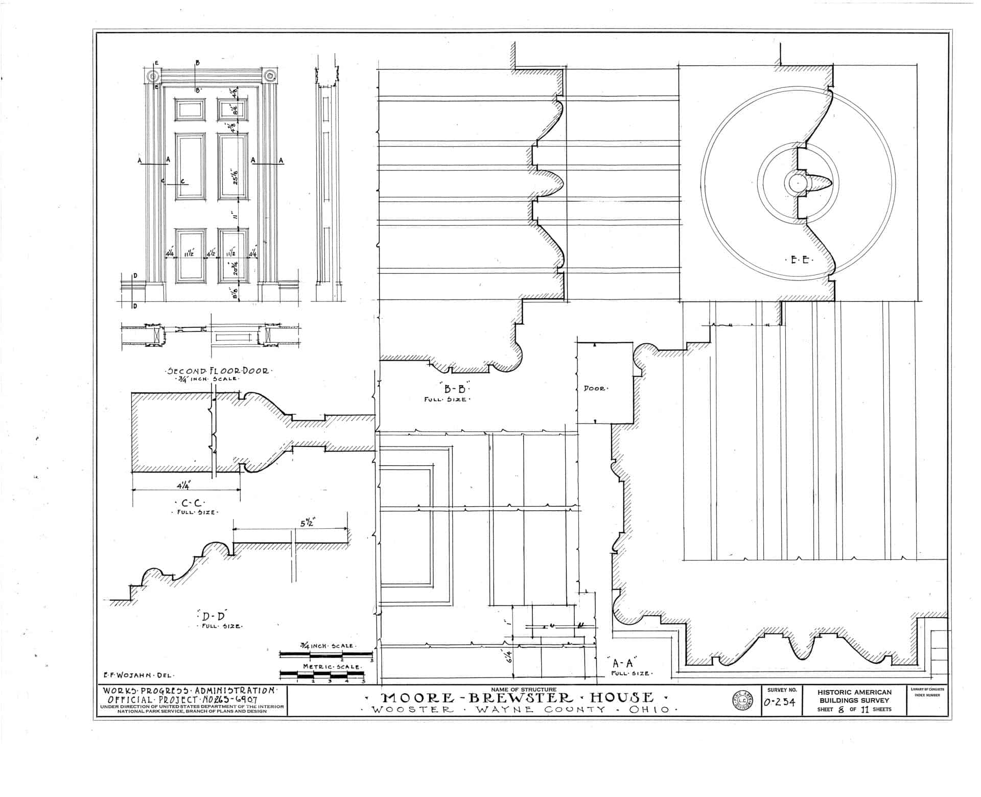
202 MARKET STREET, WOOSTER, WAYNE COUNTY, OHIO.

Erected 1834.