New Design Resource! Common Moulding Assemblies

Download Now

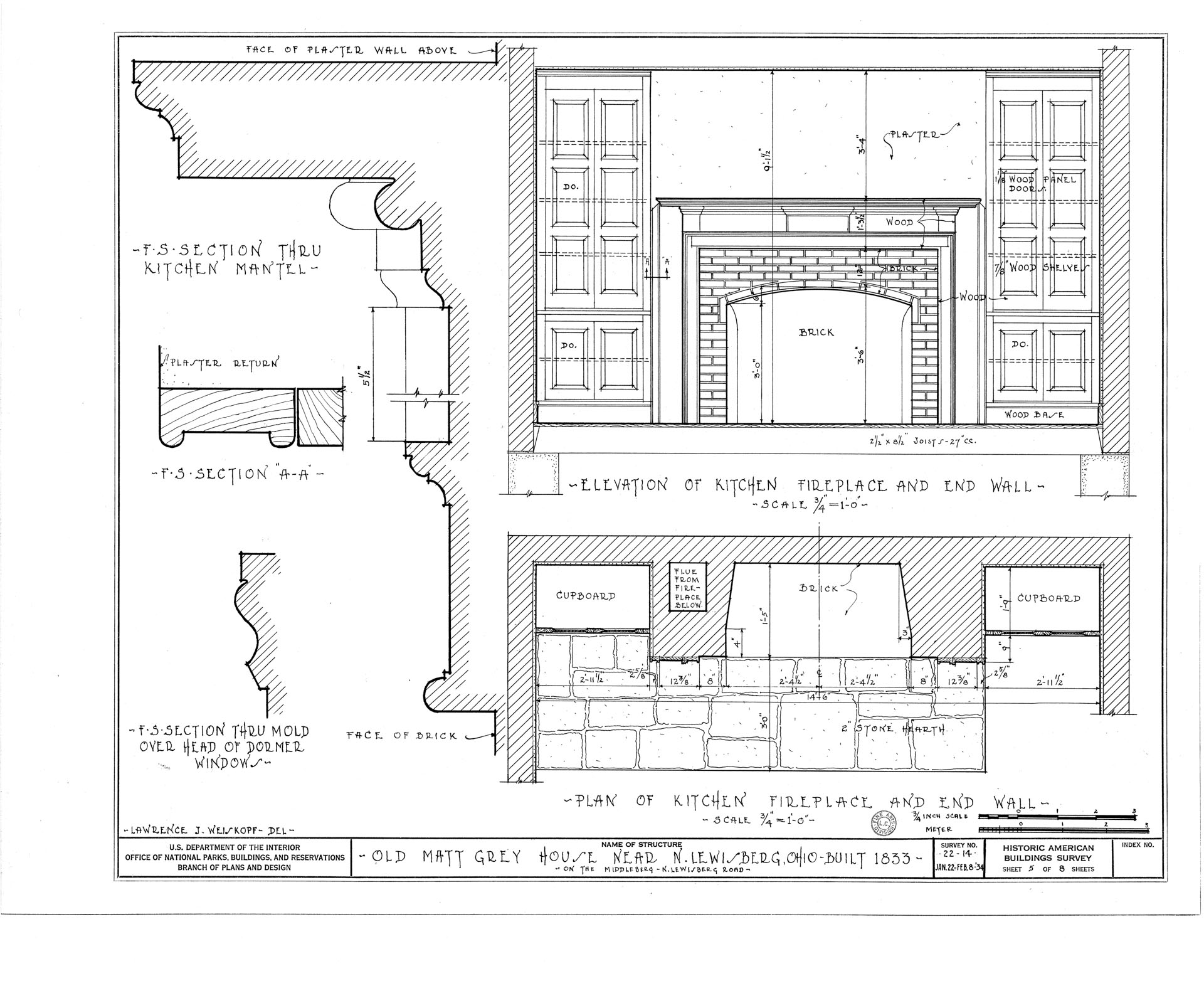
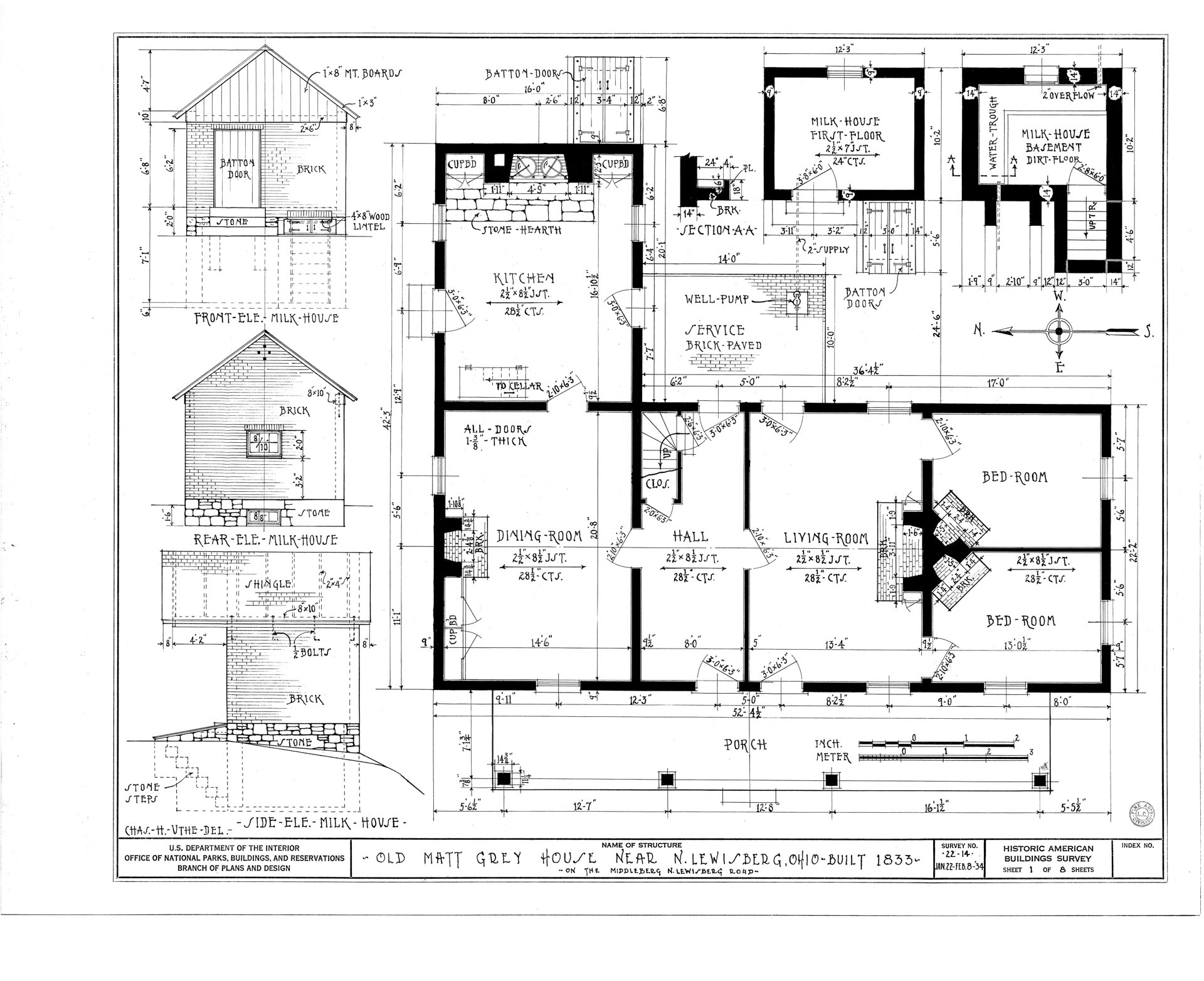
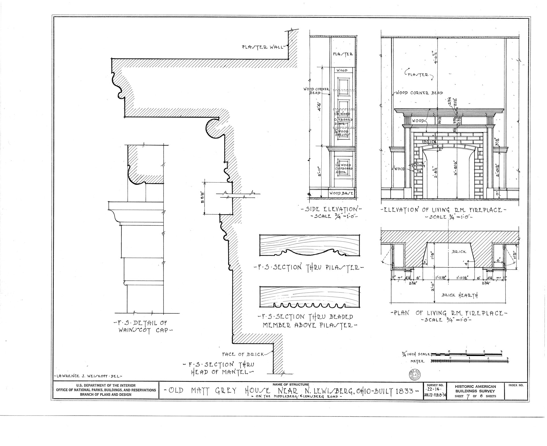
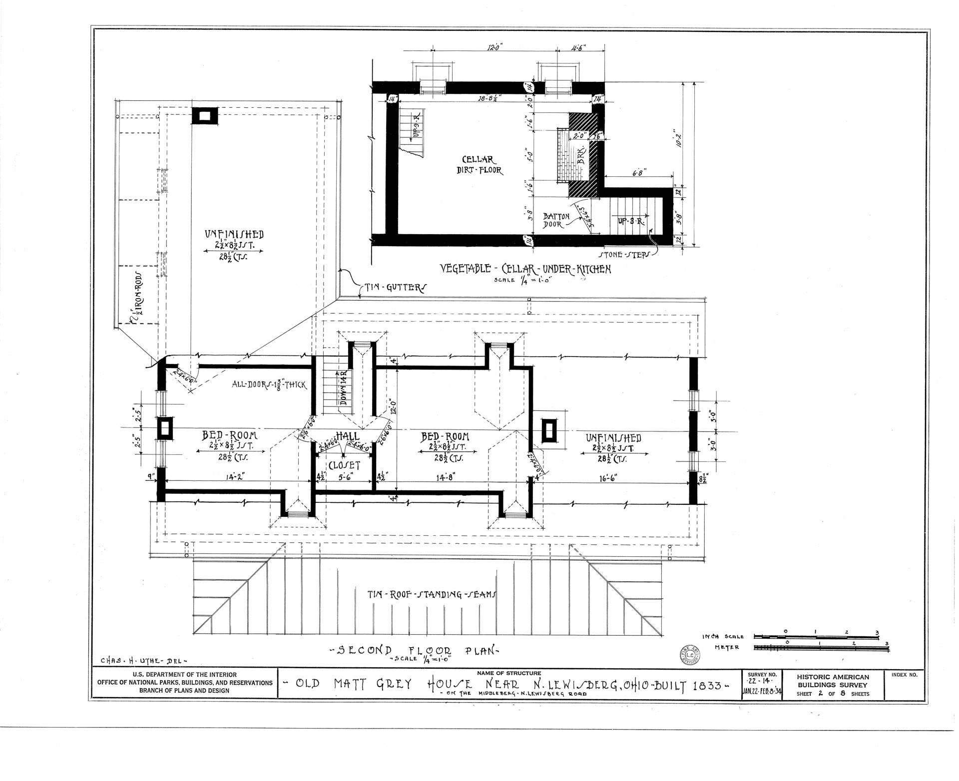
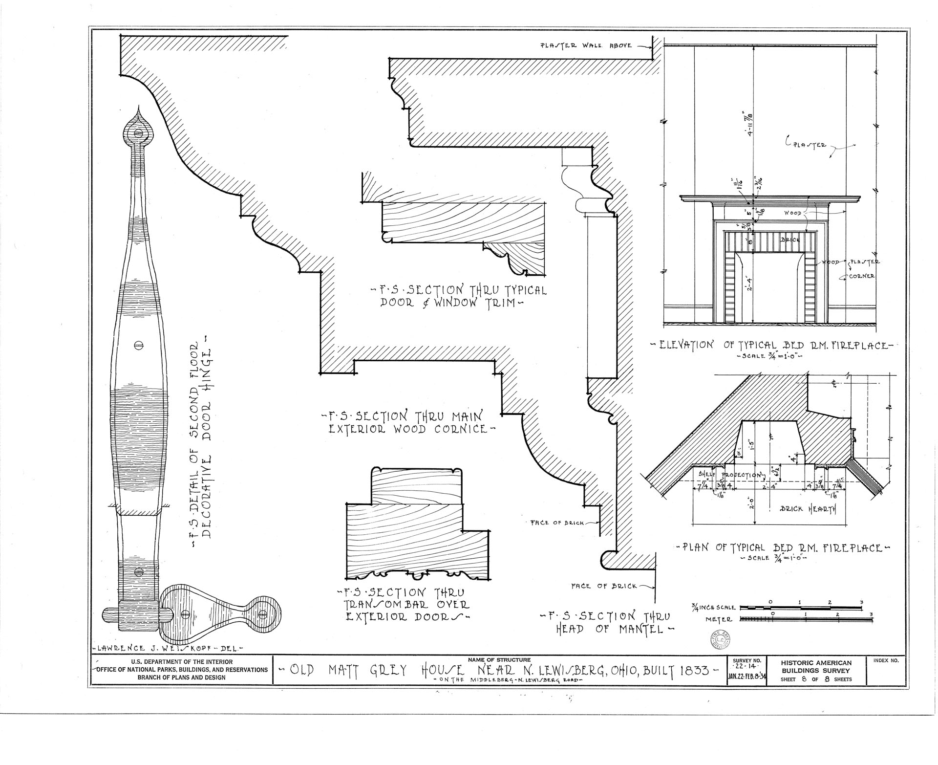
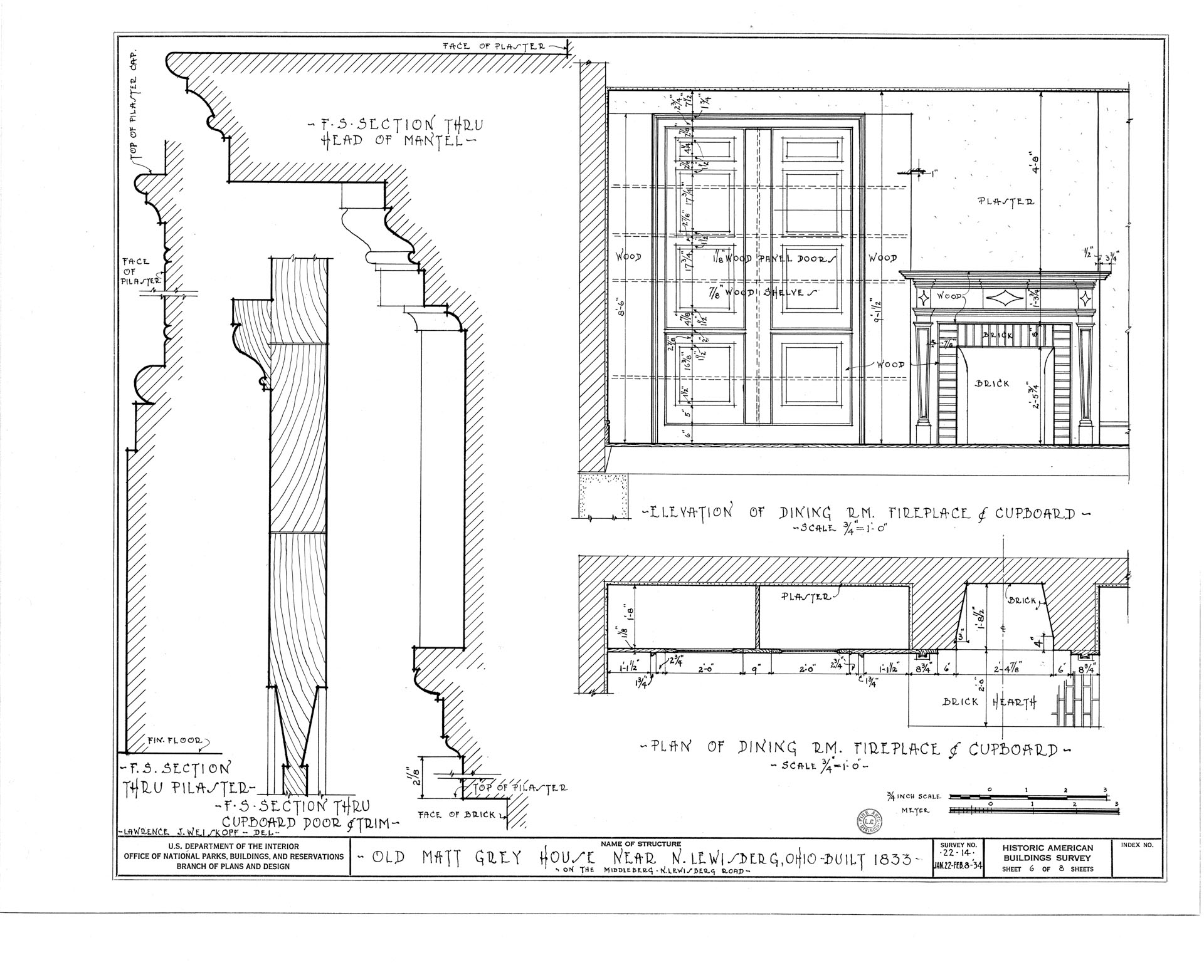
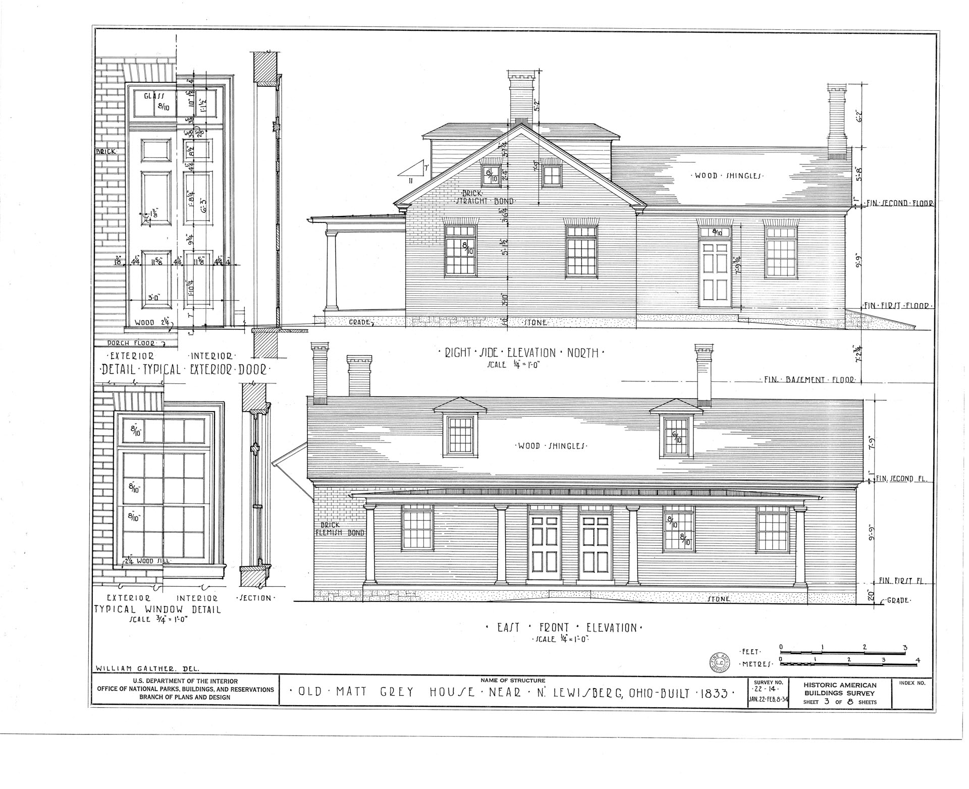
NORTH LEWISBURG, CHAMPAIGN COUNTY, OHIO.

Erected 1833.