New Design Resource! Common Moulding Assemblies

Download Now

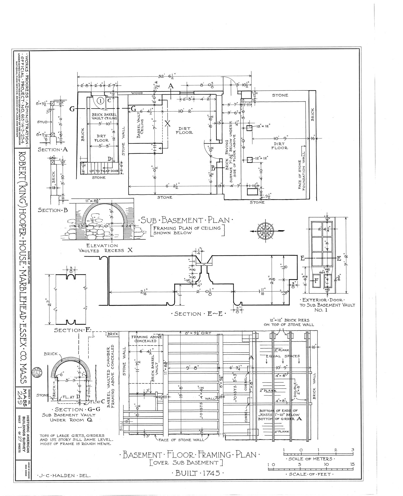
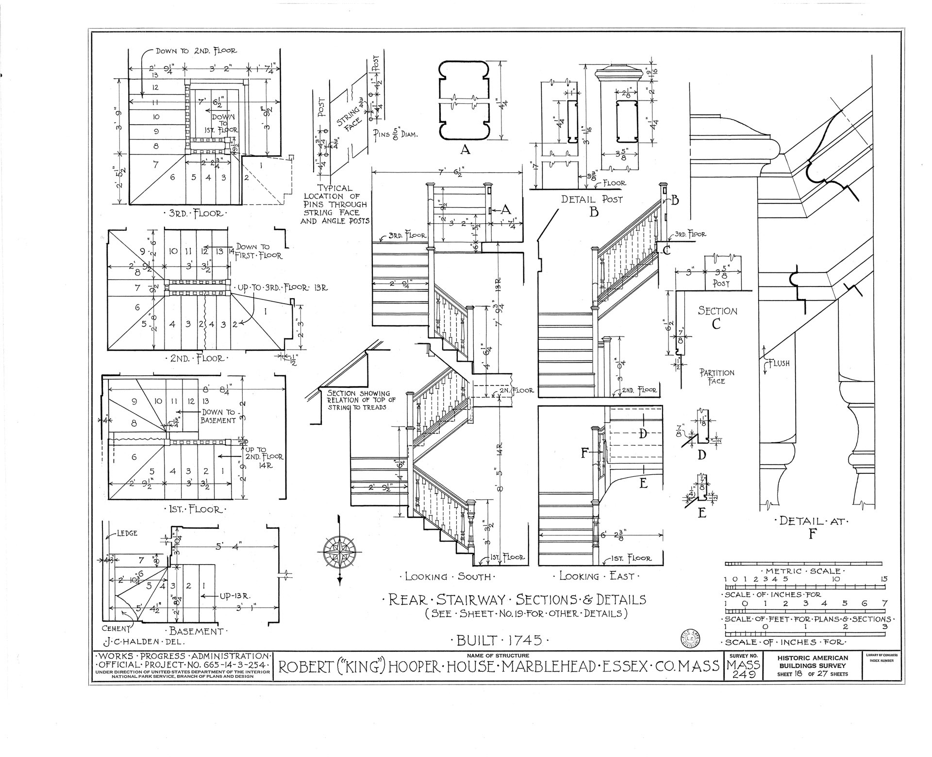
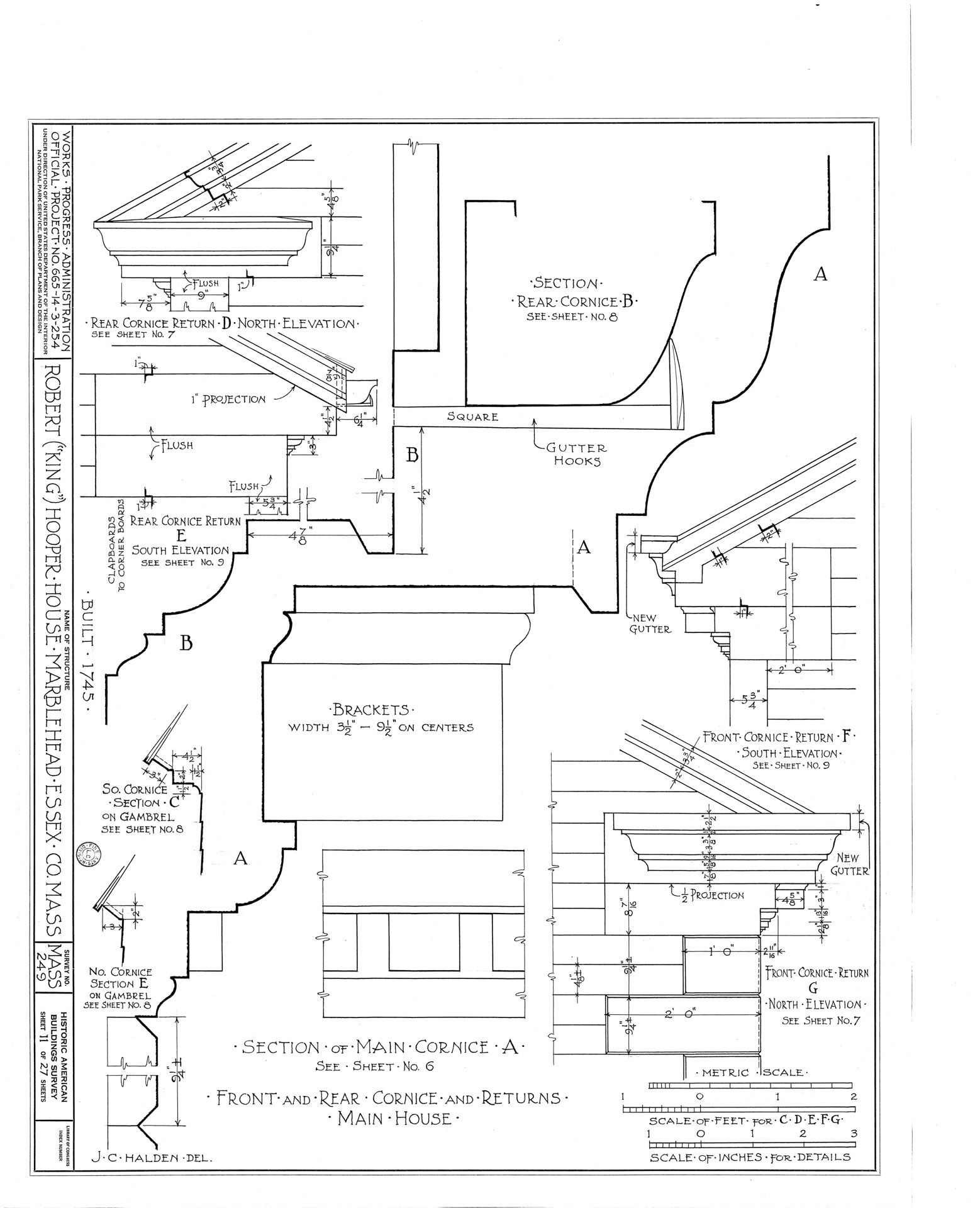
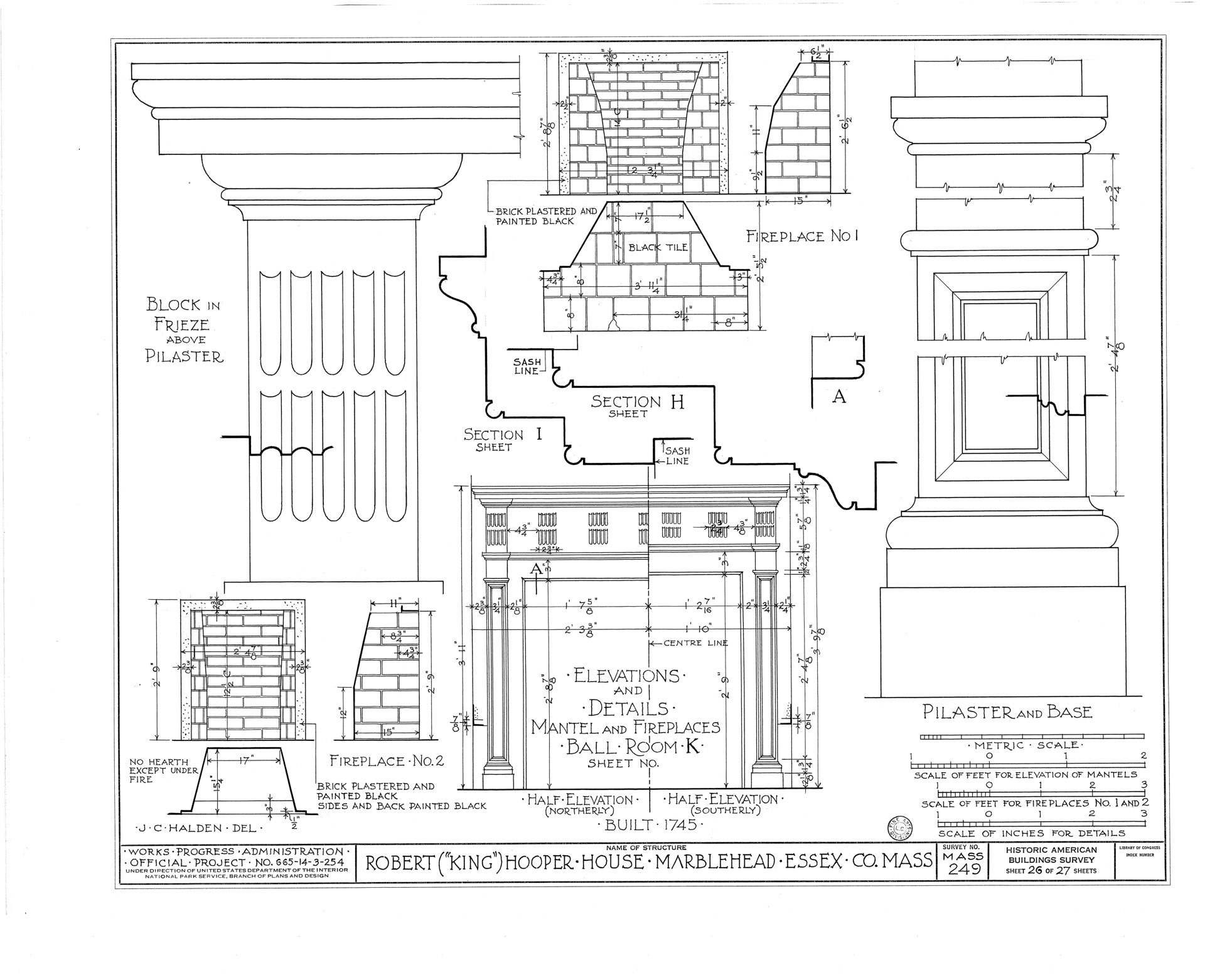
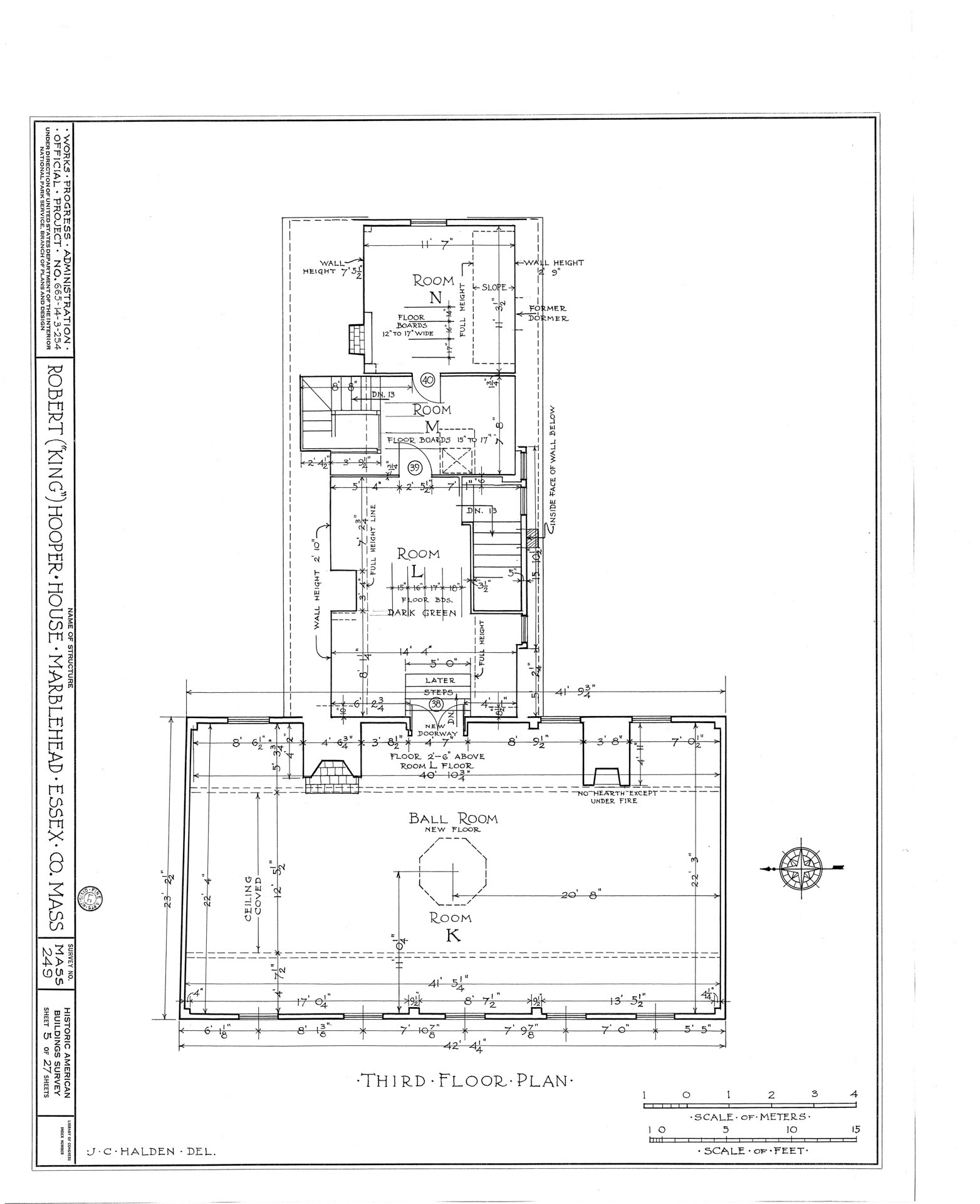
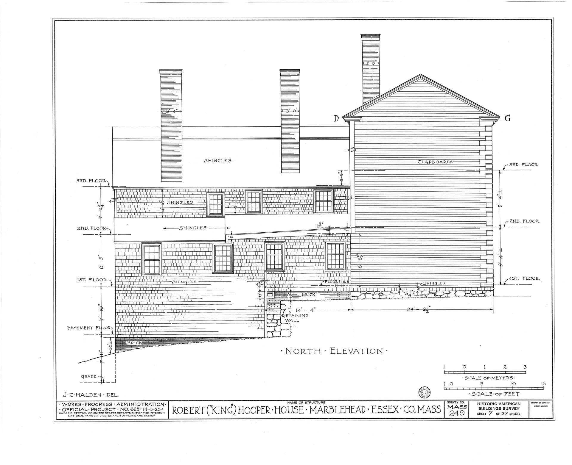
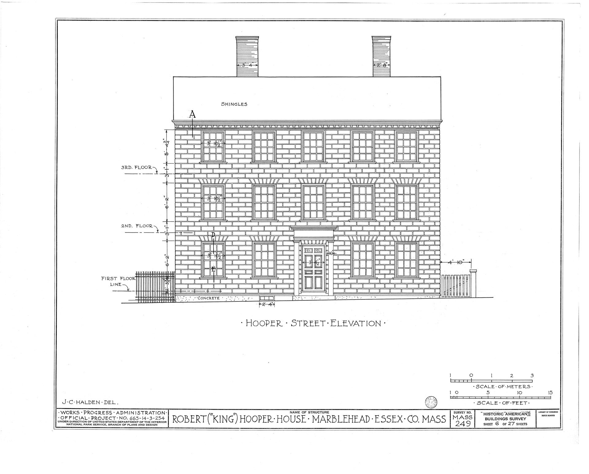
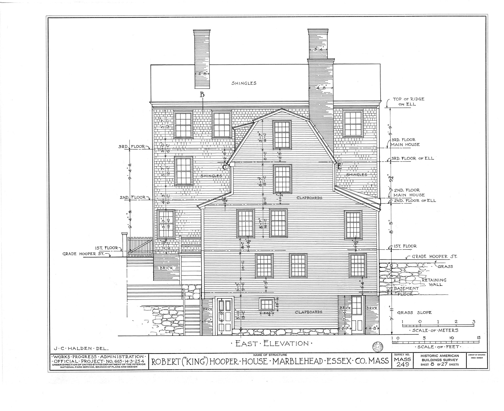
8 HOOPER STREET, MARBLEHEAD, ESSEX COUNTY, MASSACHUSETTS

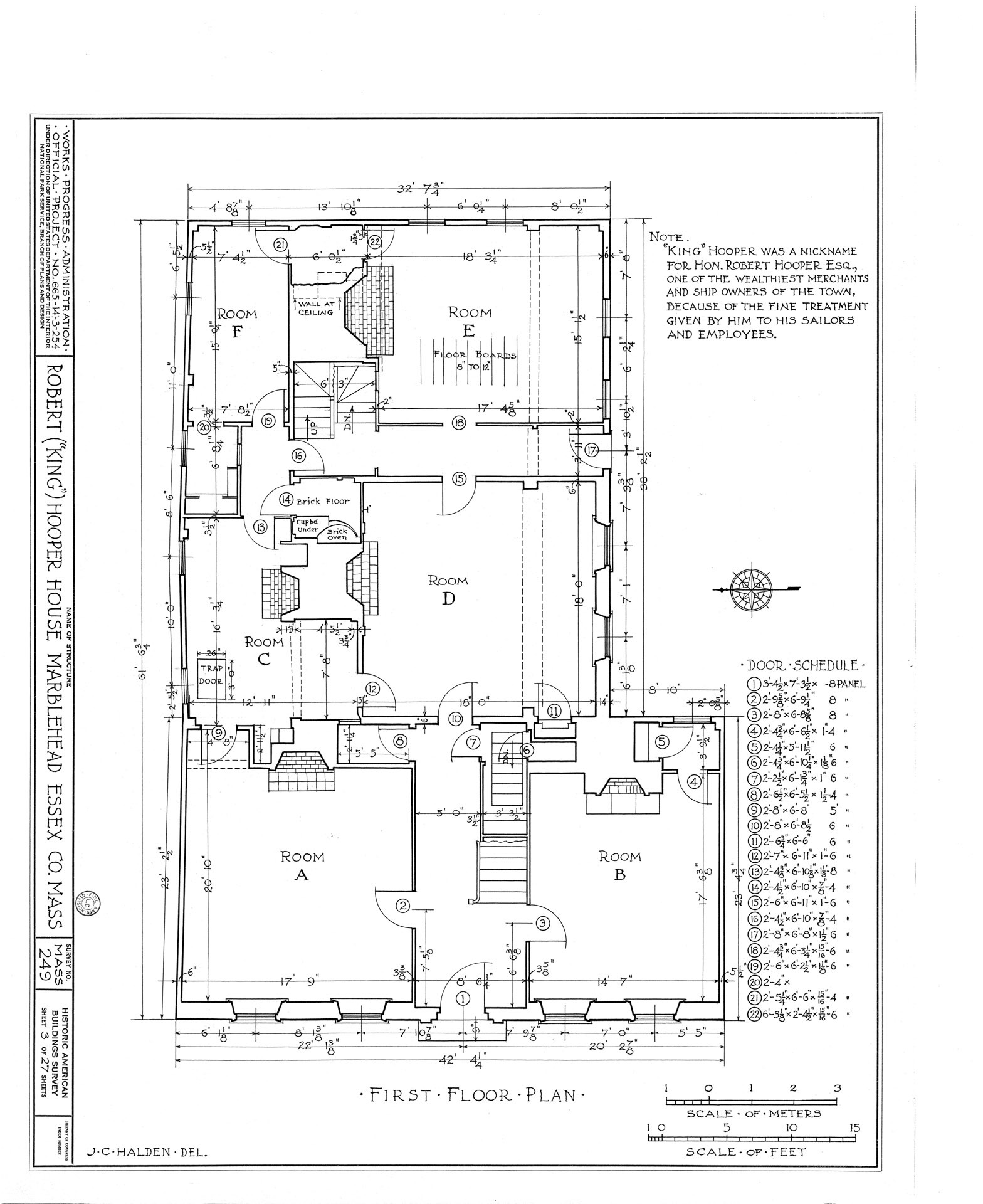
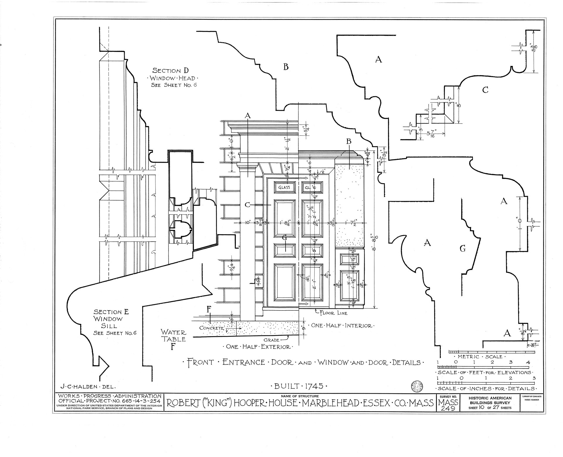
The King Hooper House in Marblehead, Massachusetts stands as one of the most elegant and refined examples of colonial-era Georgian domestic architecture in New England. Built in the early 1700s for the prosperous merchant Robert “King” Hooper, the house reflects the wealth and aspirations of Marblehead’s maritime elite during the height of its trading and fishing prominence. Its balanced five-bay facade, centered classical entrance, and symmetrical sash windows introduced a new architectural refinement to the town, signaling a shift from vernacular coastal dwellings to houses of order, proportion, and prestige.

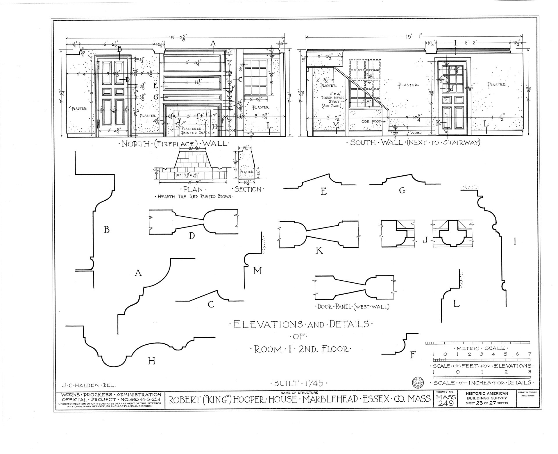
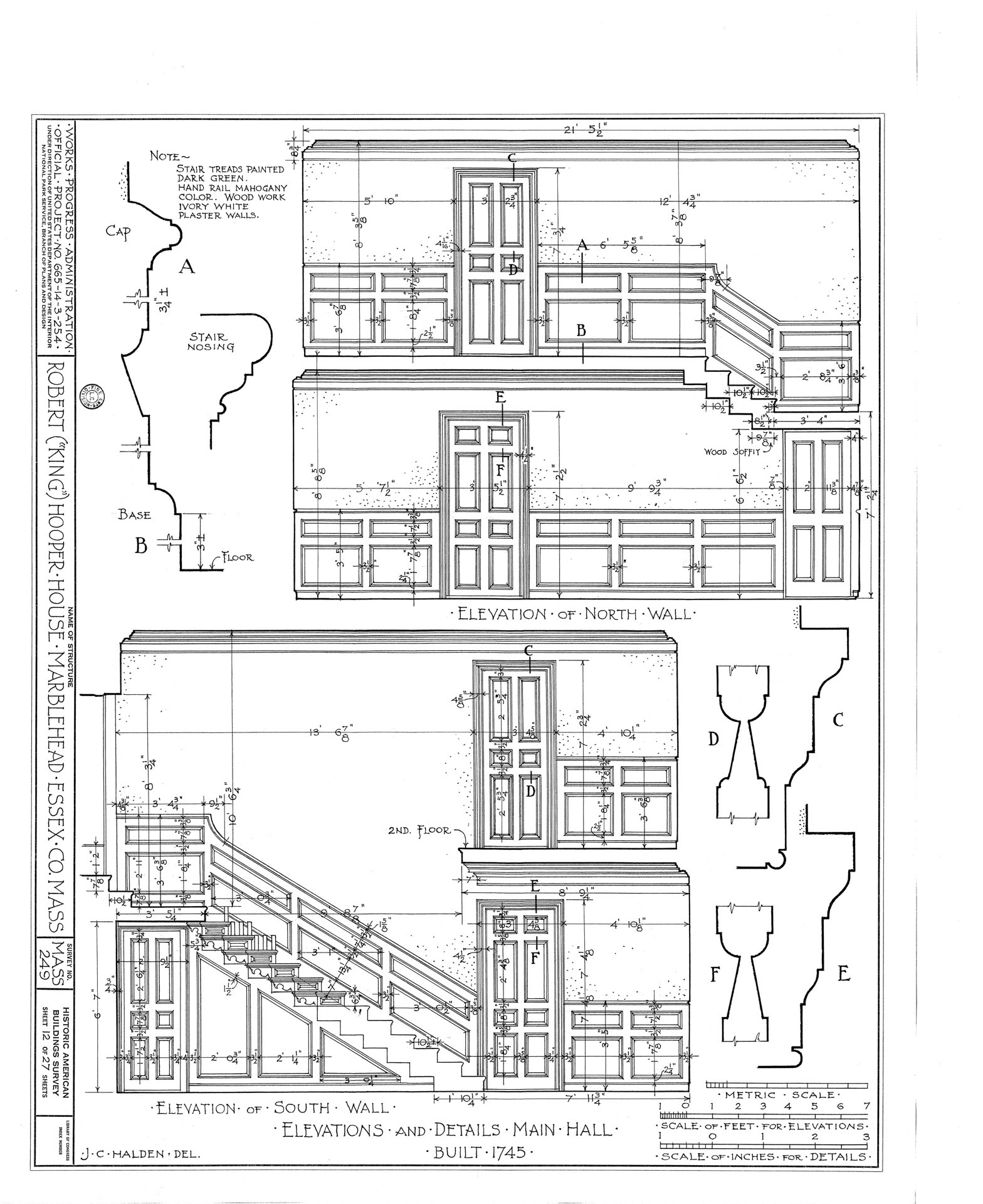
Inside, the King Hooper House reveals some of the finest surviving Georgian millwork in Massachusetts. The formal rooms feature fully paneled walls with raised field panels and elegantly molded stiles and rails. Deep denticulated cornices crown the rooms, while carved fireplace surrounds, bolection moldings, and gracefully detailed casings underscore the classical influences that defined elite taste in mid-18th-century New England. A central stair hall with turned balusters and a sweeping handrail further demonstrates the craftsmanship and design discipline characteristic of the period.

The quality and restraint of the woodwork speak not simply of affluence but of cultural aspiration—an intention to convey permanence, civility, and classical order in a colonial port town. The King Hooper House stands today not only as an architectural treasure but also as a visible link in the chain of historical millwork, preserving profiles, proportions, and joinery traditions that remain as instructive now as they were nearly three centuries ago.