New Design Resource! Common Moulding Assemblies

Download Now

2 EAST THIRD STREET, NEW CASTLE, NEW CASTLE COUNTY, DELAWARE

Kensey Johns House, located in the historic heart of New Castle, Delaware, is a Federal-era townhouse closely associated with jurist Kensey Johns, whose public career mirrored the intellectual gravity of his residence. Erected in the late eighteenth century and subtly updated in the early nineteenth, the structure presents a composed façade shaped by classical precedent and early republican ideals. The orderly arrangement of openings and the carefully articulated entrance convey an architectural language grounded in clarity and reason, reflecting the values of the post-Revolutionary period.

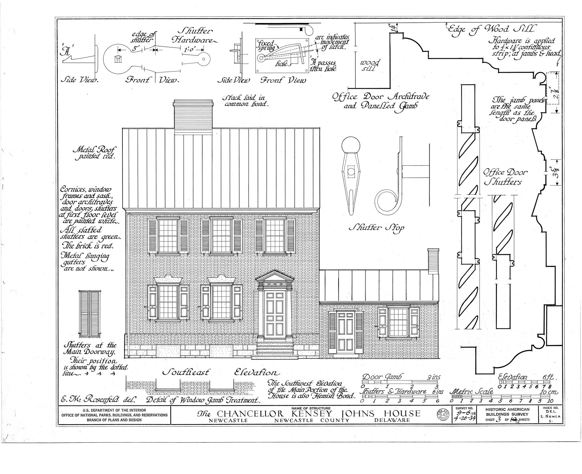
Organized as a side-passage, double-pile plan, the brick townhouse exemplifies the Federal period’s grandeur. The principal entrance is distinguished by Doric pilasters supporting a modest pediment, a composition derived from mid-eighteenth-century British pattern books and indicative of transatlantic design exchange. Within, the house retains richly paneled rooms with period woodwork and hardware, elements of which were later deemed significant enough to be donated to Mount Vernon in the early twentieth century. A secondary wing on the right side historically accommodated Johns’s law office, reinforcing the building’s dual domestic and professional function, while a rear addition dating to 1795 reconfigured service spaces, replacing the earlier cellar kitchen with more convenient dining accommodations.

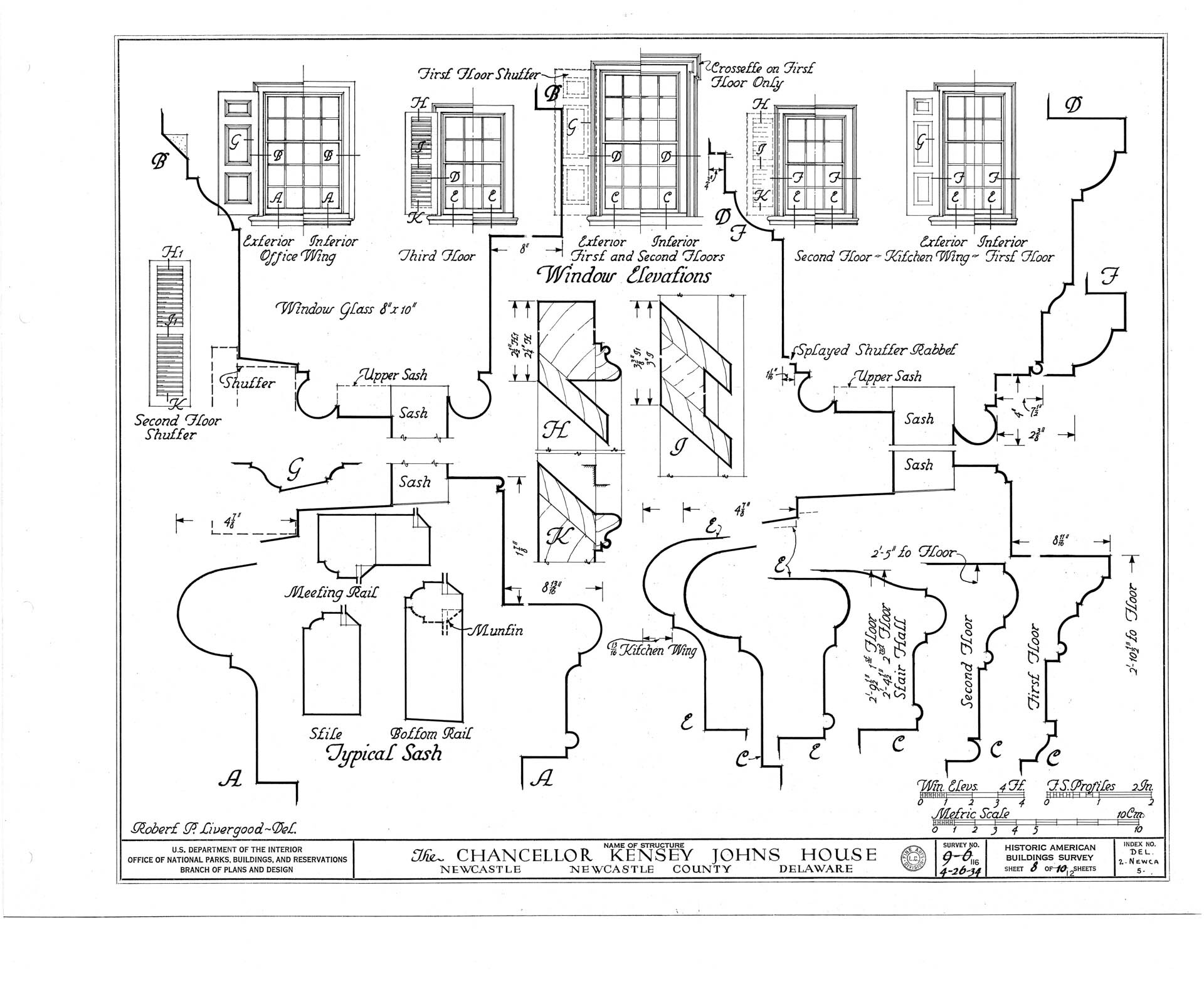
The house reveals a progression of spaces enriched by finely executed millwork, as documented through surviving photographs and measured drawings. Principal rooms are framed by crisply detailed door and window surrounds, their profiles creating depth through light and shadow rather than ornament alone. Mantels and interior cornices employ classical motifs with discretion, while the stair hall introduces a quiet sense of movement through its balanced balustrade and finely shaped newel. Throughout the interior, craftsmanship and design intent remain closely aligned, producing rooms that feel deliberate yet unforced.

Taken as a whole, the Kensey Johns House embodies the architectural values of an emerging professional class that sought longevity through disciplined design and meaning through skilled workmanship. Its significance rests not in spectacle, but in the cumulative effect of carefully selected materials and defined details. The house stands as an instructive example of Federal-period domestic architecture and the enduring power of classical composure.