New Design Resource! Common Moulding Assemblies

Download Now

28 SOUTH MAIN STREET, ALLENTOWN, MONMOUTH COUNTY, NEW JERSEY

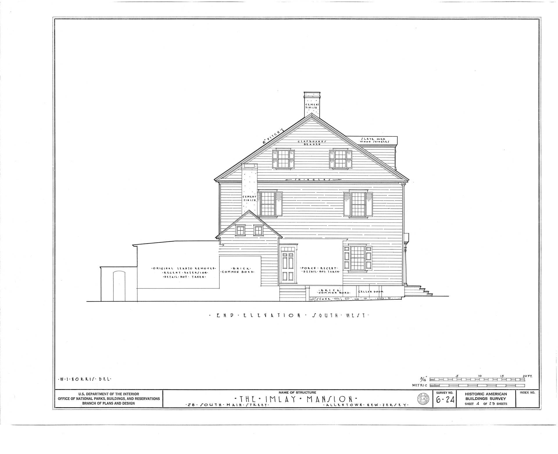
Perched along South Main Street in the heart of Allentown, the John Imlay Mansion rests with calm authority that immediately distinguishes it within the village core. Constructed around 1790 for John Imlay, a prosperous Philadelphia merchant whose trade extended to the West Indies, the residence reflects both the wealth of the Atlantic mercantile world and the aspirational spirit of the early Republic, anchoring the historic streetscape of the borough’s core. Its broad brick walls, disciplined proportions, and balanced composition establish a sense of order and permanence. Instead of relying on excess ornament, the house draws its presence from geometry and measured scale.

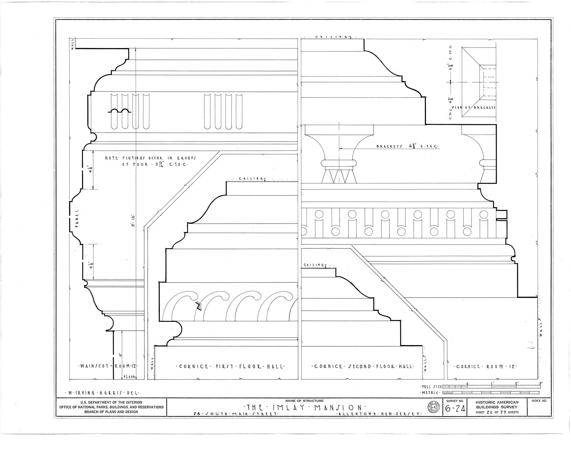
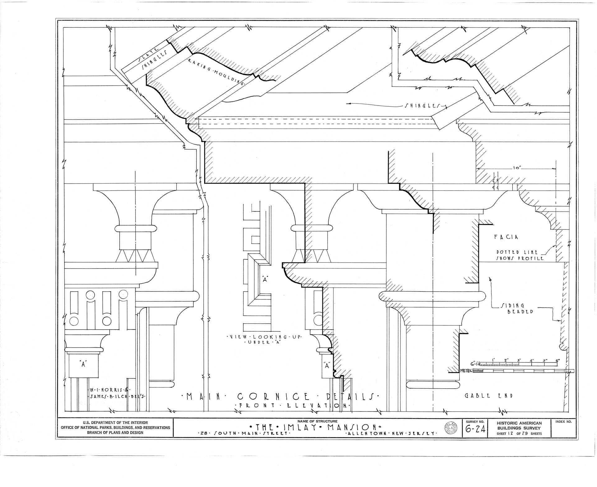
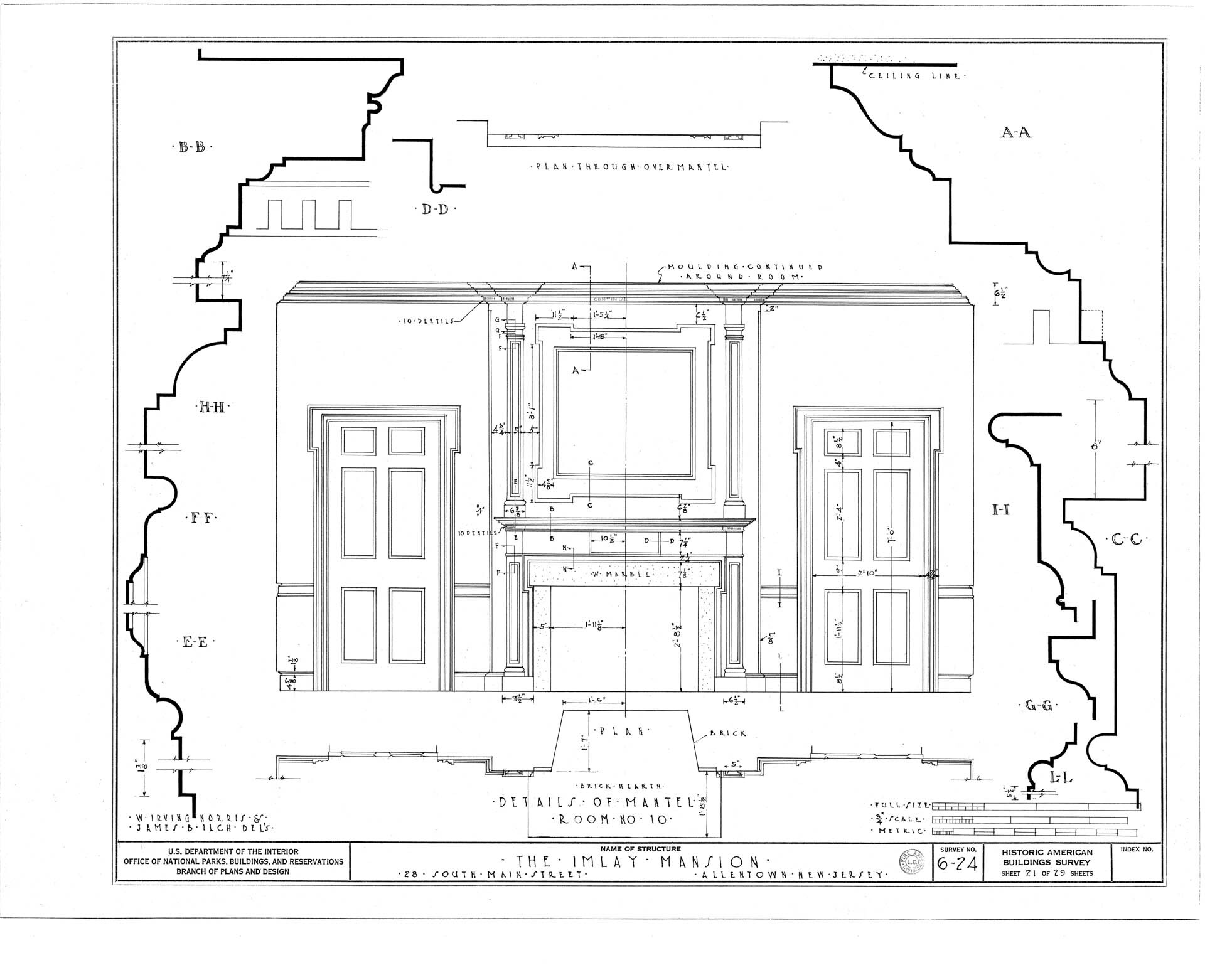
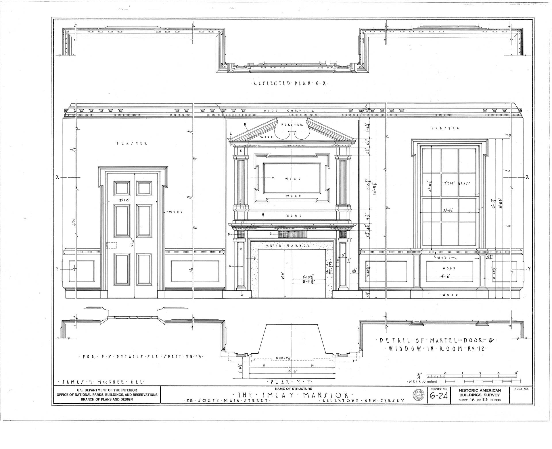
Architecturally, the mansion is grounded in the Georgian tradition, evident in its strict symmetry, centered entrance, and compact rectangular massing. These features express the classical proportion that defined late eighteenth-century design, giving the façade a restrained and dignified character. Yet the house also belongs to a moment of transition. Built at the close of the century, it quietly incorporates the emerging influence of the Federal style, particularly in its interior detailing, where profiles become lighter and ornamentation more refined. This blending of traditions allows the structure to retain the solidity of Georgian form while adopting the grace and neoclassical elegance that would soon define early American domestic architecture.

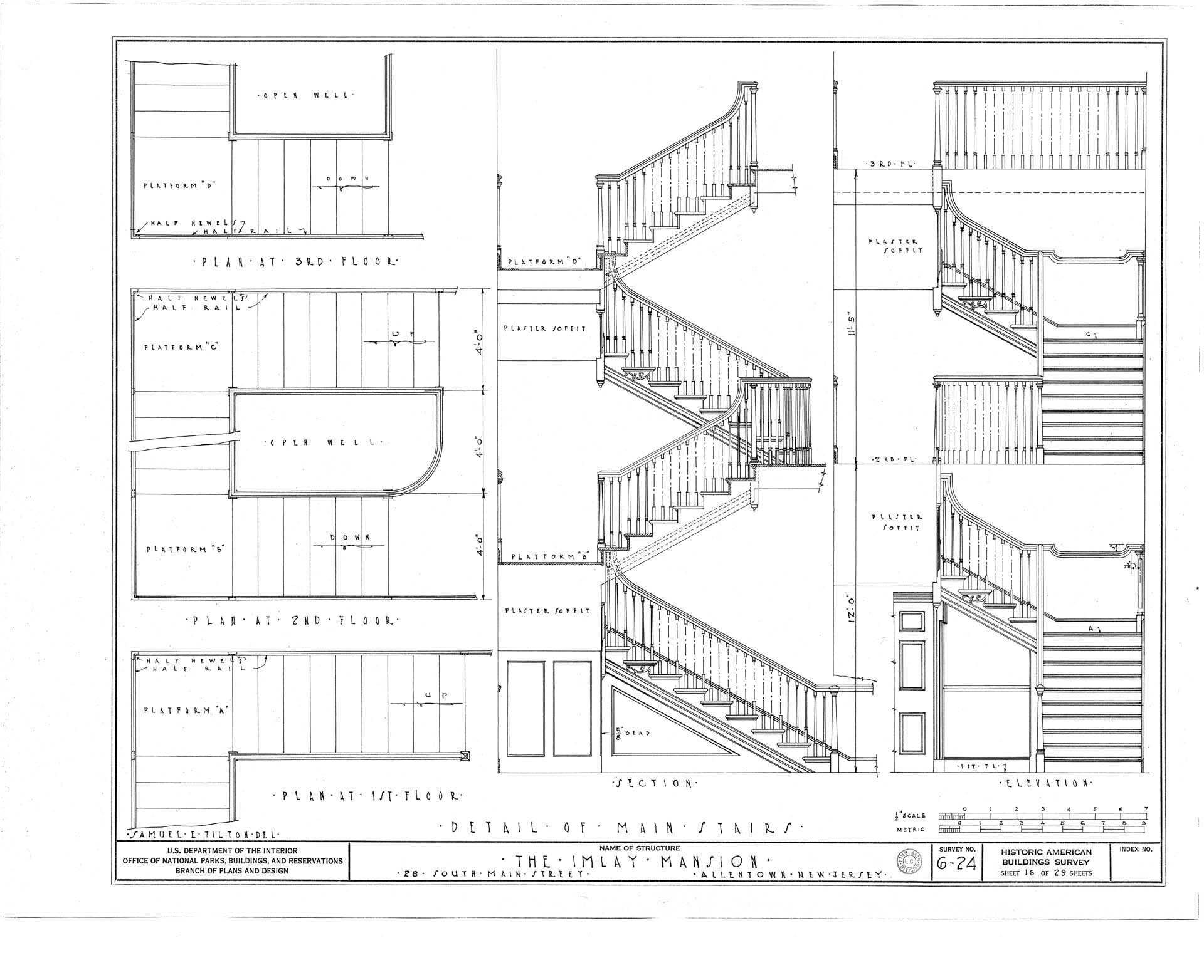
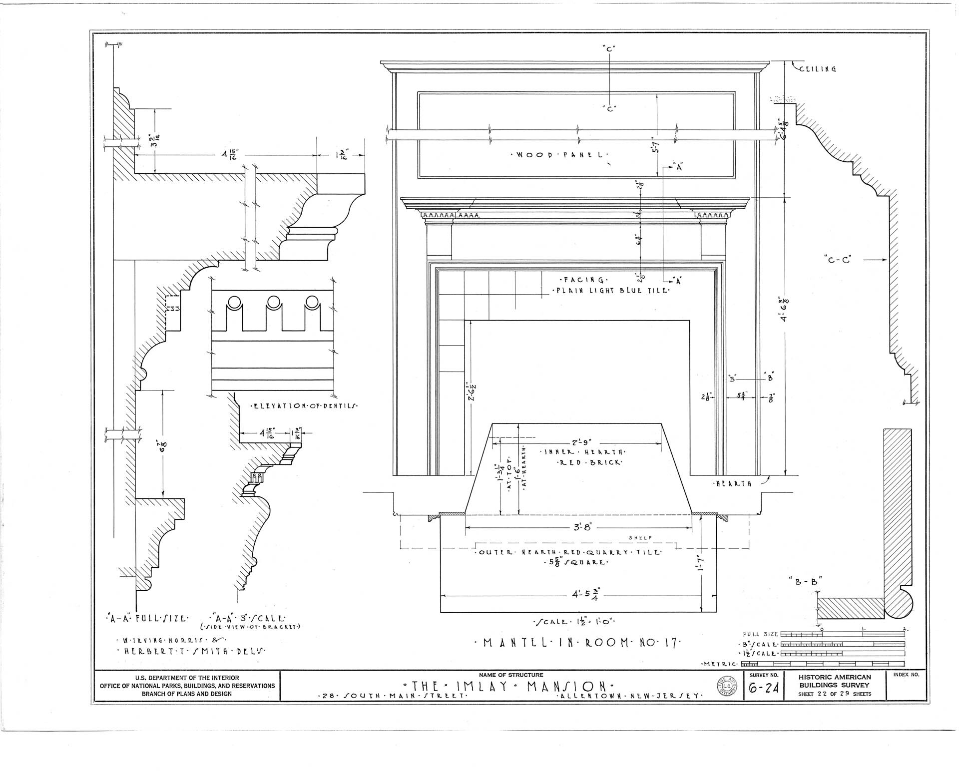
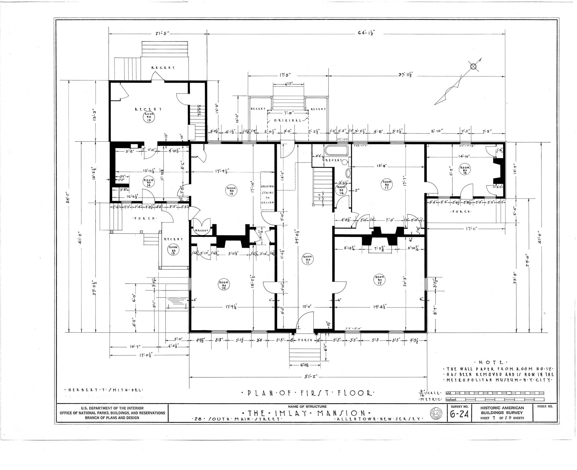
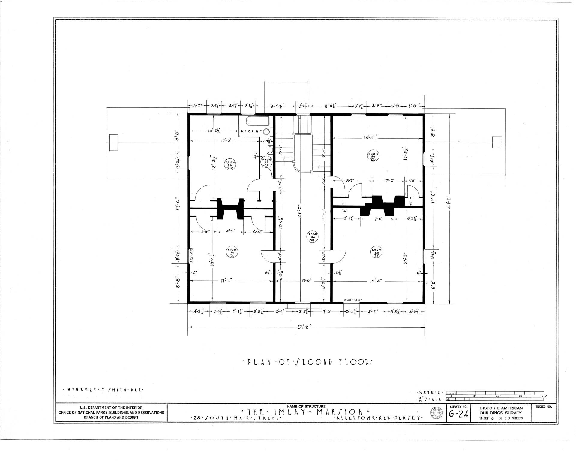
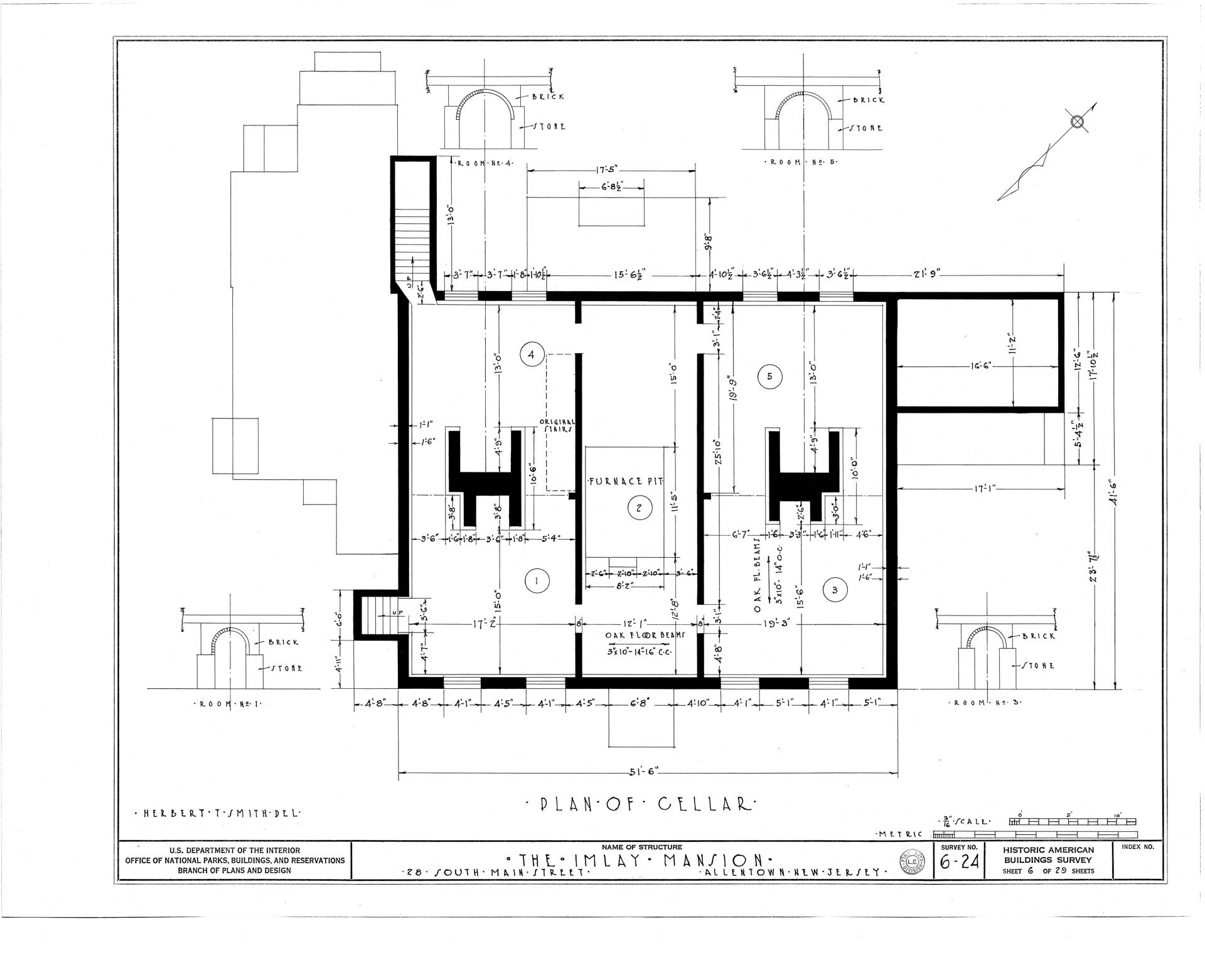
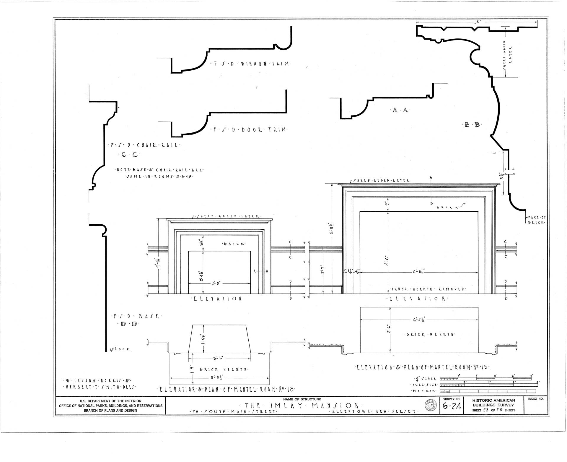
Within, craftsmanship and material richness reinforce this narrative of sophistication and global connection. Eleven fireplaces punctuated the fifteen rooms, where daily life was structured around hearth and gathering. At least one room once featured imported French Louis XVI hand-blocked wallpaper, a testament to Imlay’s cosmopolitan tastes and access to luxury materials through his mercantile networks, portions of which now reside in both the Metropolitan Museum of Art and the Winterthur Museum. Such finishes introduced a lighter, more polished atmosphere that softened Georgian weight with Federal delicacy. The mansion’s measured drawings and photographs preserve its enduring form for future generations, ensuring that this Georgian jewel continues to captivate those who walk past its dignified façade or study its details in archival form.