New Design Resource! Common Moulding Assemblies

Download Now

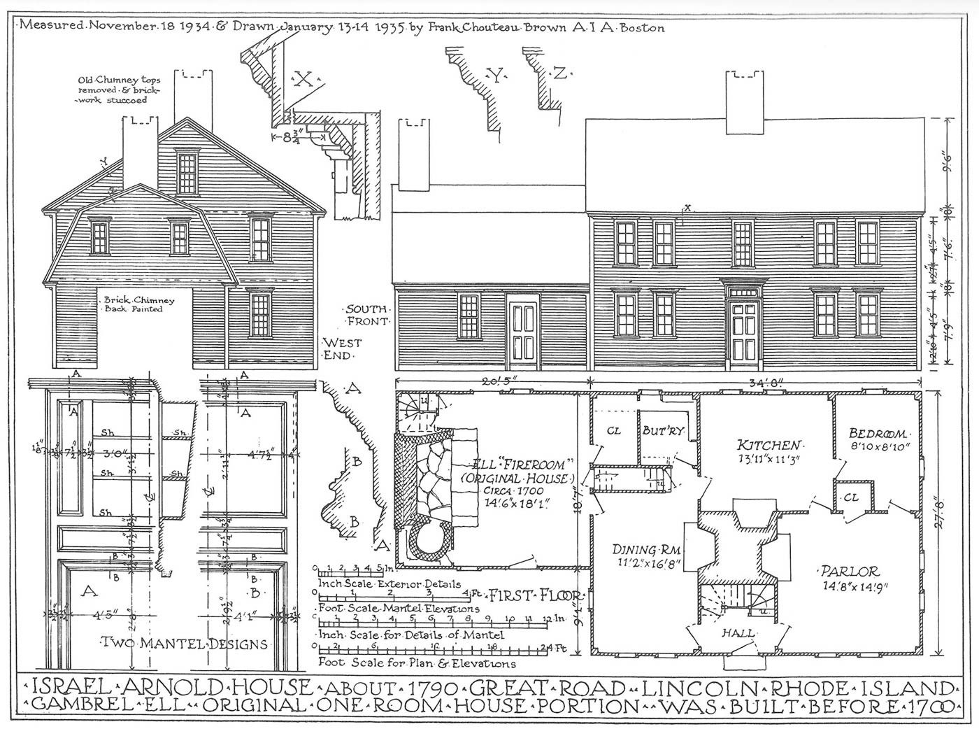
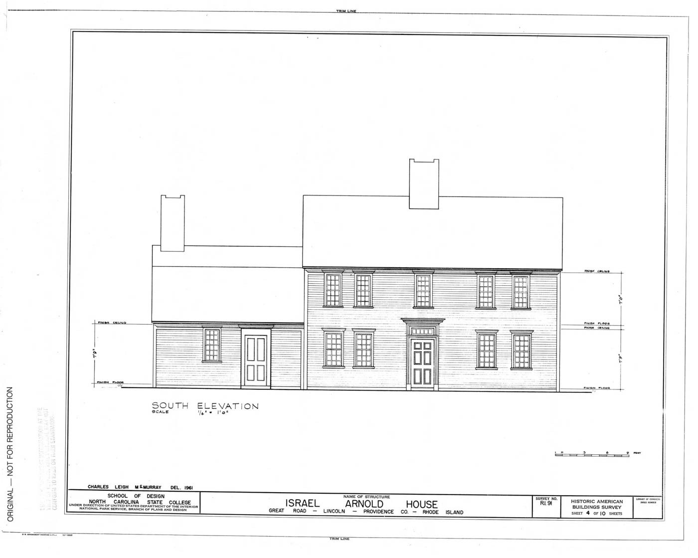
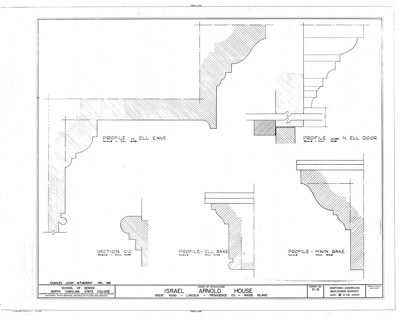
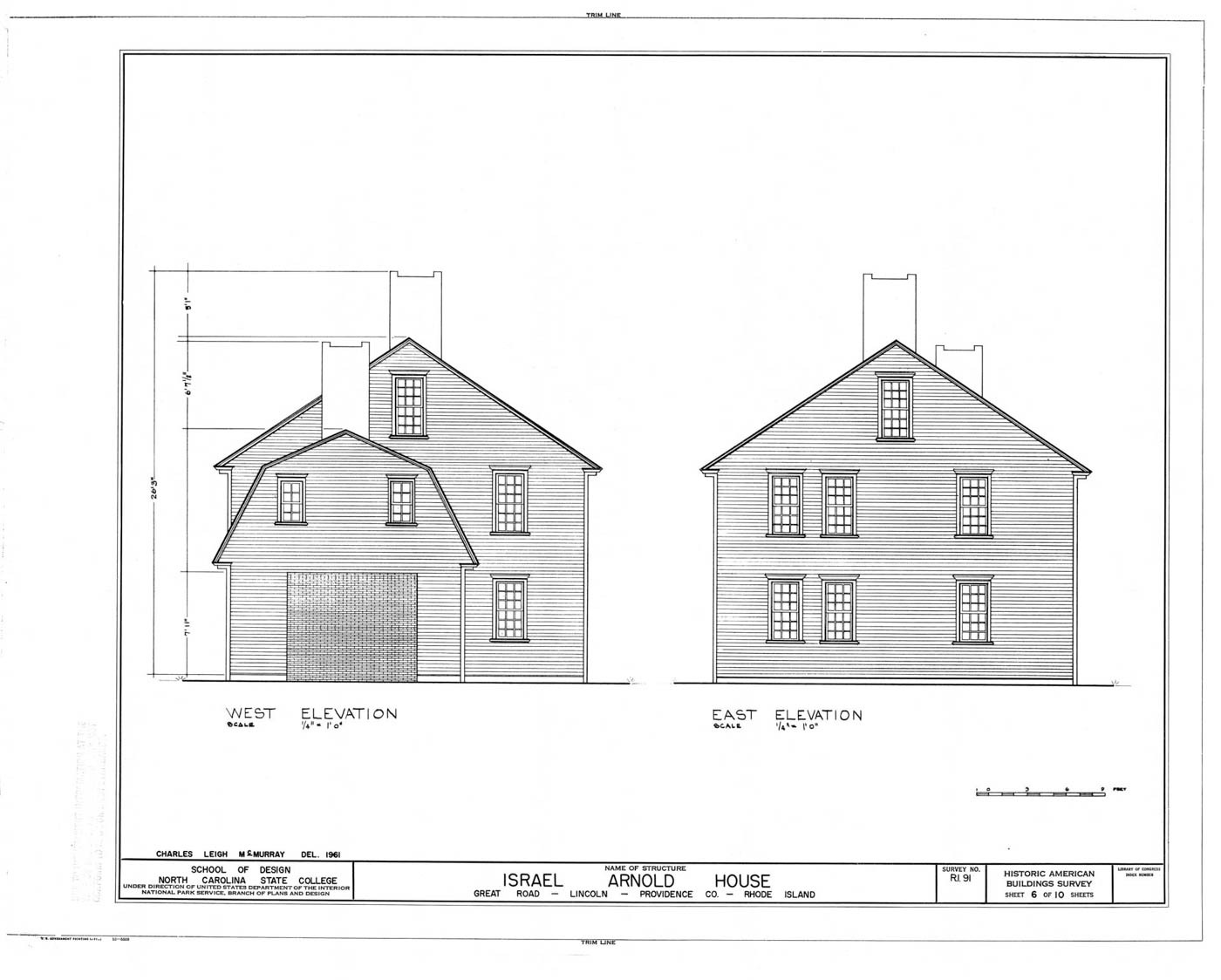
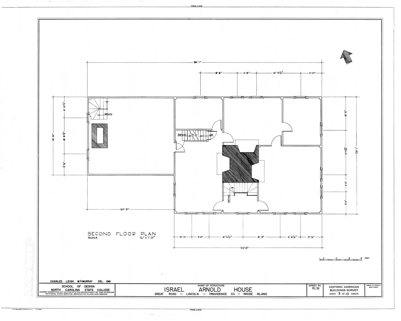
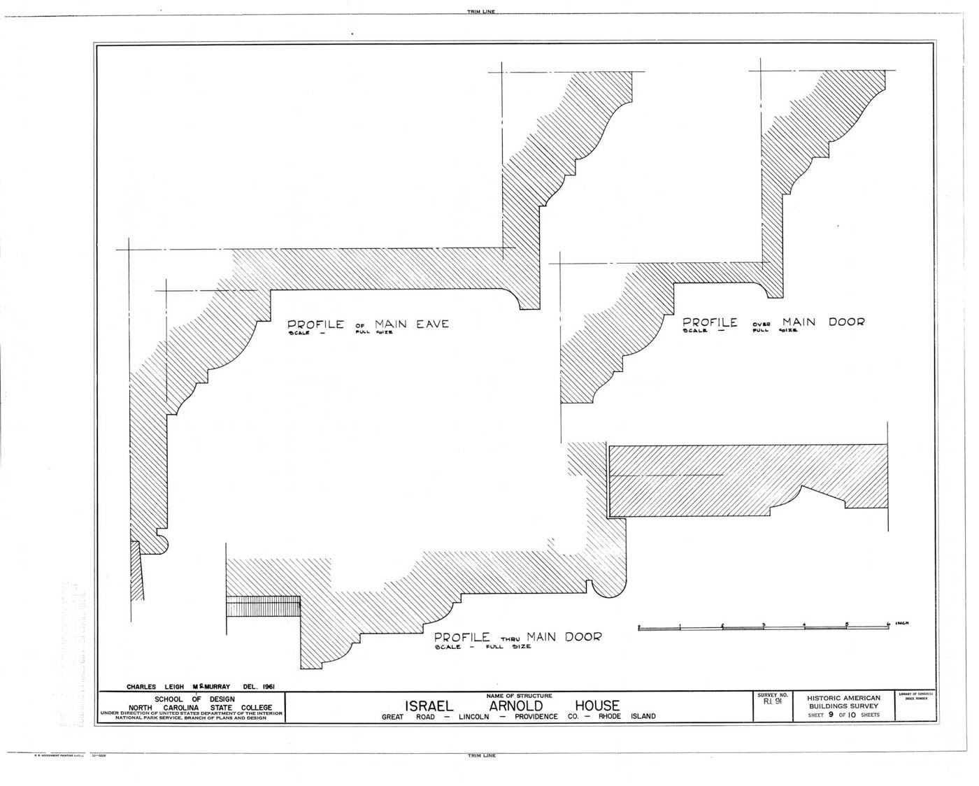
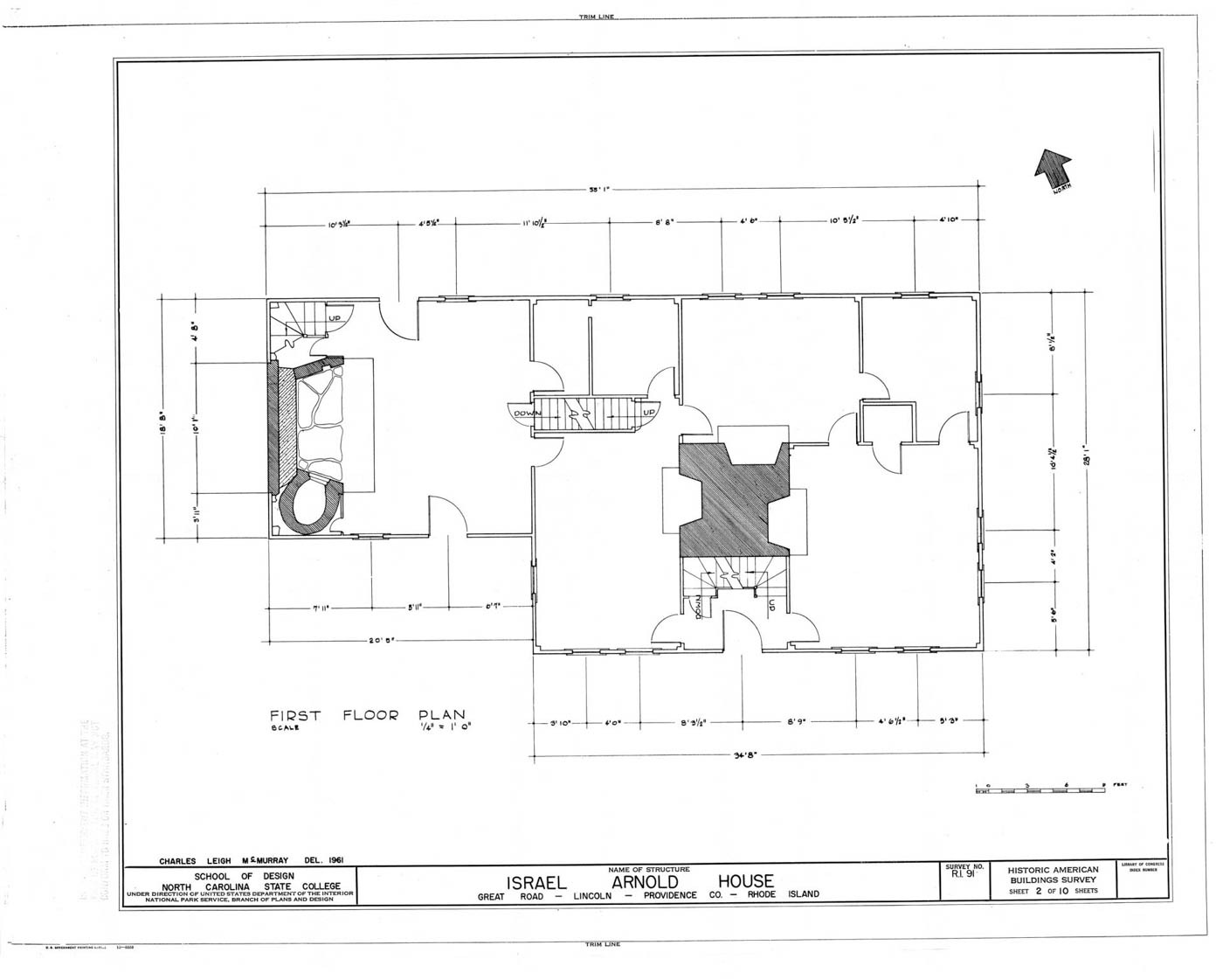
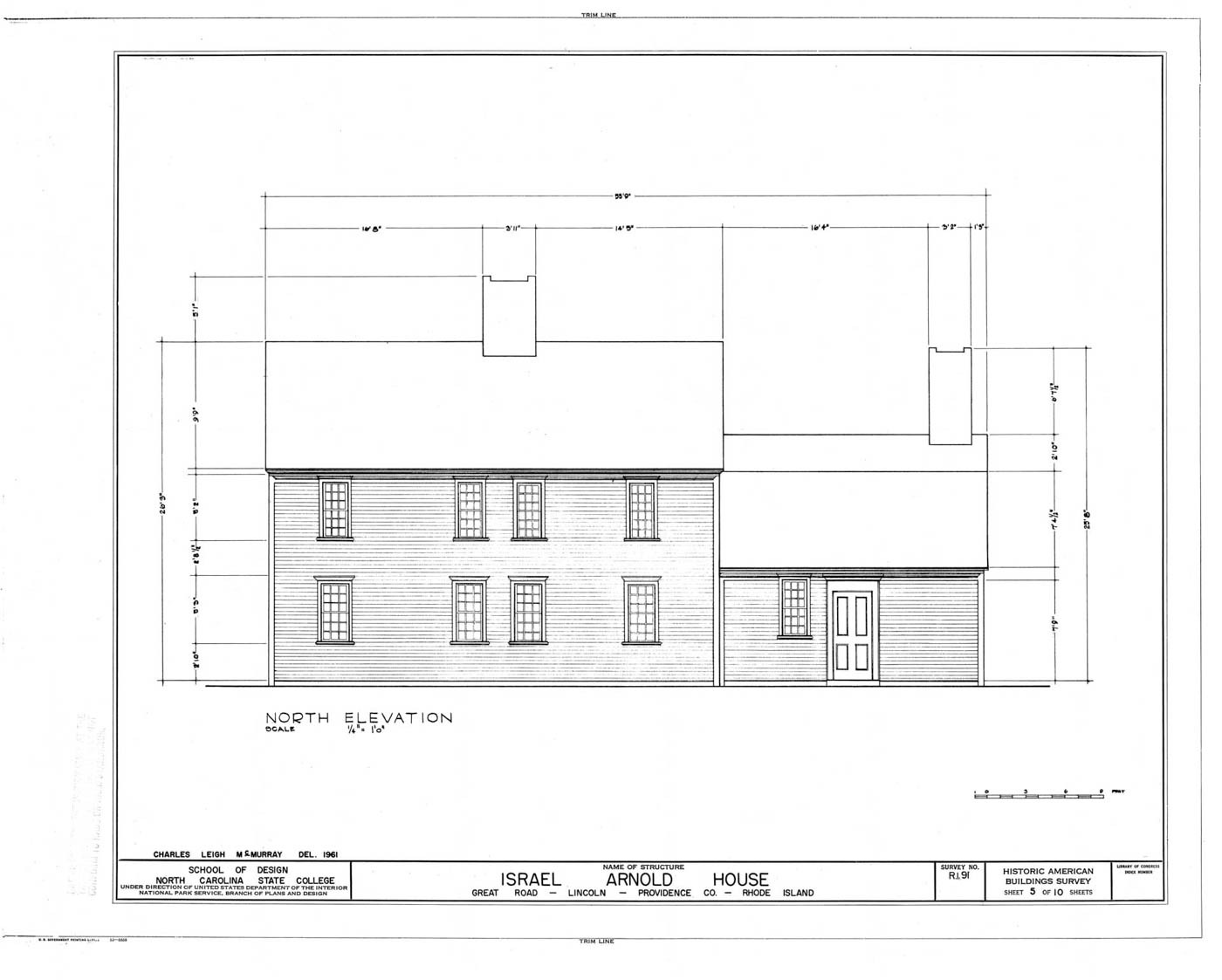
GREAT ROAD, SAYLESVILLE VILLAGE, LINCOLN, PROVIDENCE COUNTY, RHODE ISLAND