New Design Resource! Common Moulding Assemblies

Download Now

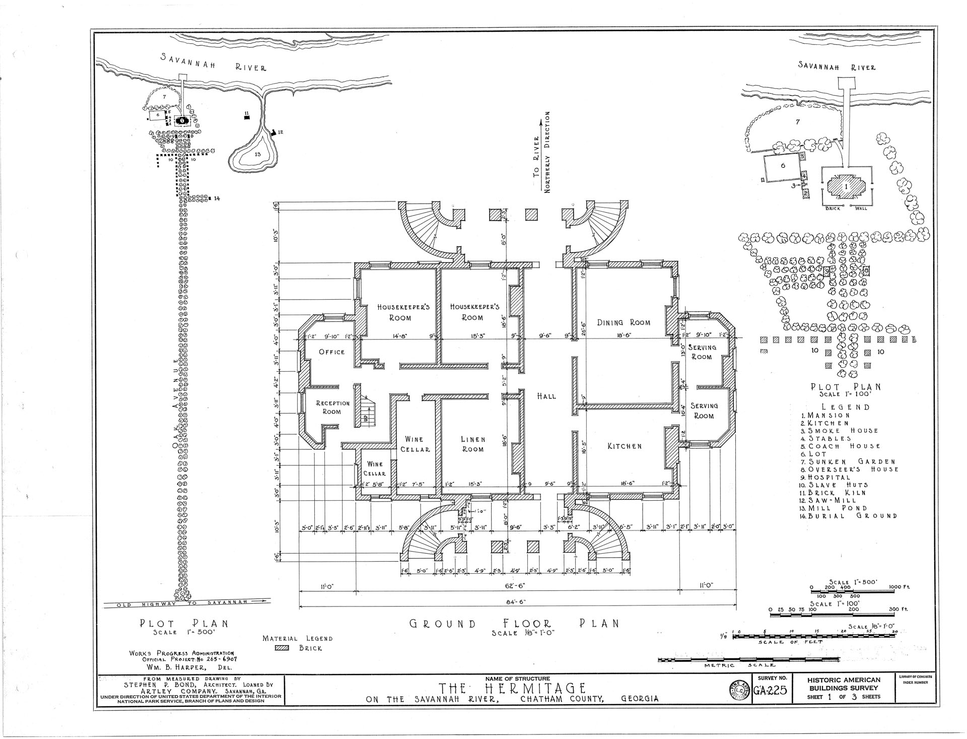
ON THE SAVANNAH RIVER IN CHATHAM COUNTY ABOUT 3 MILES NORTH OF SAVANNAH, GEORGIA

Erected 1820.