New Design Resource! Common Moulding Assemblies

Download Now

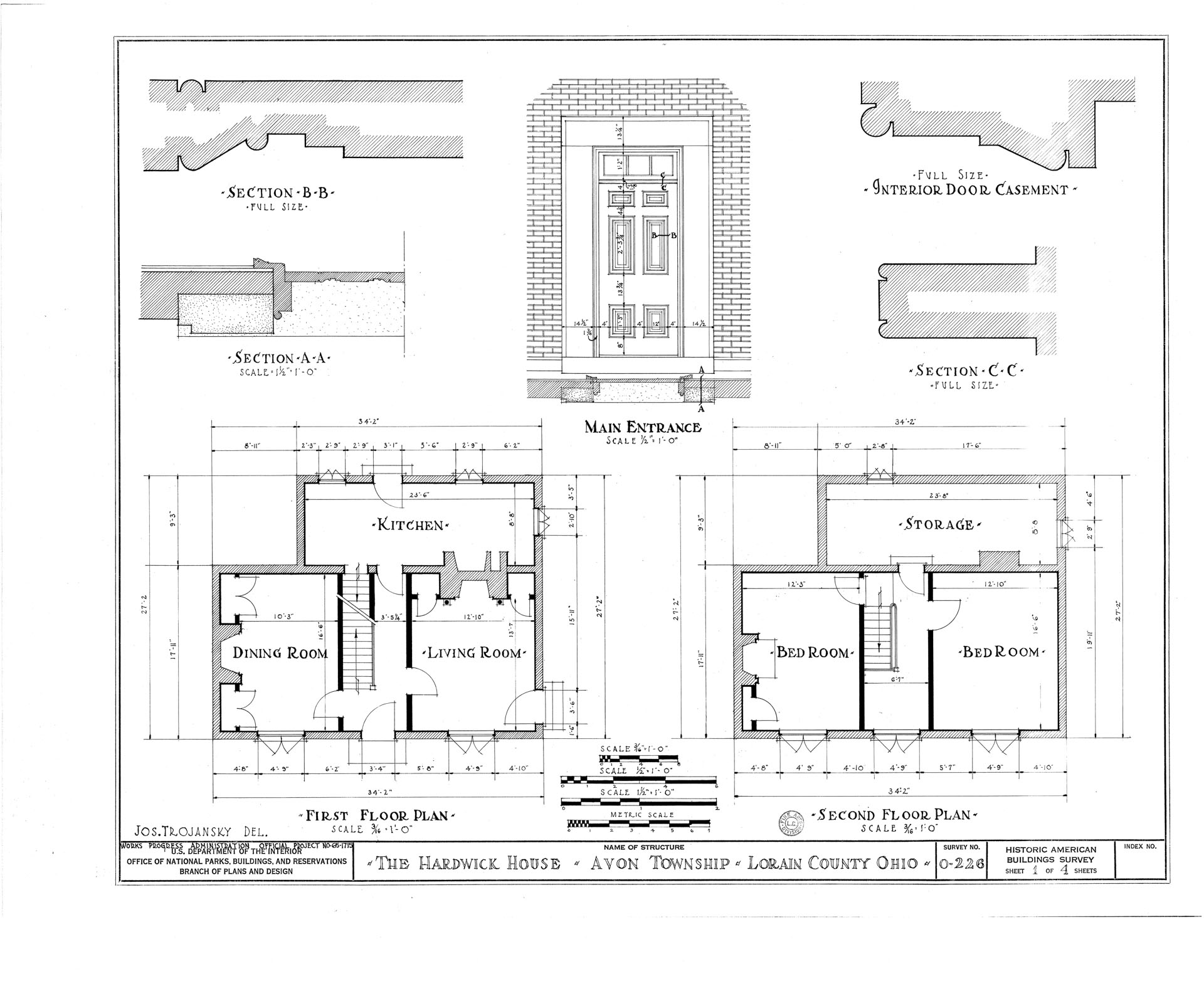
DETROIT ROAD, AVON, LORAIN COUNTY, OHIO.

Erected 1833.