14 WEST MACON STREET, SAVANNAH, CHATHAM COUNTY, GEORGIA
Erected 1853.
ENTRANCE PORTICO ELEVATION
ENTRANCE PORTICO ELEVATION
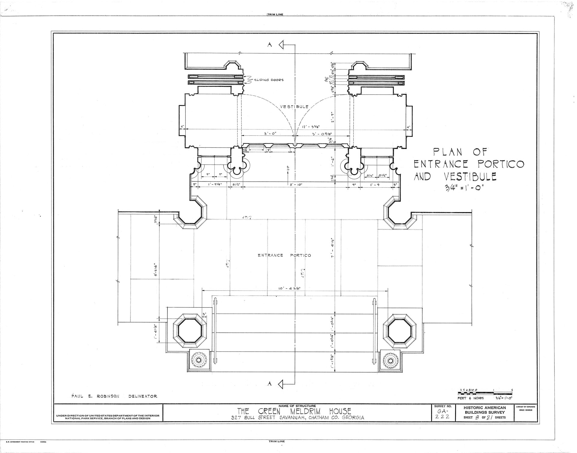
ENTRANCE PORTICO AND VESTIBULE PLAN
ENTRANCE PORTICO AND VESTIBULE SECTION
ENTRANCE PORTICO AND VESTIBULE SECTION
ENTRANCE PORTICO MOULDINGS
ENTRANCE PORTICO MOULDINGS
WINDOW A EXTERIOR ELEVATION
WINDOW A EXTERIOR ELEVATION
WINDOW A INTERIOR ELEVATION
WINDOW A INTERIOR ELEVATION
WINDOW A ELEVATION AND SECTION
WINDOW B EXTERIOR ELEVATION
WINDOW B EXTERIOR ELEVATION
WINDOW B INTERIOR ELEVATION
WINDOW B INTERIOR ELEVATION
WINDOW B ELEVATION AND SECTION
WINDOW C EXTERIOR ELEVATION
WINDOW C EXTERIOR ELEVATION
WINDOW C INTERIOR ELEVATION
WINDOW C INTERIOR ELEVATION
WINDOW C ELEVATION AND SECTION
DOOR A ELEVATION AND SECTION
DOOR B ELEVATION AND SECTION
NORTH ROOM FIREPLACE AND WINDOW MOULDINGS