New Design Resource! Common Moulding Assemblies

Download Now

90 REVERE STREET, ANNISQUAM, GLOUCESTER, ESSEX COUNTY, MASSACHUSETTS

The Dennison House in Annisquam, Gloucester, Massachusetts stands quietly within its coastal village setting, a reminder of early eighteenth century living shaped by the rhythm of the harbor and nearby fields. Built as part of a working homestead, the house reflects a community that balanced maritime trade with the realities of everyday life. Its surviving interiors allow us to see how thoughtful building practice, rather than outward show, defined the character of many early New England houses.

Measured drawings of the paneled room reveal a deliberately organized interior. Full height paneling, proportioned openings, and a hierarchy of mouldings define the walls, fireplace, and doorways. Cornices, architraves, and panel trim share related profiles, guiding the eye around the room and creating a quiet sense of architectural order.

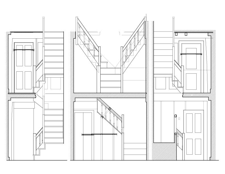
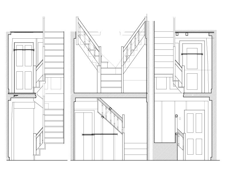
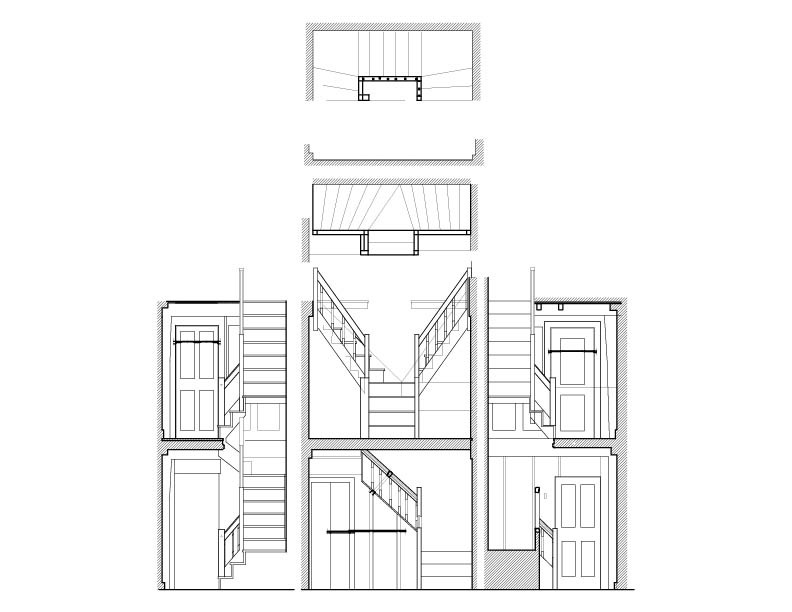
The staircase documentation is equally revealing. Elevations and sections capture the relationship between tread, riser, stringer, and handrail with clarity, showing how geometry and joinery work together in the service of movement. The stair profiles echo the language of the wall paneling, uniting circulation and enclosure within a single, cohesive design.

Taken together, the measured drawings bring the house into sharper focus. They reveal how proportion, profile, and carefully shaped wood were used not simply to build shelter, but to give everyday life a sense of beauty. In this way, the Dennison House shows how early builders approached their craft, and why the interiors still feel meaningful today.