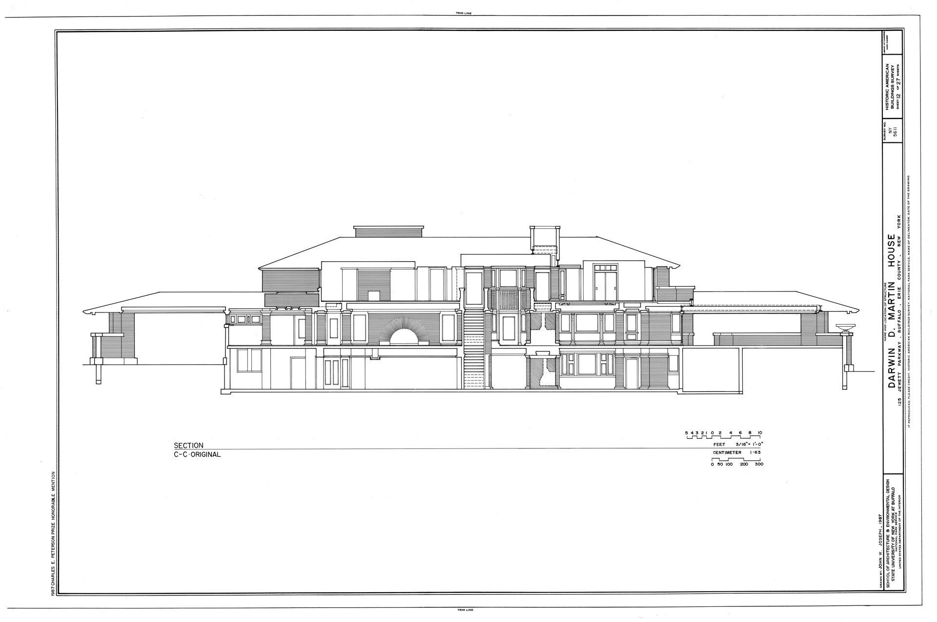
125 JEWETT PARKWAY, BUFFALO, ERIE COUNTY, NEW YORK
Built between 1903 and 1905.
LIBRARY COLUMN ELEVATION
LIBRARY COLUMN ELEVATION
LIBRARY COLUMN MOULDINGS
LIBRARY COLUMN MOULDINGS
LIBRARY COLUMN MOULDINGS
WINDOW W-3
WINDOW SECTION AND PLAN ON SECOND FLOOR