New Design Resource! Common Moulding Assemblies

Download Now

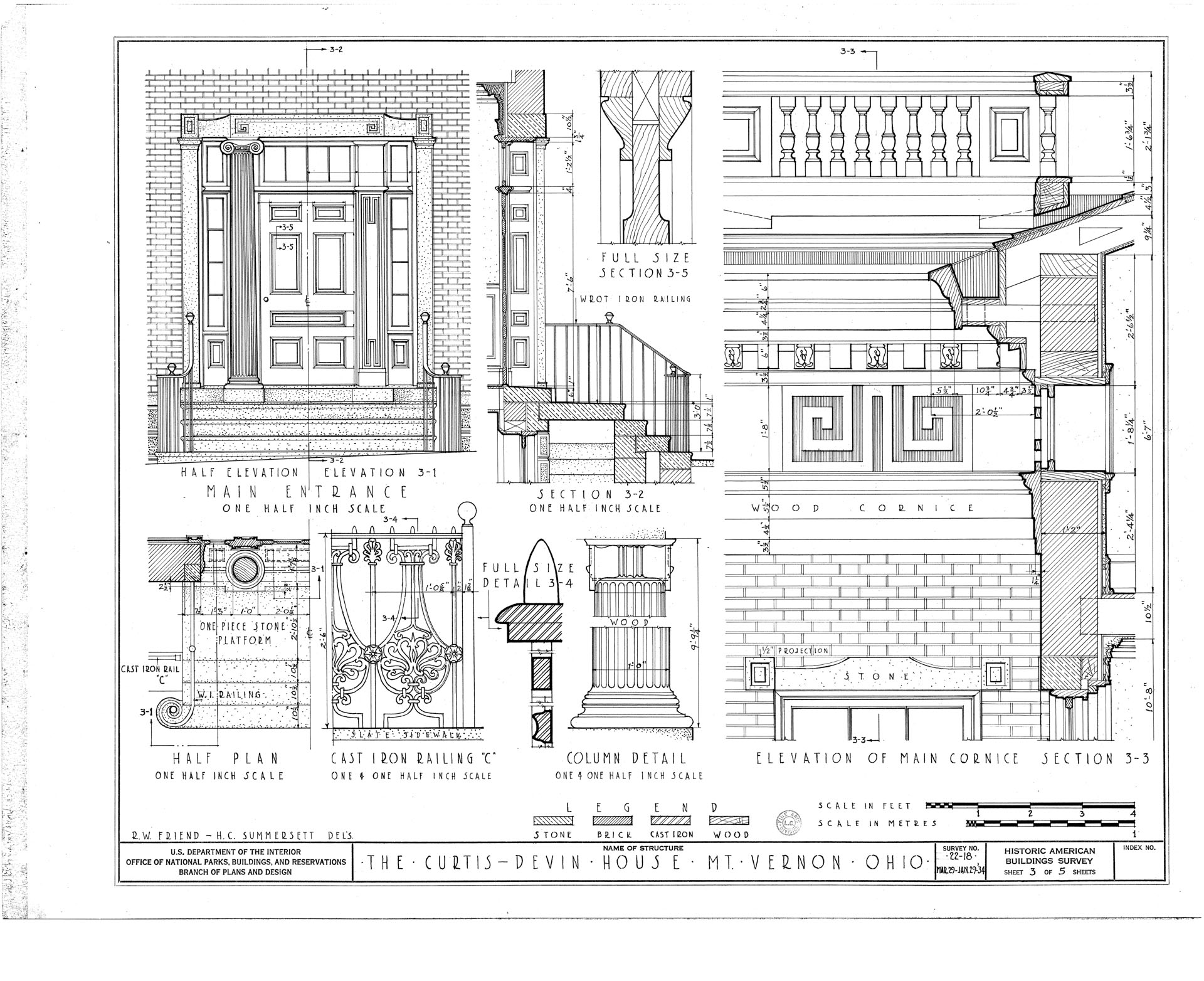
101 MAIN STREET, MOUNT VERNON, KNOX COUNTY, OHIO

Erected 1834.