New Design Resource! Common Moulding Assemblies

Download Now

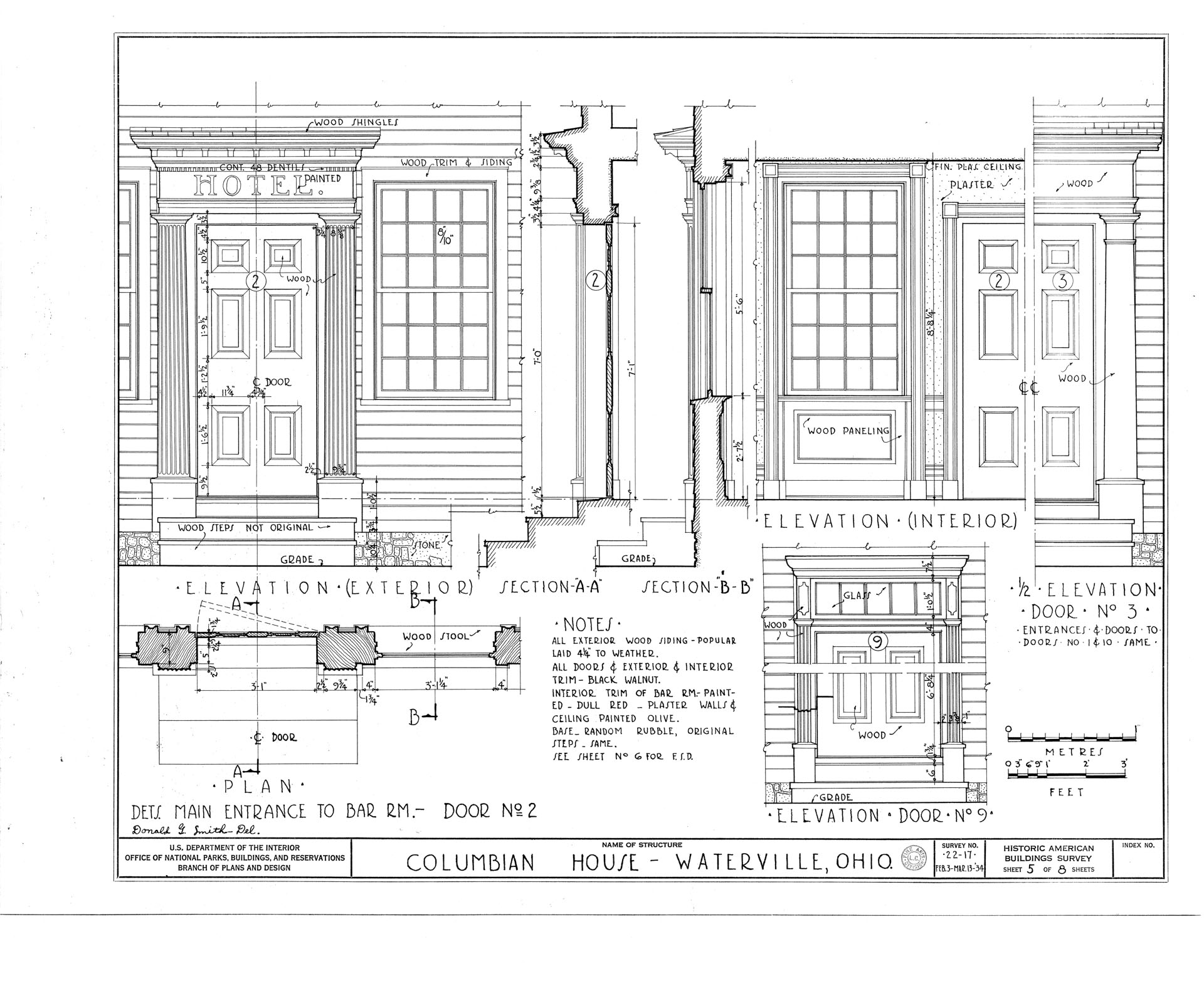
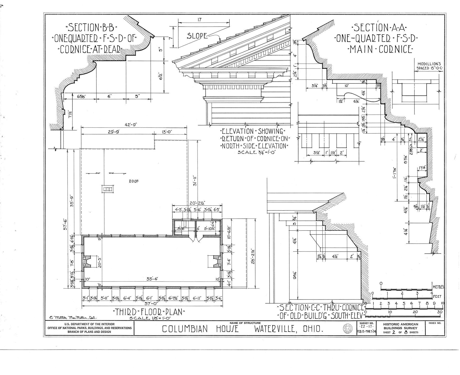
3 NORTH RIVER ROAD, WATERVILLE, LUCAS COUNTY, OHIO.

Erected 1828.