New Design Resource! Common Moulding Assemblies

Download Now

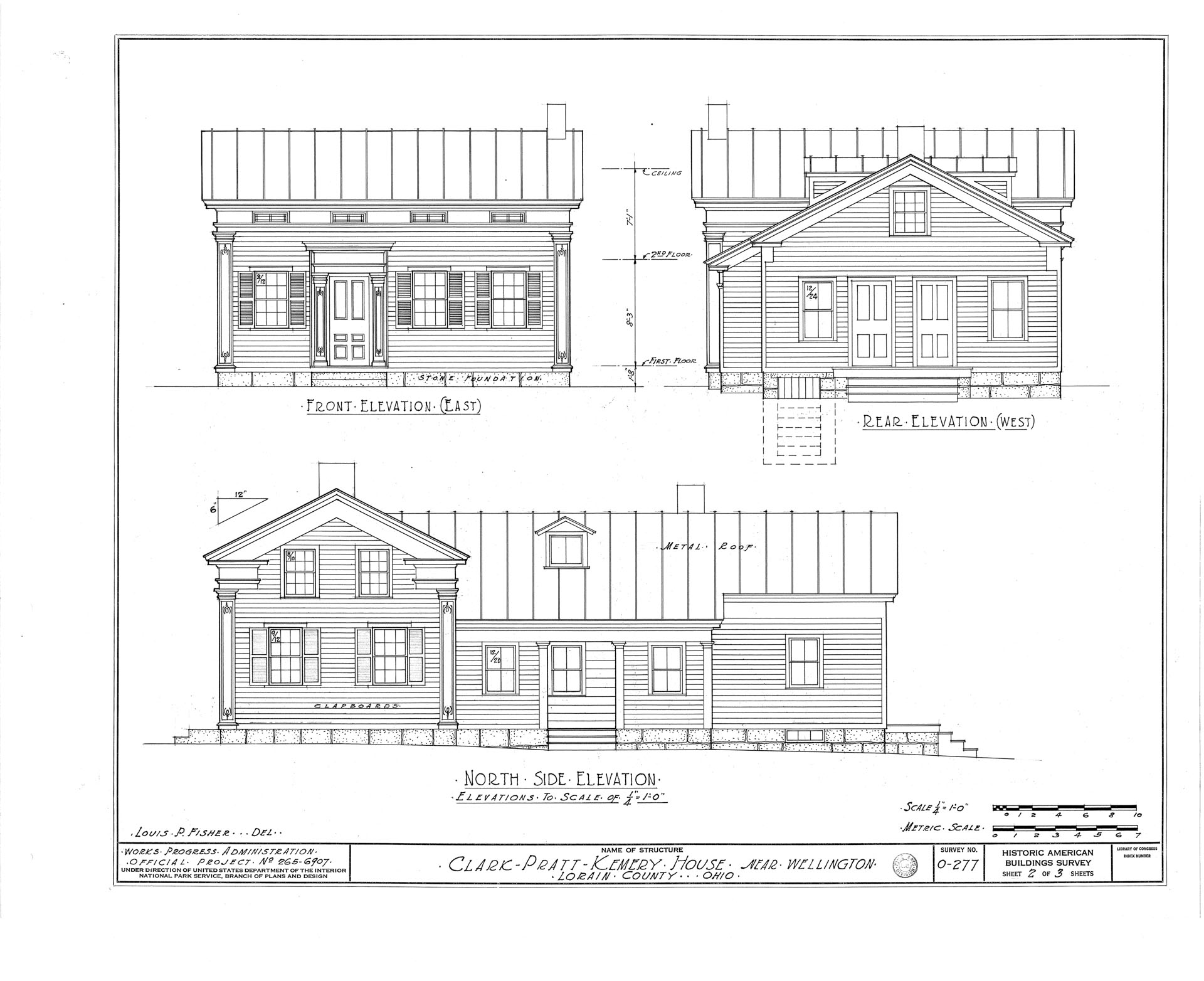
ROUTE 58, HUNTINGTON, LORAIN COUNTY OHIO.

Erected about 1814.