New Design Resource! Common Moulding Assemblies

Download Now

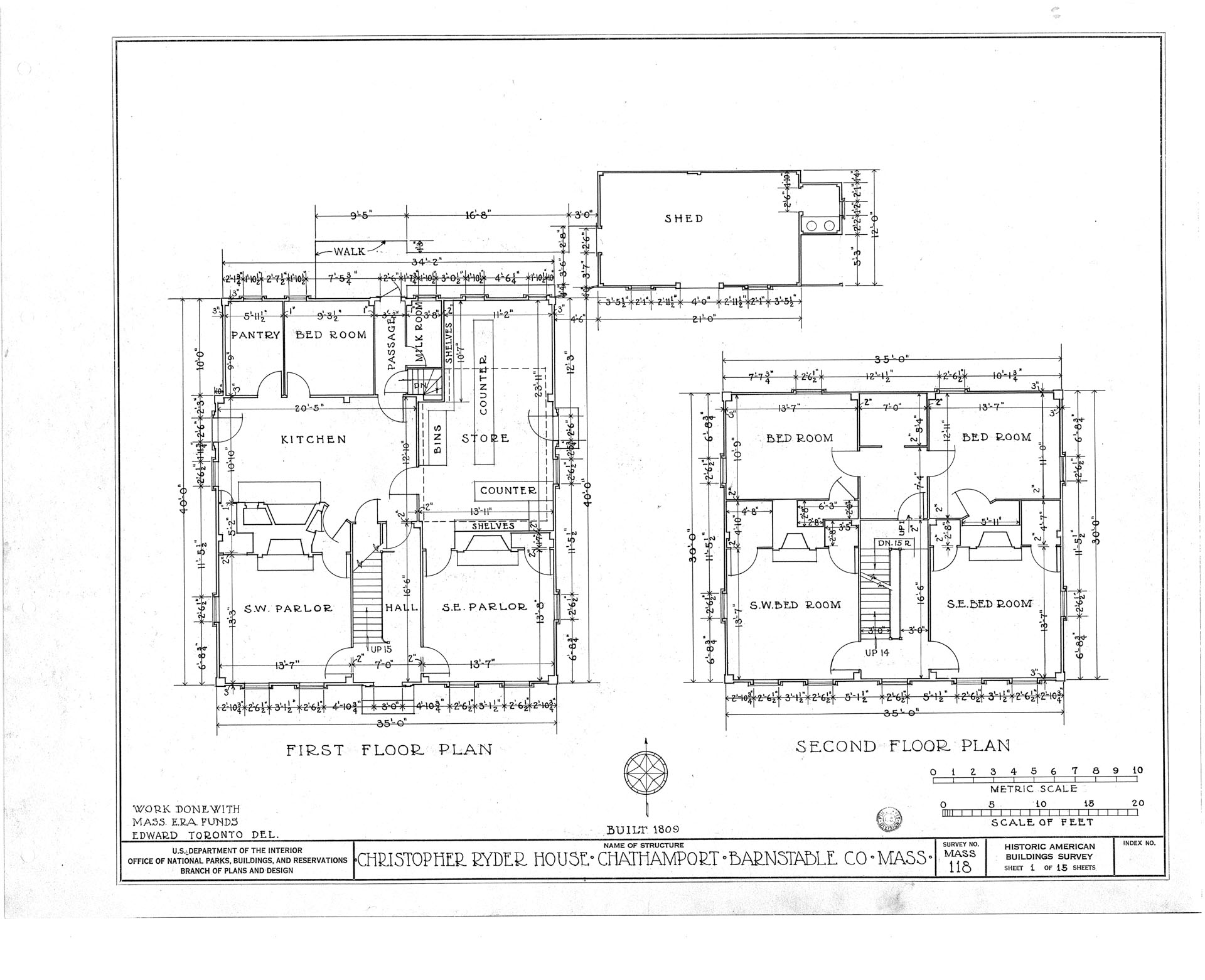
ROUTE 28, CHATHAM PORT, BARNSTABLE COUNTY, MASSACHUSETTS

The Christopher Ryder House in Chatham Port, Massachusetts is an early nineteenth century dwelling that illustrates the layered development of Cape Cod’s domestic architecture. The house is believed to have been built in 1809 by seafarer Christopher Ryder, whose family name also survives in nearby Ryders Cove. His ancestor John Ryder had purchased the land in the eighteenth century from the Nickerson family, one of the region’s early settler families, who themselves acquired the property from Native Americans. Family tradition holds that Christopher Ryder carved many of the interior mantels and cornices while at sea and later employed carpenters based in Harwich to execute the construction.

In its exterior composition, the Ryder House would have exhibited the ordered proportions typical of early regional building practice, with a restrained facade, evenly spaced openings, and a central entry establishing a clear axis of symmetry. The millwork preserved in the Mouldings One gallery records a confident command of wood shaping, particularly in mantelpieces, architraves, and moulded transitions that articulate hearths and doorways with delicate detail.

During the twentieth century, the property gained broader recognition as the Christopher Ryder House restaurant and opera house, a beloved Cape Cod institution known for its richly finished communal rooms framed by deep cornices and trim. The architectural fabric of the original house thus became interwoven with a vibrant social chapter, as dining and music brought renewed life to its rooms. Although the restaurant era eventually came to a close and the property later underwent redevelopment, the surviving millwork and documented interiors preserve a tangible record of craftsmanship, allowing the Christopher Ryder House to remain a chapter in the architectural history of Barnstable County.