New Design Resource! Common Moulding Assemblies

Download Now

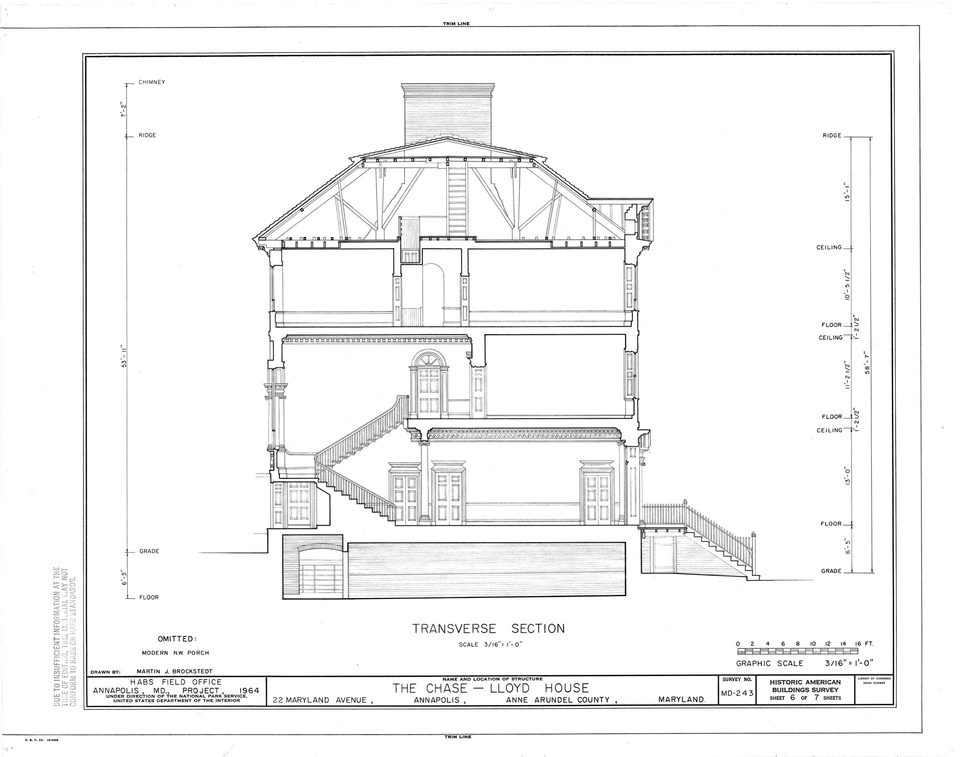
22 MARYLAND AVENUE, ANNAPOLIS, ANNE ARUNDEL COUNTY, MARYLAND

Erected 1769.