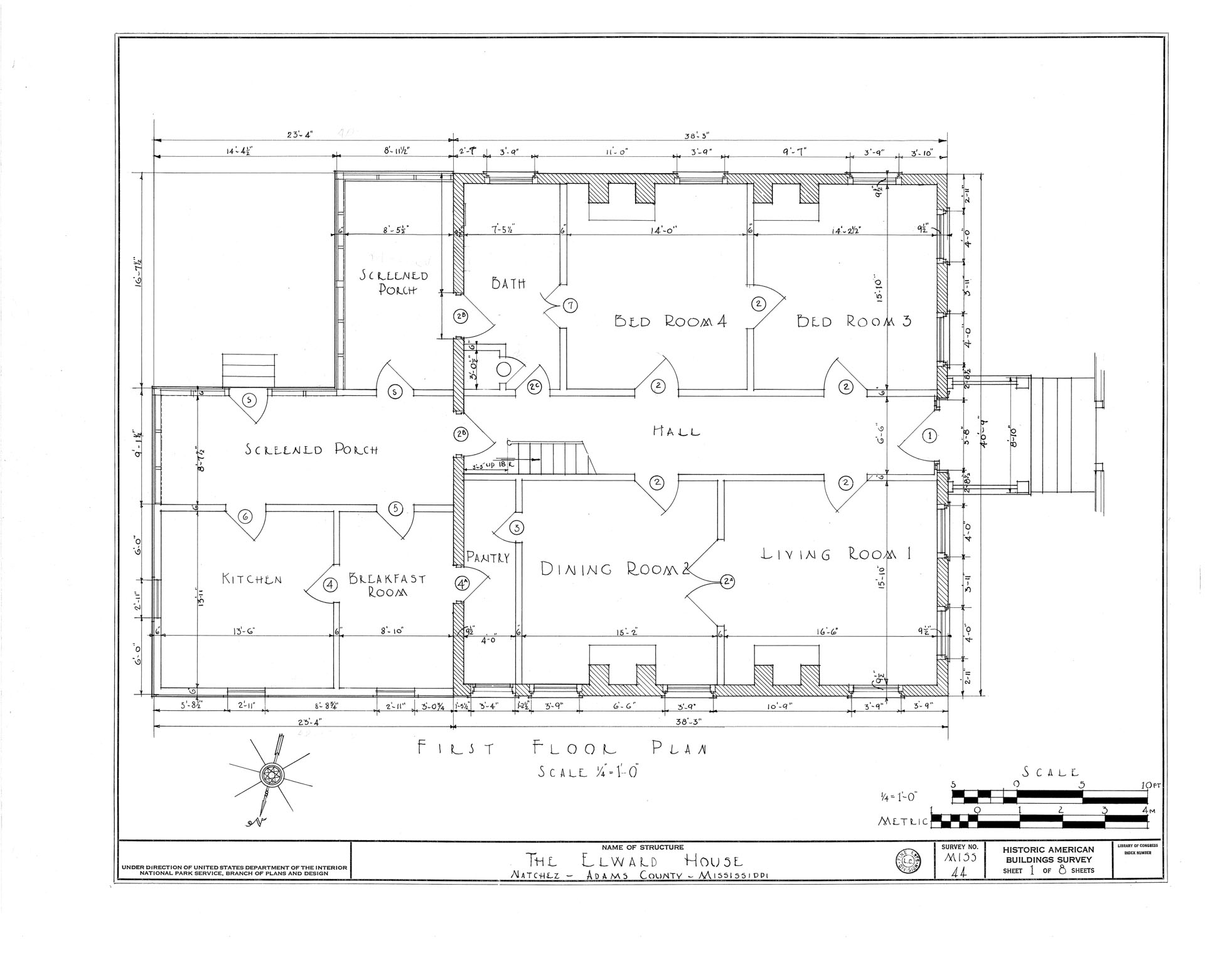
612 WASHINGTON STREET, NATCHEZ, ADAMS COUNTY, MISSISSIPPI
Erected 1830.
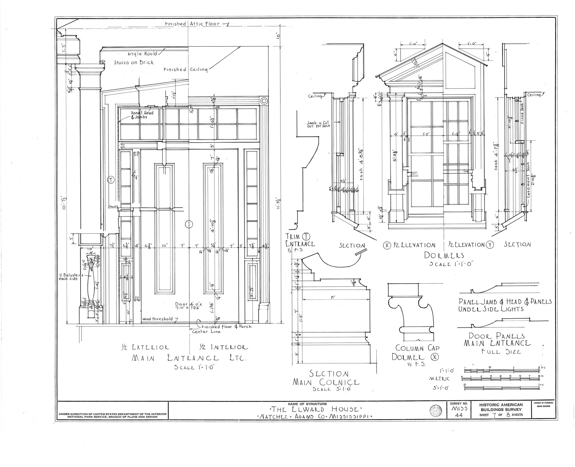
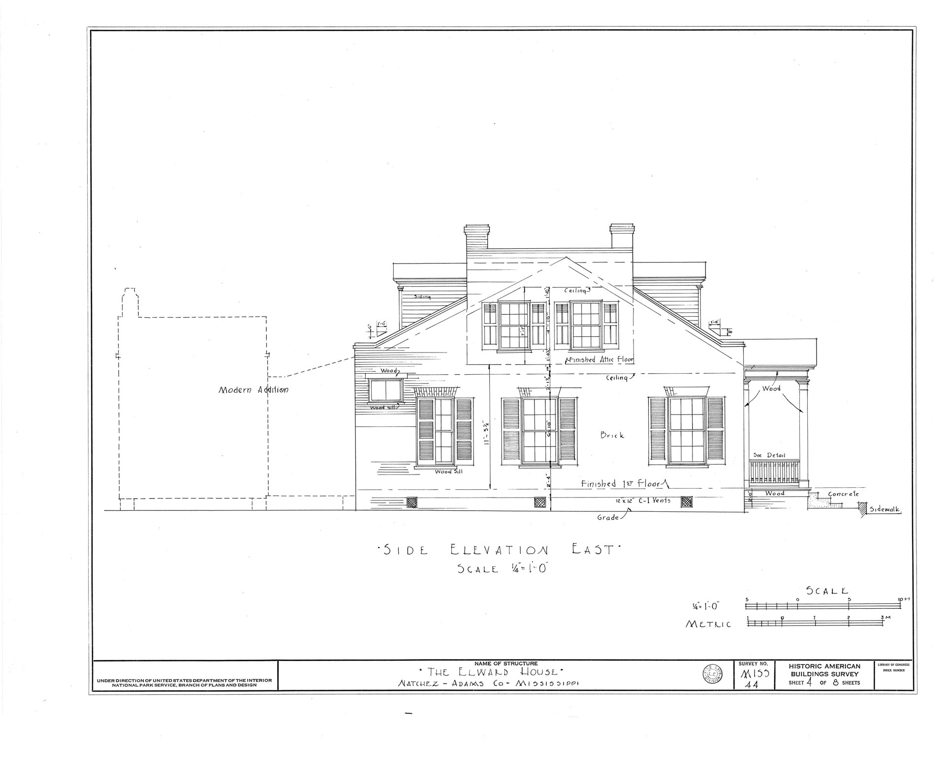
MAIN ENTRANCE EXTERIOR ELEVATION
MAIN ENTRANCE EXTERIOR ELEVATION
MAIN ENTRANCE INTERIOR ELEVATION
MAIN ENTRANCE INTERIOR ELEVATION
DORMER ELEVATION AND SECTION
DORMER ELEVATION AND SECTION
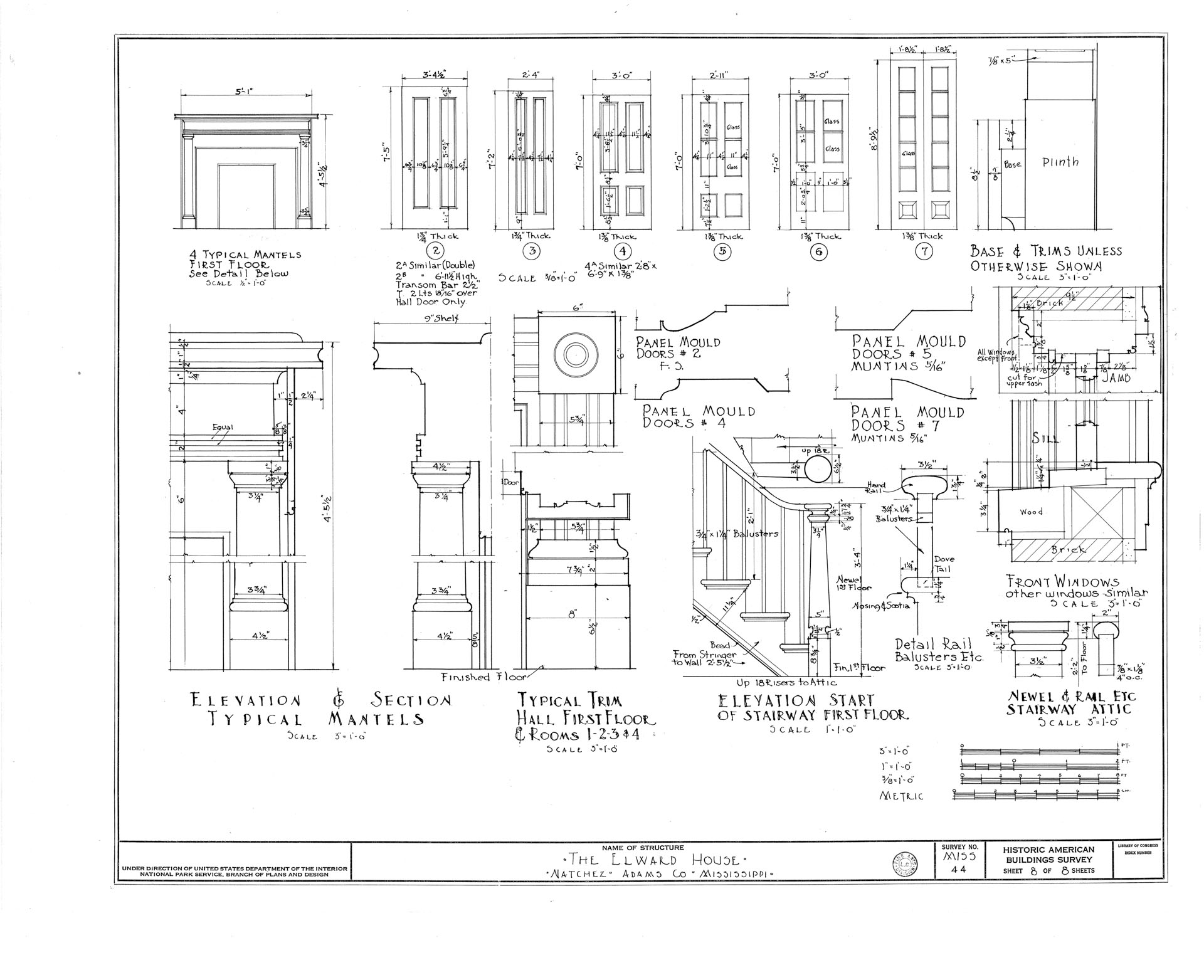
FIRST FLOOR MANTEL ELEVATION
FIRST FLOOR MANTEL ELEVATION
FIRST FLOOR MANTEL DETAILS
#2, #3, #4 DOOR ELEVATION
#2, #3, #4 DOOR ELEVATION
#2, #3, #4 DOOR MOULDING DETAILS
#5, #6, #7 DOOR ELEVATION
#5, #6, #7 DOOR ELEVATION
#5, #6, #7 DOOR MOULDING DETAILS