New Design Resource! Common Moulding Assemblies

Download Now

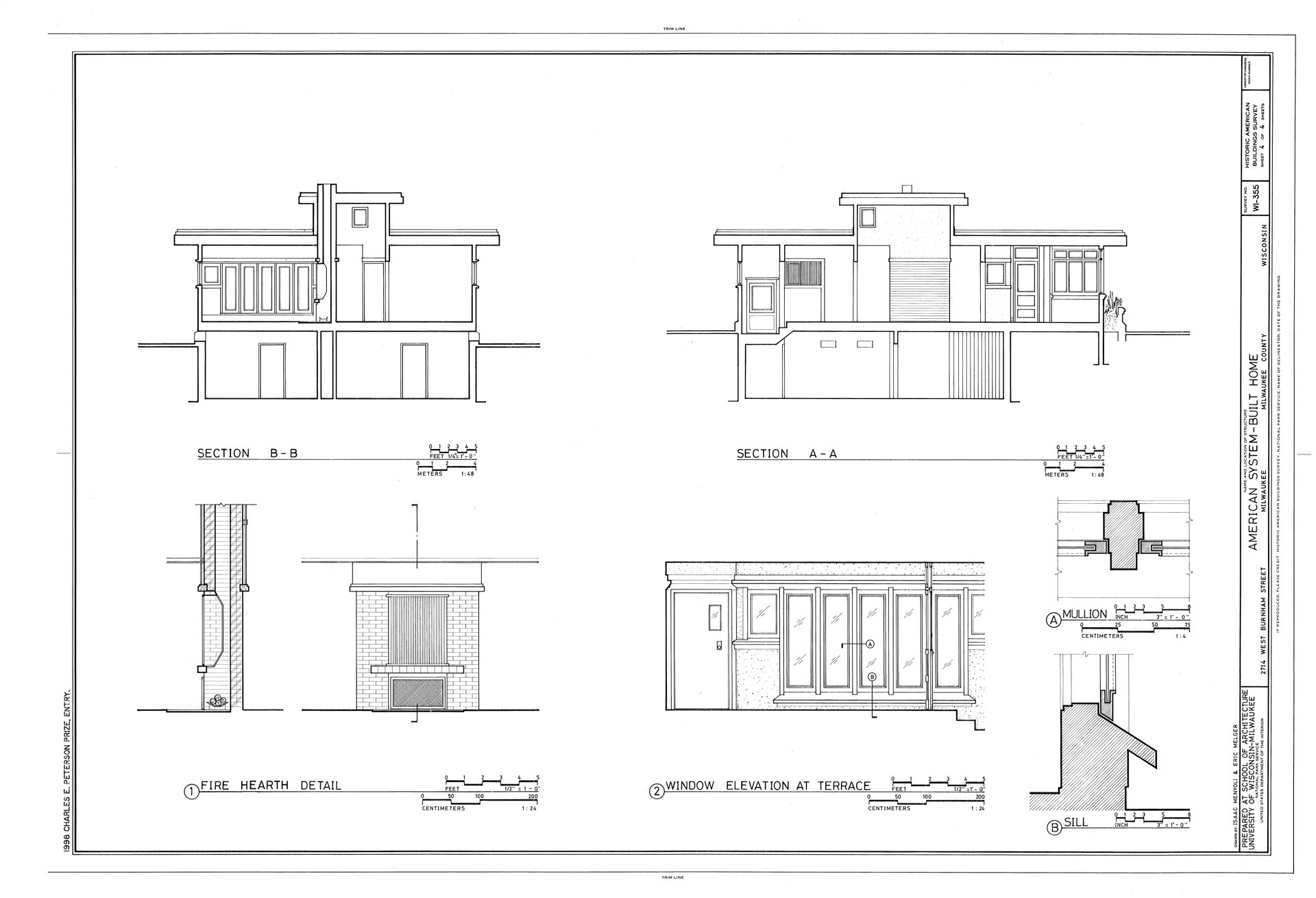
2714 WEST BURNHAM STREET, MILWAUKEE, MILWAUKEE COUNTY, WISCONSIN

Between 1915 and 1917, Frank Lloyd Wright designed a series of standardized “system-built” homes, known today as the American System-Built Houses. It did not mean pre-fabrication off-site, but rather a system of cutting the lumber and other materials in a mill before bringing them to the site for assembly. In total six were constructed and still standing today. The West Burnham Street bungalow home was built-in 1915.