New Design Resource! Common Moulding Assemblies

Download Now

MAIN STREET, NATCHEZ, MISSISSIPPI

Arlington is a red brick Federal style house situated atop a natural hill in Natchez, distinguished by its sturdy live oaks and blooming "Arlington Pink" azaleas. Unfortunately, in 2002, this historical landmark fell victim to flames, leaving only its foundation intact and walls standing. Regrettably, now in a state of disrepair, Arlington is recognized as one of the most endangered historic places in Mississippi.

Behind its storied past lies the assumption that New Jersey native John Hampton White constructed the house between 1816 and 1821. He resided there with his wife, Jane Surget White, daughter of Pierre Surget, a member of one of Natchez's most prominent families. It's also speculated that Mr. Surget may have been the mastermind behind its design.

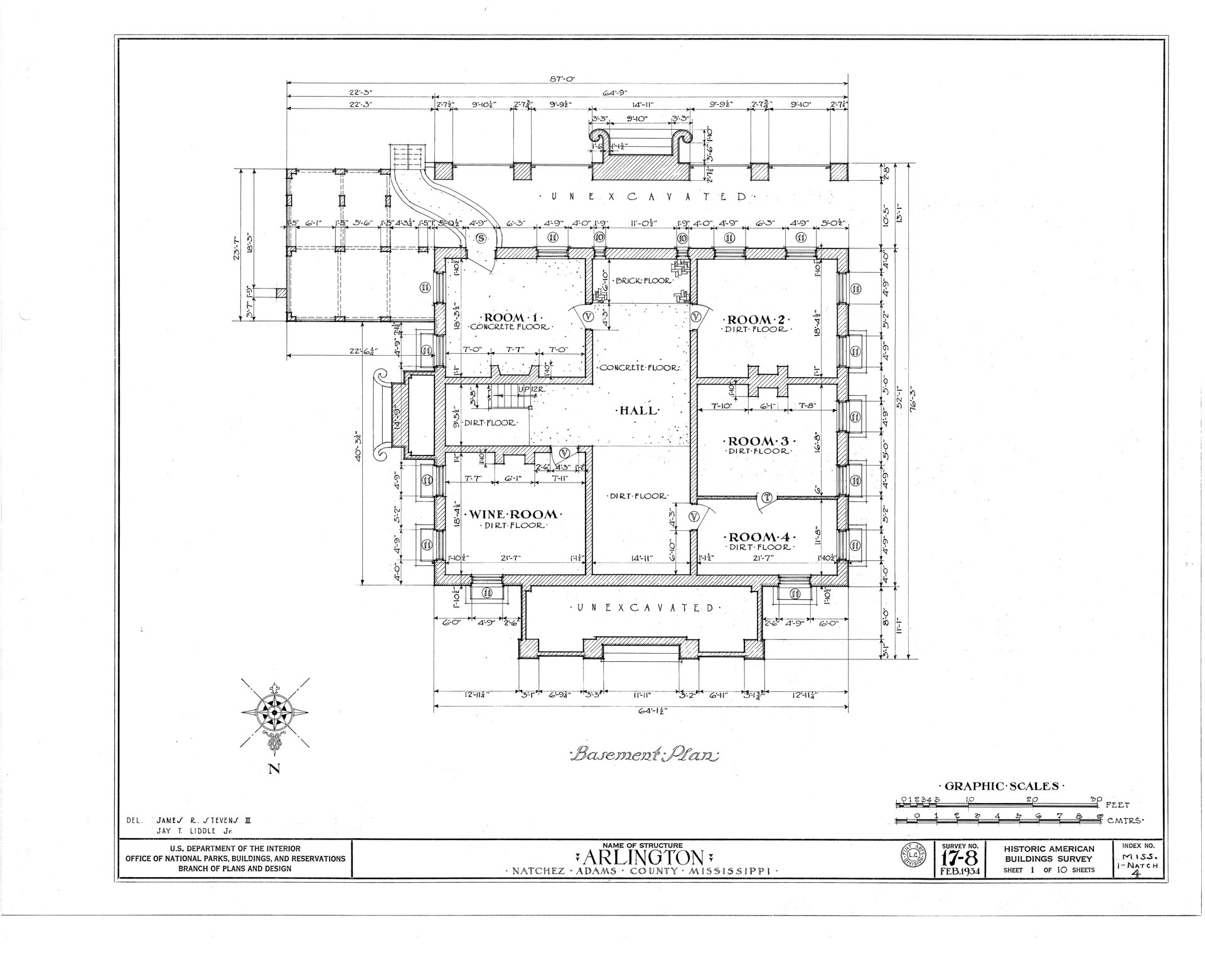
Arlington's architectural style, an early example of antebellum homes, set a standard for those built throughout Natchez in the ensuing century. Before its descent into desolation, its setting, outbuildings, and interior design were unparalleled, heightening the tragedy of its destruction. The home spans 64 by 87 feet, boasting a full two stories tall with a low basement.

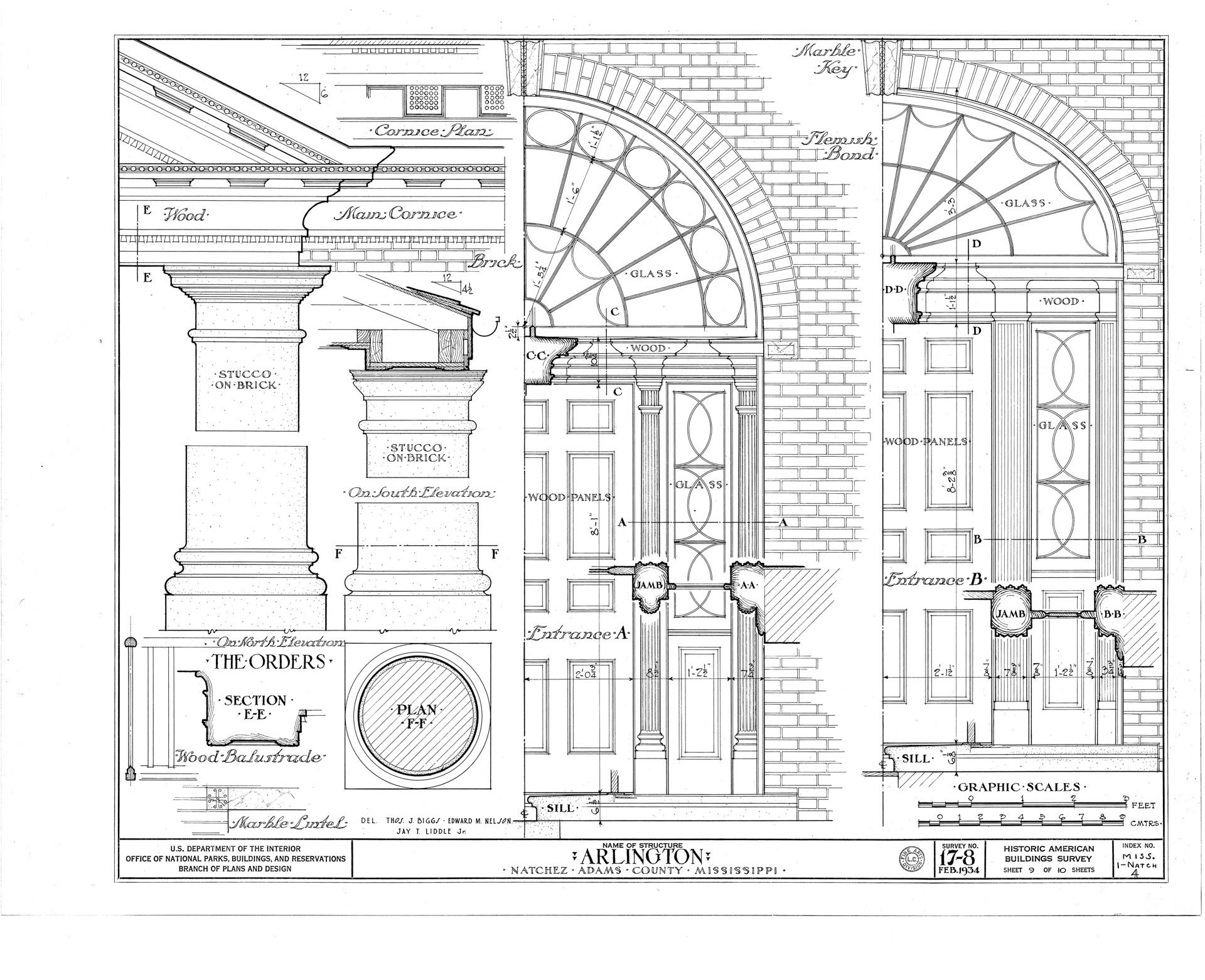
Adorning the wood front door is exquisite dentil moulding, framed by four stone columns that exude an aura of grandeur. The facade features a five-bay wide design, with three central bays crowned by a tetrastyle portico, a feature originating from Ancient Greek architecture. These Doric-style exterior columns lend a classical elegance to the structure. The custom doors on the first and second exterior levels are adorned with brick voussoirs, intricately carved from marble with focal dominant keystones, while classical moldings frame the window sills.

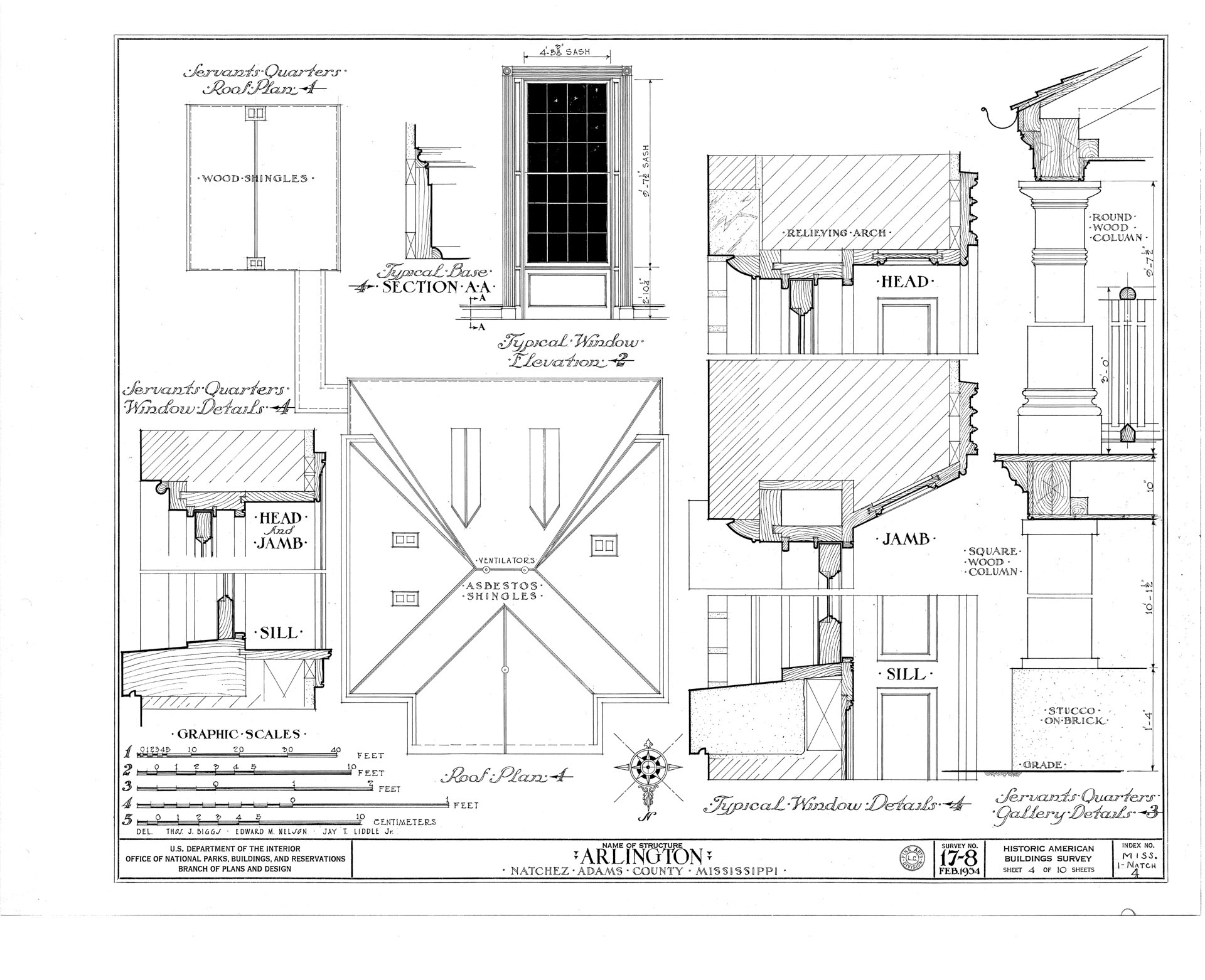
Inside, the rooms are adorned with Federal style custom wood millwork, with dentil crown moulding adorning many of the spaces. The floor plan consists of central hall plans on both the first and second levels, flanked by two rooms on each side. Carvings above the custom door panels add a touch of elegance to each wood door.